当定制化生活成为当今主流,个性成为这个时代最鲜明的标签。人们对于住宅品质的需求从千篇一律到个性诉求的转变,成为这个时代不可逆转的趋势。

在这样的呼声之中景瑞集团带着“为爱定制”的潮流标签而来。2017年5月20日,由景瑞集团举办“自由系Pro-未来户型设计众筹大赛”即将盛大启动!


【以爱之名】

新的时代,因为懂得,所以定制
景瑞集团始终秉持“为爱定义生活”的品牌理念,以“客户洞见”为核心,独创了ePLUS定制体系,2017年全面更升级到自由系PRO产品系。本次活动向全国征集139户型段产品的户型及收纳设计方案,参赛者可根据自身需求改造心爱之家,从而提升生活空间利用率。

打破常规,打破专业,就是本次大赛的意义,不在于会画多少专业的图纸,而是用心还原你真实的生活,设计融入生活。即便非专业人士也可凭创意获奖,爱成为核心评判标准。


【参赛细则】请务必仔细阅读
一.设计题材与要求 (以下可任选一项或两项参与)
A. 户型空间+收纳一体化
依据图片,注意限制条件,内部空间大小及布局自由发挥,并规划全屋收纳。
B. 收纳模块创意设计
选择任意收纳模块(如主卧衣柜,玄关柜等)为家庭成员进行创意设计。
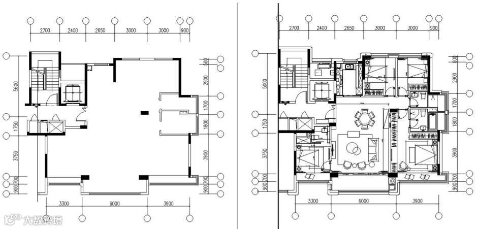
参考户型如下:

限制条件:建筑外立面、轮廓不得改变,凸窗不得拆除,厨房和卫生间不动,黑色墙体(结构墙)不得拆除,管井不动。
二.参赛资格
建筑设计、装修设计、房地产从业人士、专业院校师生等企业或个人;
对定制化空间和精装感兴趣的企业或个人;
报名即视为作者承诺原创且唯一
三.作品及提交要求
A. 户型空间+收纳一体化
清晰的平面图(JPG或PDF格式)至少一张,注明功能,手绘或cad文件;
图片质量不低于72dpi(A4尺幅),更多图纸或文字、视频可自由提供;
文字说明,200字左右,PPT更佳;
B. 收纳模块创意
清晰的意向图(JPG或PDF格式)至少一张,黑白彩色均可;
精度不低于72dpi(A4尺幅),三维模型更佳
文字说明,200字左右,PPT更佳;
报名参赛即视为作者承诺原创且唯一
四.活动时间
1 报名、提交作品
2017年5月20日—6月11日
2 评审
2017年6月13日—6月19日
3 获奖公布、颁奖
2017年6月25日
五.奖项设置
A. 户型空间+收纳一体化
一等奖1名:人民币10000元
二等奖2名:人民币5000元
入围奖5名: 人民币1000元
B. 收纳模块创意
收纳大神奖 5名:人民币1000元
额外奖励
成为景瑞定制产品合伙人,并可被邀请参与景瑞创新产品发布会;
30余家媒体全方位传播;
学生可获推荐知名设计事务所实习;
备注:以上奖金含税,税费自理
六.作品提交
作品提交至:jrdesign@jingruis.com邮箱, 附上姓名、公司职位/院校名称、联系方式等。
七. 最终解释权归主办方所有
我们虔诚以待
一个以爱的名义开启的定制时代
请以您的爱和灵感
给这个时代最震撼的宣言
长厦安基(AAD)作为景瑞集团的建筑设计服务商之一,接力“以爱为名”,共创定制时代,并预祝此次活动圆满成功。



