
13届金盘奖华南地区评选,于2018年10月19日在改革开放的前沿城市深圳拉开序幕。作为本年度分赛区的压轴赛,本次评选汇聚一批行业精英,共同为大家揭秘华南地区的新标杆!

长厦安基作品福州·阳光城保利·源溪里山荣获华南赛区年度最佳预售楼盘!
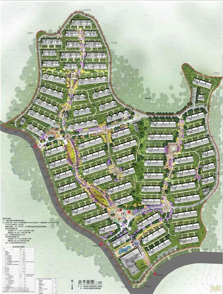
福州·阳光城保利·源溪里山
荣誉:华南地区年度最佳预售楼盘
开发商:阳光城、保利
主创团队:胡智鹰、蔡锦贤、周辉、张大鹏
占地面积:131972㎡
规划建筑面积:227766㎡
工作内容:方案+细部设计+现场控制


“源溪里山” 旨在毗邻之源,却又离尘不离城。福州市北郊桂湖森林温泉小镇内鱼蓝溪从门前静谧流过,独立个性的叠拼、联排别墅让居者在天地自然间,感知一事一物的平衡纯粹,地理位置独特而优越,正在建设中的阳光城保利.源溪里山,即将成为福州未来都市圈新的生活方式。


—— 项目区位与简介
福州阳光城保利.源溪里山 项目位于福州市北郊晋安区桂湖片区,桂湖森林温泉小镇内,福州绕城高速桂湖服务区以西。距离福州站12.9km,距东二环泰禾广场商圈9.9km,距森林公园约9km,距离贵安欢乐世界约5.5km。基地靠近G1501绕城高速,东西侧为山脉,场地高差较大,南北高差约50m,南侧临桂湖片区主环路,环境优美,自然资源丰富。

无疆的森林,连绵的山脉,清澈的溪景,新鲜的空气……这些原生态的自然元素,早已成人居大奢之境。源溪里山,择址福州市北——号称“福州后花园”的晋安桂湖片区,桂湖森林温泉小镇内。项目东西侧为山脉,超过70%的森林覆盖,原生态的山、水、石、林,营造一座天然的负离子森林氧吧。
—— 规划策略
阳光城保利.源溪里山提倡“城市与自然,生活与度假,精神与物质”的平衡。从禅意的建筑到根植于自然, 只为传递美好的生活感受。建筑形式新颖,巧妙的融入山体中,建筑体量沿着山坡向下有序延伸,牢牢扎根于大地,使其视线能够很好地捕捉周围美景。造型设计尽可能的简约,对现有的山体和景观影响降到最小,让建筑物成为山体的一部分,让山体成为建筑的独特风景,让室内与室外的界限变得模糊自然。

清淡一分,自悠长一分。总体规划按其功能分为住宅及配套用房,用地北侧及东侧为自然山体,西侧及南侧临市政道路,规划设计在场地南侧布置主要的配套用房,开放对外使用。场地中间有一条南北走向贯穿的泄洪通道,通过设计打造,形成主要的景观主轴带,集中布置景观绿化。住宅建筑依山就势,逐排分台,相互借重又具备各自独立个性,使场地空间感得到延伸和扩大,因地制宜的形成结合山形的天际线。
—— 方案设计
于禅意蔚木之源,成全身与心的回归。宏观规划形成‘东方禅意’的格局之后,阳光城保利.源溪里山的方案设计也同样尝试将这种新生活主义贯彻到项目的各个细节中。以立面为例,阳光城保利·源溪里山在住宅中采用了一种极简主义与现代风格融合的折中主义风格,在建筑中凸显‘东方禅意’的宁静与自然。


于东方禅意的林境中,静候生活的知己。居住区空间整体舒适宜人,在低容积地块保证联排与叠拼产品拥有大面积的私家庭院配置,在地块内设计了清晰的轴线景观空间。

于自然山水之间,勾勒出舒缓有致、禅韵悠远的建筑群落。建筑的外墙用了涂料、面砖以及深色的金属窗框。阳光照射的体块与深色的金属窗框形成对比。联排别墅产品设计中,采用南北通透的日间生活区系统,营造开敞的室内空间感,设计超大露台,局部亦可改造成阳光房;亦可种植花草植被,打造空中花园;亦可做烧烤吧;还能做室外健身场所等等,创造无限的想象空间。叠拼别墅产品设计中,采用南向横厅设计,超大面宽客厅视野宽阔,首层有南向、北向和侧面三个方向的大花园,足不出户即可游园惊梦、曲折婉转、流连忘返。
—— 示范区设计

山水之美,不仅予人“外供耳目之娱”,更可以予人“内养仁智之性”。源溪里山的建筑设计运用现代极简主义,即去装饰主义手法。整个建筑使用简单、质朴、天然的材料。作为项目核心之一的示范区,其设计更追求于造型非同凡响,具有相当的气场。建筑可以看成为两个大石头支撑起的漂浮L型建筑。巨大的挑檐一面朝向公路吸引路人,在这布置了销售展示区。宏观看,建筑可以理解成“位于两块石头上的玻璃建筑”。

示范区位于项目位于福州市北郊,晋安区桂湖片区,桂湖森林温泉小镇内。售楼处场地紧邻自然山体,南侧和西侧紧邻规划道路,位于基地西南角。建在山中的建筑,自然离不开山。售楼处的材料,选用与山体接近的洞石,古朴自然;与玻璃幕墙搭配,轻盈灵透;深远宽广的铝板挑檐招手迎接客人的到来。
傍晚的的天空,绚丽的光影透过轻薄的铝板若影若现,展示中心表皮设计的细节与入口处的‘水镜空间’共同演绎了夜幕中的青山雅境。一条条灯带,如林间的叠瀑,风吹草动,流水蝉鸣。



这尘世,因清风拂面,无关名利,视为美好之说。
一 组 动 静 之 间 的 生 活 平 衡
一 次 东 方 禅 意 的 忘 言 回 眸
一 场 身 心 回 归 的 物 外 雅 集




里山从不局限为一座青山,而是从古至今便存于天地中一种美好心境。站在悬挑而出的观景平台上,可以听到潺潺的溪水,触摸到柔软而又粗糙的狼尾草,联想到身处在森林中的氛围与感受,赋予场地的自然属性。悬浮的观景平台是坚硬与柔软的组合。铝板挑檐、玻璃栏杆,模糊了构筑与自然的边界。










项目名称:福州阳光城保利.源溪里山
业主单位:阳光城、保利
项目地址:福州市晋安区桂湖森林温泉小镇
设计年份:2017.10-2018.07
项目类型:城市新区综合大盘总体规划与住区设计
占地面积:131972㎡
规划建筑面积:227766㎡
住宅区计容建筑面积:154880㎡
建筑设计:长厦安基建筑设计有限公司
主创团队:胡智鹰、蔡锦贤、周辉、张大鹏

(识别上方二维码,查看更多)




