济南·中建·大学里
/ JINAN ZHONGJIAN DAXUELI
中国·济南
“一座理想的建筑满足居住需求只是基本使命,能够承载居住者对美好生活的想象和期待,才是让人安放心灵的家。”
——贝聿铭
住宅不仅是一个居所,更是一个独特的空间,可以反映我们的个性和品味;好的房子像一份美好的礼物,可以带来无限的快乐和幸福。
01
科研腹地,医疗硅谷
集聚智慧医学成全新格局
济南·中建·大学里位于济南西部,占据国际医学中心板块核心区位。基地紧邻绕城高速、紧靠济南西站,周边景观资源丰富、配套齐全、生态宜居、交通便利。
02
产学研一体·宜居示范区
全龄社区之典范
本案规划设计依托于地块片区的整体规划结构,以“一环,三中心”为出发点,同时结合地块周边的建筑高度及各个角度的人视点分析来确定总图布局中各建筑的高度,最终形成南低北高的建筑布局,弱化住宅组团对周边的视觉压迫。
本案景观规划结构以总图格局为基础,全龄运动为理念,将各年龄段主题活动场地分散于各组团空间,通过中央景观轴及全龄环形跑道将各景观活动场地串联呼应,盘活住区内生态景观氛围,真正实现全龄段一起运动,打造集健康颐养、生态花园、空间艺术于一体的生态化宜居社区。
03
学院派风格
古典美学与现代工艺的完美结合
学院风建筑以陶土砖为主要外立面材料,在欧洲建筑历史上有其工艺和艺术的渊源。
古罗马到文艺复兴时期,意大利人更多把陶土砖视为结构性材料,在外面以雕刻的石材为外立面。 真正把陶土砖视为表现性外立面材料的是中世纪的英国和荷兰等国。尤其在英国16—19世纪的 陶土建筑(Terra Cotta Architecture)达到一个工艺和艺术的高峰,其中又以维多利亚风格的名声最大,其主要的特征影响了当代的建筑设计。
建筑立面采用学院派建筑风格,以立面中心轴为视觉中心,古典三段式分割和色彩分布遵循黄金比例,结合现代建筑大气之美,两者相融合打造出济南首例新学院风风格设计,复古尊贵气派,同时与医学院红砖建筑相协调。
立面多以红砖为主,色彩热烈、古朴。主体立面采用红砖的红色系,底部采用米黄色的真石漆或者大理石贴面,两者颜色的配合让整个建筑立面打破了砖的单一色彩,丰富多彩。砖红色与米黄色色彩搭配遵循古典黄金比例关系,经典隽永。
立面用材上,通过现代的工艺手法做出新的突破,不同的建材嵌合有序,玻璃、铝板、石材大胆碰撞,表现得非常现代与超前,完成了不逊色于全玻璃幕墙得“当代感”演绎。
04
精妙设计·匠心工艺
人性化设计与多元化需求的组合
“家”不只局限于满足原有单一的居住属性,而是向满足多元化的客户需求转变,让家变成一种可居家、可悦己、可社交、可办公的聚合场所,从容解决家人、自我、朋友、同事间多种生活关系。
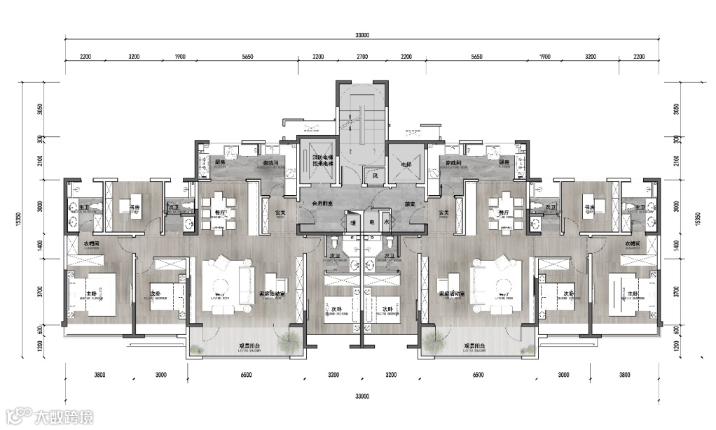
180户型入口家政间设计,客、餐、中西厨、玄关双流线,将“链接空间”做到了极致。
“可变户型”,创造X住宅无限可能。开放、可变的复合厅位于中央,卧室、书房、卫生间等功能分区位于四周,消灭走道的面积浪费,做到标准的全生命周期户型,更好地平衡两代或三代人的生活空间......
首层采用大堂设计,打破常规北入形式,由双大堂中间穿过前场后从两侧进入大堂,多进式空间形式,提升居住品质。
05
人文社区·以人为本
人与空间的完美融合
对土地价值的尊重,营造各种生活场景交还给社区,甚至交还给城市,应是打造新型城市的标准。“全景规划”、“新型综合住区”是解决新型城市发展的重要思路,进一步拓展了大型住区空间的想象力,以人的尺度为设计前提,注重空间与人的融合,注重社群氛围的营造,让居民生活于此,安居乐业。
一座理想的建筑满足居住需求只是基本使命,能够承载居住者对美好生活的想象和期待,才是让人安放心灵的家。
项目档案
项目名称:济南·中建·大学里
项目地址:山东省济南市
项目业主:山东中建城发
业主设计管理:于学良、董明明、宋蓬、马天水、孙琦
方案设计:AAD 长厦安基
项目设计董事:杨强、陈刚
项目主持建筑师:卓金鑫
项目建筑师:林晓达、苏志成、张颖、尹克宽、黄鹏
设计时间:2019 年
建成时间:2023 年


