向理想生活更进一步
更时尚、更度假、更潮流、更尽兴的揽阅
01场地概况
招商揽阅择址于长沙岳麓区,梅溪湖国际生活圈,地处麓谷大道与枫林三路交汇处,落座精粹资源集群,展映理想无限缤纷,该区域土地供应有限属稀缺资源,公园周边位置优越。
02场域思考
社区大门、展示区、会所位于地块西侧主要展示面,道路界面与大区标高存在错层关系,我们利用极致的场地高差,形成下沉式的绿谷景观区,打造双首层景观空间,作为社区的核心景观区,链接南北向的社区景观轴,与沿街的城市活力轴,整体形成一个充满生命力的“H”轴规划结构。核心区尽可能设置全架空,社区大堂结合下沉庭院及架空层泛会所化,提高社区品质。
▲利用极致场地高差形成下沉式景观区,打造双首层景观空间
项目以“3大首创设计”为基础
重新理解新一代生活方式的开放性与松弛性
打造新型体验
“浮岛·溪涧”主题景观城市会客厅
# 首创度假公园式景观 #
以虹夕诺雅为灵感源泉,打造约3000㎡浮岛溪涧下称庭院,以园林景观贯穿地上与地下,塑造视觉的垂直立体性,打破空间边界,让自然度假感完整无缺的无界流动。
# 首创双层垂直公区 #
首创双层立体公区,在下沉庭院之上营造充满悬浮感的主题空间,赋予其空间功能和持续运营,使之成为家的延伸。
# 首创假日集合式会所 #
通过约1200㎡轻奢会所,塑造场景的高浓度与精致感,重构人与人之间的关系,获得快乐自由的弛放与体验。
03空间策略
项目以松弛为核心,融入度假的惬意与艺术的美感,打造一个身心放松的理想空间
广泛应用文化创意,转译非遗工艺与手法,赋予成品更熟悉与先锋的审美;会所的新形态,让人在度假中度过生活
设想100种生活方式,从城市界面开始,项目打造多个空间的全维展示,以运营发散多样化场景,呼应人们对于社交多样化需求,赋予使用者场景变化的自由,让场景激活更多生活方式。
社区入口 | Community entrance
社区入口:大门界面尺度达150M,70M超大尺度社区入口,16*18M酒店式落客区,享极致归家体验。
情景商业 | Community Commerce
情景商业:隐贵生活,小商业大格局,长沙年轻烟火气息。
景观水庭 | Landscape Water Garden
景观水庭:静谧的林涧之间,水面之上,漂浮绿岛,自然又富有艺术感,3600㎡度假公园,增加海量生活体验和场景。
售楼部 | Sales Office
售楼部:以松弛为核心,融入度假的惬意与艺术的美感,打造一个身心放松的理想空间,1200㎡会所组成长沙揽阅的超级公区,更大的场景容量。
架空层 | Open Floor
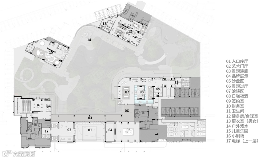
架空层:3000㎡架空空间,健身房通过巧妙的艺术氛围营造,让健身房既满足运动休闲需求,也创造了一个适宜交流的环境;儿童乐园以趣味性和互动性为核心,为营造充满童趣与乐趣的多功能游乐空间;小剧场打造社区邻里交流的小剧场,空间内配备优质的音响与投影系统,可用于小型表演、社区电影等多样的生活场景。
单元入口 | Unit Entrance
单元入口:单元大堂立面延续主体现代雅奢风格,立面简约利落,以米白色月光米黄石材、香槟金铝板及潘多拉彩虹印象奢石呼应主体白金色调,以精工细节强化立面品质,石材采用波浪纹、圆弧倒角、拉槽、抛光等细节工艺,铝板采用倒角、凹槽结合密拼工艺,提升归家尊贵感。
细节把控 | Detail Control
建筑整体以低调奢华的秩序与精工匠造的设计细节为目标,采用香槟金铝板、月光米黄石材、奢石等材料,通过不锈钢与奢石的碰撞,达到艺术与奢华的完美融合。
室内设计概述
展示区室内空间设计延续建筑景观的设计风格,通过总体布局与分幕空间的递进设计,将非遗技艺转化为空间元素,在传承湘江文脉的同时更具有艺术观赏性,在材质的工艺和纹样中使用棕编、湘绣石木雕等传统技艺,实现传统美学与现代审美的创造性融合。不仅展示了「松弛」与「度假」主题的深度阐释,更能在不同功能区之间实现无缝衔接与情感共鸣。为客户构筑了一个具有艺术美感与多重体验层次的城市微度假社区。
# 技术图纸 #
▲大门沿街立面图
▲门头内侧剖立面图
▲负一层平面图
▲一层平面图
# 项目档案 #
项目名称:长沙招商·揽阅府
项目位置:长沙市岳麓区
项目单位:招商局地产长沙公司
项目特质:城市新区住区展示中心
建筑设计:AAD长厦安基
建筑设计董事:陈刚
建筑方案设计团队:姚世雄 林晓达 张宏国 王越 苏志成 孙鹏 黄梦婷 王晨铭 芦珊 李刚 沈璐瑶 顾兴玲 白楼楼
建筑/景观摄影:ChillShine丘文三映 三棱镜景观摄影 直译建筑摄影(首字母排序)
占地面积:6500 ㎡
建筑面积:1200㎡

