AAD作品
中建云境一现代精工艺术豪宅
JiNan ZhongJian CLOUD MANSION
济南·中建云境
中国·济南
“上帝存在于细节之中,
而精工建筑是细节的终极献祭”
—— 密斯·凡·德·罗
中建云境项目定位为都市TOP高端客群人居空间,“链接时代,链接城市,链接未来之境”,重磅启幕中建全新顶级产品系,打造划时代作品,以生态艺术大宅,公园都会空间,低密度人文社区为特色,多维度展现地域文化性和云端豪宅属性。
城市核心
筑境云端
Urban Core
项目位于济南高新区核心会展片区,临近中央商务区、奥体文博片区,汇聚城市政务中心、商务中心、文体中心于一体,为项目独一无二的优势资源。基地周边交通发达,用地处于济南三条城市动脉交汇处,周边配套完善。
The project is located in the core exhibition area
of Jinan High tech Zone
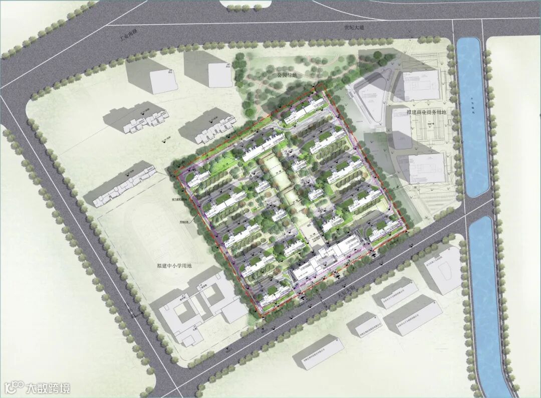
项目团队在整体规划上着力打造生态艺术人居-公园式社区空间,以生态为主题,规划小高+洋房产品,形成容积率2.0的低密社区。项目以一园、两轴、三心为主导的设计理念,中心围合对称式布局,楼座布局两边高中间低,由外向内汇聚,取“聚宝盆”之意。倾力打造南北长约170m宽约40m,总面积近七千平米的中央景观轴,同时与北侧城市公园有机结合,共同塑造高标准景观品质。极致人车分流,地上零机动车,地上全部为景观绿化及人行动线。打造安全、安静、舒适、怡人的高端人文社区!
项目立面采用新生代精工建筑风格,主要特点为简洁的形体、黄金比例、材质高级,细节精致、色彩时尚,在材质选择上,运用大面积铝板和玻璃,彰显建筑的现代感与科技感;香槟金色搭配中性银灰色突出了建筑的时尚感;装饰去繁化简精工细节更显高级品质。
技术图纸
Technical drawings
总平面图
项目档案
项目名称:济南中建云境
项目位置:山东省济南市
项目单位:山东中建城市发展
建筑设计:AAD长厦安基
施工图设计:AAD长厦安基
幕墙设计:清科锐创
设计董事:陈刚
项目主创:卓金鑫 林晓达
设计团队:尹克宽、沈璐瑶、张颖、徐剑锋、魏偲磊、王斌程、林烨
建筑摄影:直译建筑摄影
建筑面积:170241.69㎡
设计时间:2021.08—2022.08
建成时间:2025.01
﹀
﹀
﹀


