一大批全文强条的结构通用规范明年实施,规范的精神契合了我们结构设计审查的理念,以结构可靠性(安全性、适用性、耐久性)为设计目标,抓大放小,设计或审查过程中判断力很重要,要讲理不教条。以下讨论审查中常见的两个问题,个人见解,欢迎同行争论。
一、楼梯间结构布置问题
框架结构
(1)框架结构楼梯间四角宜设框架柱,至少中间平台处应设两个框架柱。审查中发现有一些工程的楼梯间布置两个框架柱甚至一个框架柱。楼梯间承担着人员疏散功能,是紧急情况下的安全岛,应加强结构布置。
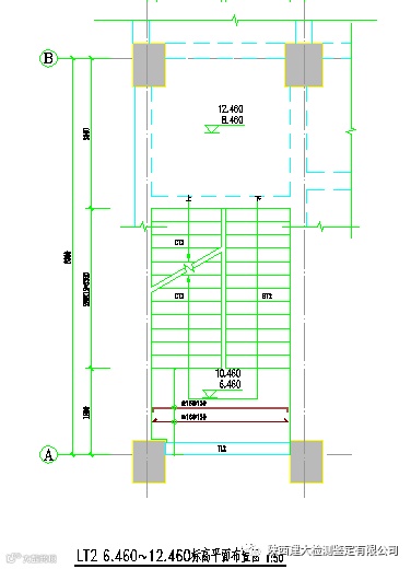
(2)框架结构设计时,应统筹考虑填充墙填充墙、围护墙和楼梯对结构规则性的影响,若楼梯间刚度不利于结构规则性时,应采用滑移支座;若楼梯间刚度对结构规则性无影响时,宜采用滑移支座;若楼梯间刚度有利于结构规则性,不应采用滑移支座。不经判断,楼梯间就采用滑移支座是不对的,框架结构楼梯采用滑移支座,有利于局部楼梯间的抗震性能,是优先选择,但若采用滑移支座不利于结构整体抗震性能要求时,局部利益应服从整体利益,例如:大L形、U形结构平面远端的楼梯间,其斜撑作用有利于结构规则性,采用滑移支座不利于结构整体抗震性能;再例如:如下图BT型、CT型、DT型楼梯的滑移支座滑不动,框架结构楼梯不要不经过判断都采用滑移支座。楼梯间抗震设计采用加法还是减法,需要结构师的判断力。


剪力墙结构住宅楼
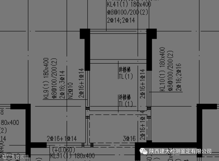
住宅楼楼梯间通常外凸,楼梯间电梯间集中布置导致楼板缺失较多,需加强结构整体性。采用装配式楼梯时,采用滑移支座不妥,建议都采用固定铰支座,并加强连接。如下图是一个18层住宅楼的完全外凸楼梯间的建筑平面截图、结构平面截图和预制楼梯支座大样。沿纵向楼梯间其实是框架结构,且高宽比接近20,难以自立,所以这楼梯间水平荷载传递给主体结构是主要传递途径,那么,楼梯间仍采用滑移支座就不对了,建议加强楼梯间整体性和与主体结构的连接:采用现浇楼梯,且梯板两侧增设粗钢筋,楼梯间处梁、板加强。



二、中小学,幼儿园等框架结构的结构重要性系数取1.1的问题
结构设计状况分为短暂设计状况、持久设计状况、偶然设计状况、地震设计状况,结构设计重要性系数只针对前两种设计状况,对应的是承载力极限状态设计的基本组合。对框架结构影响梁板的配筋,对框架柱基本没影响。可靠性标准修订后,分项系数提高,平时使用的结构可靠性水平已接近国际主流。楼面采用梁板体系,其结构承载力潜力很大,几乎没有这方面的工程事故,不是结构设计担心的问题。
框架结构抗震最大缺点是强柱弱梁难以实现,是结构设计担心的问题。框架柱配筋适当加强,框架梁配筋尽量挖潜减小是正确的设计思路。看以下数据:《建筑结构可靠性标准》GB50068-2018实施后,经对某小学四层教学楼的测算,框架柱计算结果一致,框架梁板用钢量增加,框架梁增加2.86%,现浇板增加1.87%。也就是按计算结果反而弱化了强柱弱梁的设计,结构重要性系数提高也同理。
结构重要性系数与结构安全等级对应,按《建筑结构可靠性设计统一标准》3.2.1条文说明:抗震设计中的甲类建筑和乙类建筑,其安全等级宜为一级。按即将实施的《工程结构通用规范》3.1.12条文说明:应注意,结构重要性与结构的抗震类别不一定完全对应。
综上所述,中小学幼儿园等框架结构的结构重要性系数,若提高对结构安全有利有弊。审查的此类工程,有的采用安全等级一级、对应结构重要性系数取1.1,有的未提高,我们审查都认可。若结构重要性系数取1.1,注意基础的配筋计算也应相应提高。


联系方式
电话:13619260388
地址:西安市未央区凤城五路赛高街区B座24层

