麻吉小院
这是由梦想的设计师构筑的小屋
设计 | Design:麻吉空间联合设计机构
主案 | Designer:傅晓
地址 | Address: 大学城附近金星商业城二楼B区

这是一个老朋友的创业故事,故事起源于两年前,王先生的宅天屋还是只有三十多平米的狭长空间,颇有日式寿司吧的吧台感觉。
去了点上一杯清酒水或者鲜果汁,你可以跟王老板聊聊他的创业之路。
王先生在考虑装修自己的宅天屋之前,不仅在网上搜集各种资料,还亲自跑了各大装修公司。可惜聊了之后都不能让他满意,跟他心里的宅天屋相差甚远。托朋友的介绍,王先生认识了宅天屋的设计作者,傅老师。
在充分的交流后,傅老师给王先生设计了理想中的宅天屋1.0版本。
说在前面
与客户沟通
去年年底的某个下午,王先生给我们工作室发来短信,大致的意思就是咨询我们接不接工装的全包定制。对于宅天屋的想法,他有了更多的创意和想法。
因为都是老朋友,我们的第一次碰面直接选在了宅天屋的新址。
一个交通更为便捷,场地更为宽敞的楼上,类似俩间大客厅从中间拆了墙体,打通了之后的模样。
你很难想象,一个一米九几的大男人,见到我们之后像个小男生一样的雀跃。他激动的诉说这他心里的规划“这里可以是长桌,那边可以使靠窗的高凳,这边可以放吧台,后面给我打一个大大的酒柜,然后我要在这里挂上海贼王的挂画,诶诶,路飞你知道吗?橡皮橡皮人……“
除了傅老师,我们都是第一次见到王先生。
本来我们是想打断他,跟他说,别着急,我们先整体规划,再来细化,考虑下动线走向,你有哪些需求。
但是傅老师示意我们不要打断他,让他说下去。这里是他的梦想,也是他自己选择的梦想,我们要聆听他的诉求,并且尽可能的满足他。
关于设计

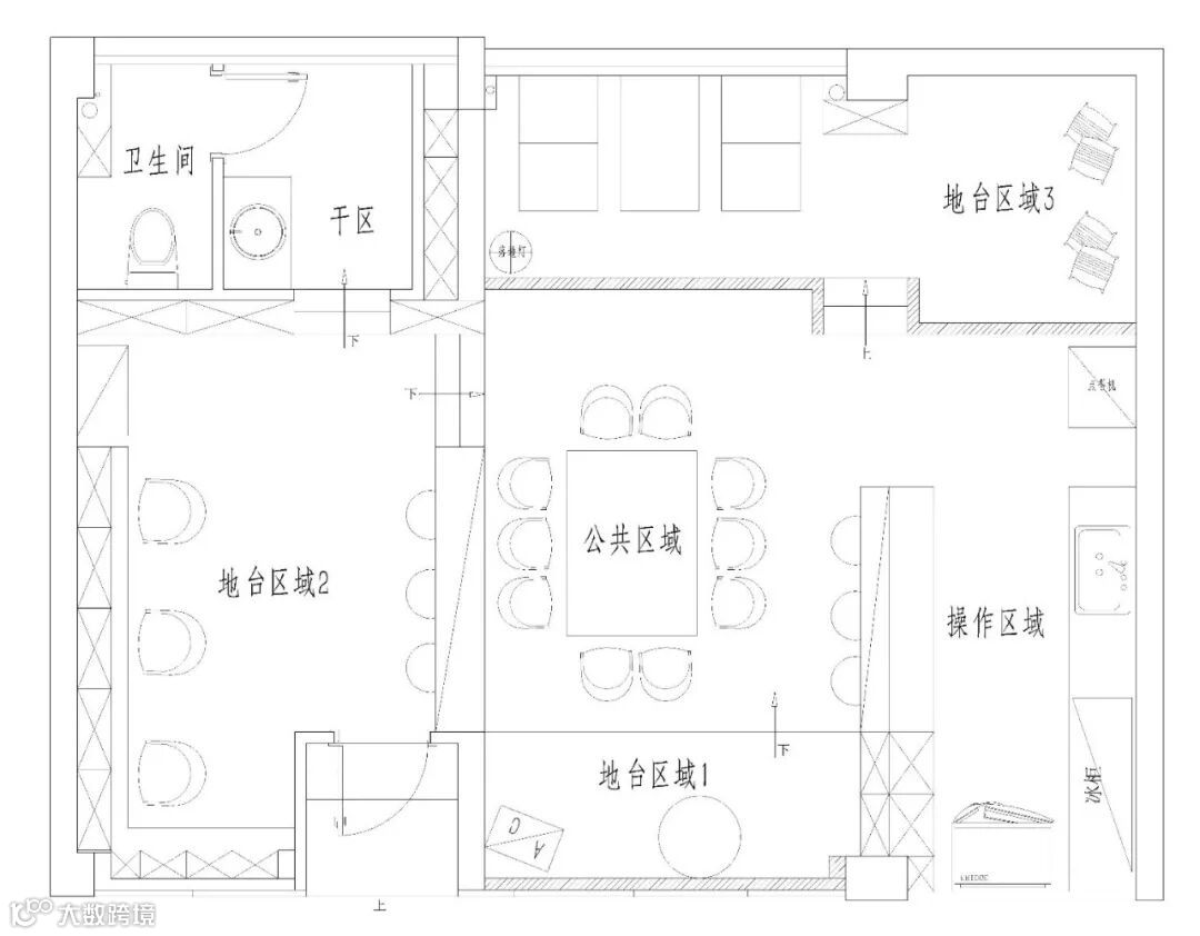
【 设计平面图 】
设计想法:
结合了二次元的宅文化和酒吧文化的清吧场所,是宅男宅女们的独享天地,针对动漫爱好者这些年轻化学生人群。
王先生还是一个资深的漫迷爱好者,特别是日本动漫文化,拥有众多的手办和玩偶,所以让这些收藏品让顾客第一眼看见,也是首要考虑的因素。
宅天屋2.0版本

▲ 入门小景




▲ 大厅一览

▲ 手办展示柜


▲ 王老板出镜,宅天屋吧台


▲ 独立包间


▲ 温馨小景

▲ 卫生间
雷帝
银魂
鹰眼
生气熊
皮卡丘
怪怪呱
······ END ······
MAGIC SPACE DESIGN
麻吉说
通过专业的技能和智慧改变居住空间
我们的理念是私宅设计不被风格局限
要从空间本身
从客人最基本需求着手
以人的生活为核心
设计不仅是一次艺术的自我旅行
更是源自对人类变化着的各种需求做出智慧的、敏感的、富于创造性的有力回应
需要与传统文化、社会经济、自然环境达到有机
统一!
麻吉是由好朋友们组成的队伍
是一群热爱生活,热爱设计的年轻人组成的团队
我们的服务理念是“受人之托,忠人之事”
将工作专业做到极致,坚持真正的设计初心不改
让设计走入您的内心!
麻吉座右铭:
伸手摘星,即使徒劳无功,亦不致一手污泥!
麻吉空间联合设计机构
让设计走入你的心
麻吉空间设计 | MAGIC SPACE DESIGN
合肥·包河区水泥研究设计院1栋105室
phone: 0551-63849484
mobile: 18096686053(麻吉酱)
15155514947(傅老师)
wechat: majikongjian (麻吉酱)
weibo: @麻吉空间联合设计机构
http: www.majiboom.com
好看点这里!



