1
触碰质感与肌理,仿佛是感知这间翻新公寓的最佳方式。细腻与品质并重的设计,与“古之楚亭”广州的脉动相契合,在繁华喧闹的社会中为自己预留一片净壤可供伫立。
对自然与精致、复杂与风格,配饰和元素的微妙平衡进行美学上的梳理,让业主能够穿梭于优雅格调的空间中,皆是我们对于生活品质的追求。不同美学的融合和新生,还可以丰富生活方式的多元可能。
2
设计主持人 :傅晓
主案设计师 :张欣

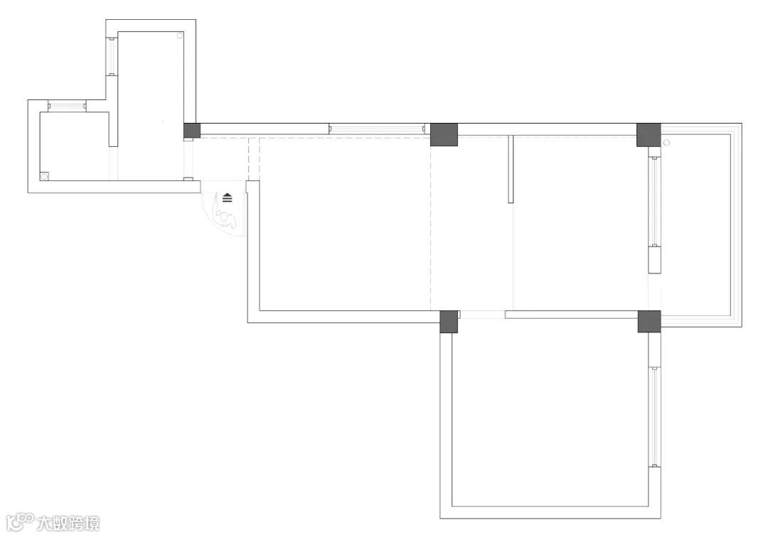
▲ 原始户型结构图

▲ 平面设计改造图
①:阳台和客厅部分的隔墙基本全部拆除,对空间进行重新规划;
②:针对业主使用需求对空间功能优化,增加了多处定制储物功能的柜体设计。
③:厨房和卫生间位置,业主比较满意,所以在原户型基础上进行功能性增强。洗漱区挪动到玄关右侧位置,在餐厅区域隔离出一个业主需求的步入式衣帽间。
效果图表现

餐桌上的装饰干花仿佛诉说着独属于这个空间的点滴岁月,莫名让人心静。

餐厅的设计依托于过道中间的这扇窗户,为了营造氛围,我们采用了控制光路的百叶窗和异型枝丫的金属吊灯。
公寓的空间本身就十分紧凑,开放式设计的好处就是在于打破框架的束缚,增加空间利用率。无形即自由,餐厅的布局不一定只做餐桌之用。

在不牺牲盥洗室的沐浴品质和实用功能下,我们对洗漱区的设计做了改良,调整到玄关的右侧,正好处于餐厅、卫生间以及厨房的三点之间,适用性更广,方便居家。
因为女主人对于步入式衣帽间的喜爱,所以在后方预留的空间,我们采用框架玻璃面板从地板延伸到天花板,设计了一间mini衣帽间。





3


▲ 卫生间氛围参考示意图

▲ 卧室氛围参考示意图

▲ 衣帽间氛围参考示意图

90㎡去风格化北欧风两居
110㎡中古风宜家三居
206㎡现代轻奢大四居
142㎡新中式三居
麻吉空间公众号 | 认识了解麻吉

麻吉空间客服微信号 | 设计咨询

麻吉酱






