
01
设计理念
Design concept
我们期许一个自然与艺术共生的空间
模糊风格设计的边界感
打造一个真正让人静下心的场所
02
设计信息
Design information
设计面积 :317㎡
服务团队 :麻吉空间联合设计机构
03
效果图展示
Show effect chart

一层平面设计效果图
一层全景效果展示视频

一楼客厅区域(纱帘后为落地窗,窗外为景观花园)

客厅俯瞰图
在本案中,所有的场景设计都由互动出发,“隐”于其中,而功能至上。

入户玄关远景

艺术在追求自然时需要避免刻意的表达,设计在表现时需要隐去主观印迹。
但是风格几经跳跃,终究归于一道,是设计师协助业主寻找心中理想家的路途。

厨房正视角
偏近于大众所喜欢的牛油果绿,要比那个更加深邃,也许是美式给予的灵感,又或许是窗外的绿意盎然,师法自然,又高于自然。

厨房小景
与一个有细节强迫症的业主沟通,设计师也是非常开心。落地实景的完美就在于对于细节的把控,无论前期设计还是后期施工。

客厅电视娱乐区

客厅爱好休闲区
当通体落地窗将户外的美景毫无保留的呈现,光线熙熙攘攘的照射进来,居住其中的人也同样会产生共鸣,让人敞开心扉,内心愉悦且舒适。

阳光洒入客厅

琴室小景

书桌与钢琴

原户型阳台区域(纳入客厅休闲区)

主卧入口与书柜

走廊全景,从玄关看向主卧入口
设计师就是权衡元素和风格的操盘手,让多样化和谐共生,谱写一首漫步其中。

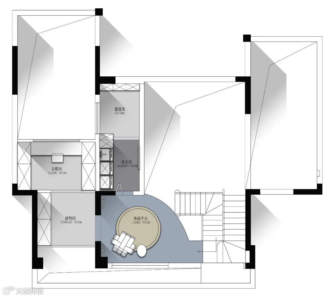
夹层平面设计效果图(挑高负一层搭建)

负一层平面设计效果图
负一层多功能厅全景效果展示视频

楼梯辗转连通多层空间,高处为搭建的夹层空间,底部是负一层的水吧台区域
设计的范畴中,元素是需要继承的,带来美的语言是静默的。

夹层上的休闲平台

楼梯墙面设计处理(左边为负一层玄关入户)
复古的红砖墙元素与美式的扶手楼梯相结合,临摹天然所带来的心中所想。

多功能区东侧(楼梯视角)

多功能区西侧(夹层平台视角)

多功能区全景(水吧台视角)

多功能区(水吧台视角)

多功能区(书房入口视角)

多功能区通道(东侧互动区光影)
在不断寻求设计变化的路途中,让风格可以像循环流动的生命一般,犹如轮回的时尚,不是复刻经典,而是设计师的风格谱写。

多功能区通道(互动区书架)

长廊,由互动健身区经过公卫到达多功能区,最内部是景观绿植区
多功能区的作用是用于沟通左右和上层空间的联系,这就像是一张编织网构成的平行宇宙,而多功能区如同通道装置,在每个不同深邃的氛围中洞察。

多功能区(负一层入户玄关)

多功能区(玄关视角)
在负一楼的入户玄关鞋柜上方,设计师设计了一张网格玻璃面,让相邻的满眼绿植气息扑面而来,让每一次呼吸都能够得到美好的反馈。

植物花园(上方也是天井采光)

互动健身区(天井引入自然光线)

互动健身区绿植
经典与艺术的对话是空间性的,一根罗马柱撑起了整个穹顶,伴随着光线洒入,恢弘大气的视觉冲击让人生出一种庄严感。
①:厨房较小,整体功能单一需要优化。
②:主卧室偏小,楼梯位置需要优化。
③:原空间分配不符合功能需求。
④:结构需要进行改造搭建夹层以及阳台外扩。
18.1m³储物空间 ≈ 366 个21寸Rimova行李箱
7.22m³ + 16.5m³+16.1m³+5.6m³ = 45.42m³
50.76m³储物空间 ≈ 921 个21寸Rimova行李箱

2018 设计本年度最具创新奖
2019 M+中国高端室内设计大赛 城市赛区TOP20
2019 第九届筑巢奖大户型 优秀奖
2019 PCHOUSE AWARD私宅设计大奖 城市榜 TOP10
2019 好好住营造家 提名奖
2019 芒果奖住宅/公寓空间类 住宅创意奖
2020 CIID中国室内设计大奖赛别墅公寓类 入选奖
2020 一兜糖年度设计师TOP100
2020 金堂奖年度杰出住宅公寓空间设计奖
2020 Kapok红棉室内设计奖
2020 PCHOUSE AWARD私宅设计大奖 城市榜 TOP10
2021 好好住营造家年度设计TOP500
2021 一兜糖 /2021有温度的家/ 地区TOP100
2021 PCHOUSE AWARD私宅设计大奖 城市榜 TOP10
2022 好好住年度推荐设计师城市榜(大户型)第一
2022 MUSE Design Awards(美国缪斯室内设计大奖) 银奖
2022 瑞丽无界·轻奢生活方式 优秀设计奖
2022 法国双面神“GPDP AWARD”国际设计大奖 (别墅空间)创新专业奖
安徽省合肥市包河区 靶场路1号景城花园 1#1602室