
01
设计理念
Design concept
自由与舒适至上
简约与质感的平衡
温暖的治愈空间
02
设计信息
Design information
设计面积:126m²
服务团队 :麻吉空间联合设计机构
03
效果图展示
Show effect chart

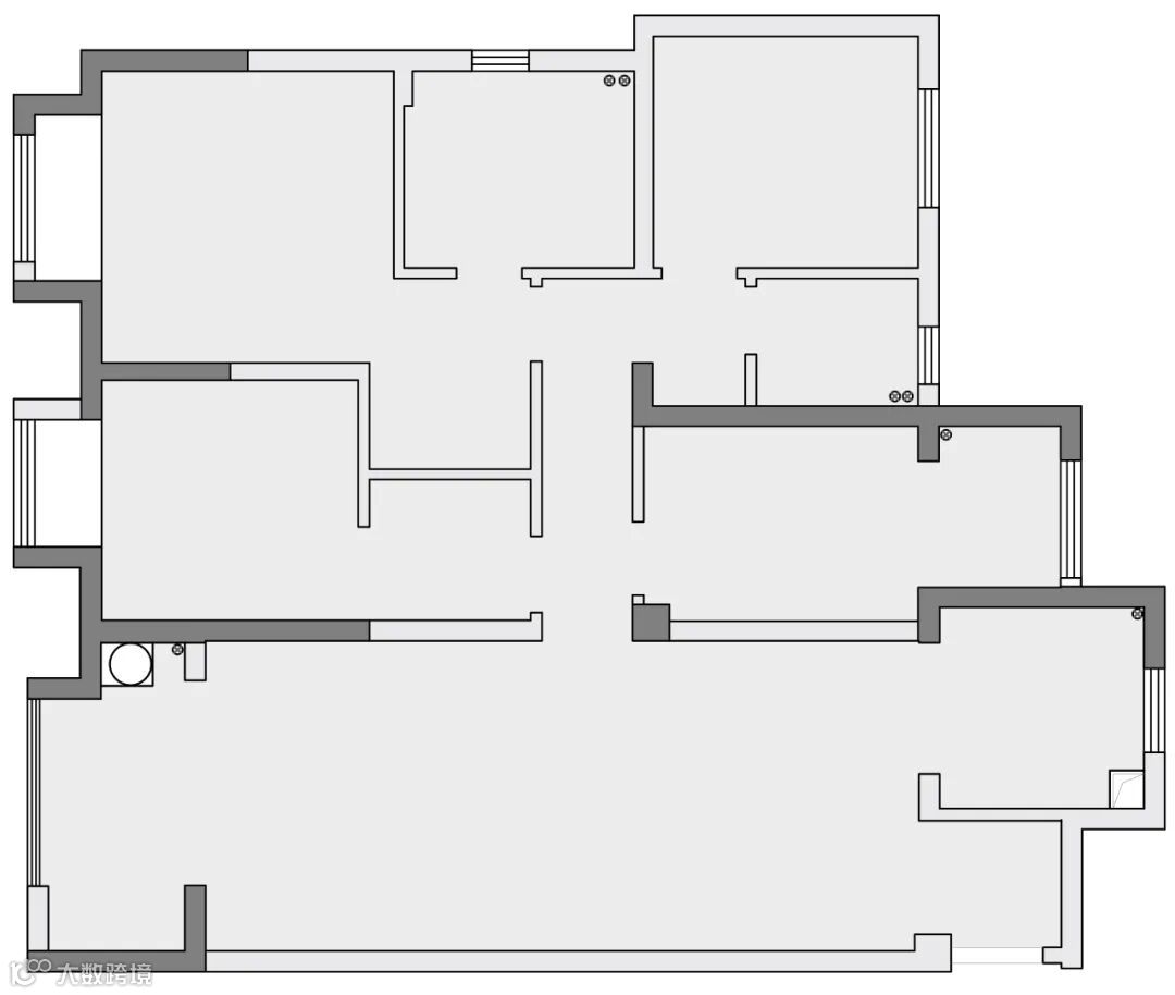
原始平面户型图

平面设计效果图
客厅全景效果展示

客餐厅全景图
玄关看向公区角度
现代风格中大家最常见的是黑白灰的冷调家居氛围,而这次我们打造了一个舒适治愈、质感满满的暖调现代风的温馨之家。
客厅看向餐厅西厨
吧台处理细节
设计改变了原有空间的格局,将客餐厅公区过道部分打通,将空间尺寸做细分后补充了开放式书桌,开放式西厨,优化生活动线并补充大量收纳。整体硬装上没有选择浮夸的造型,家具也是以经典的简约款为主,通过材质的运用,提升空间氛围档次。
公共书桌区
原有卧室和过道重新规划,独立出一块公共书桌区。背后的通顶高柜里通过预埋管线将主机及各种设备进行收纳,不用担心会被人吐槽桌面混乱有碍观瞻啦。
客厅区域
无主灯设计与局部重点照明做结合,搭配智能灯光定制情景模式,不同情景使用不同的灯光层次。
一个随着生活律动的多样性的家,谁能不爱呢~
客厅餐厅视角
客厅拥有一面超级抢眼并让人羡慕的开放书架,观影模式开启的那一刻你才能注意到藏在书架上方的布幕。带门收纳柜的柜门做成可移动黑板是专属给小朋友的涂鸦场地,让孩子想画就画。
吧台区视角
开放式西厨与其它生活区域保持了一定的联系,也增加了整个家庭空间的互动性。
厨房吧台
西厨吧台结合原有建筑承重柱,将吧台分解成2个方向,一个方向对着过道书桌区,一个方向对着餐桌区,临时就餐、吧台小酌、备餐收纳……还有着更多功能等着被开启。
厨房小景
实木与石材的错落结合,保留了自然木材的温暖感,还赋予了整个空间一种高雅的氛围,L型的转角柜将电器,水槽,操作区做好收纳规划。
走廊看向客厅视角
承重柱底部保留水泥色饰面,亚克力板围合挡板与书桌亚克力腿一同预埋了氛围灯片。
主卧全景效果展示
主卧全景
床头背景
主卧以胡桃木色为空间基调,虽然是现代风格的简明线条勾勒,但温馨简约的氛围灯光及家具软装的搭配让空间增添了的仪式感。
主卧视角
悬浮床让人在视觉上看起来更加轻盈。
主卧干区及进门方向
主卧干区浴室柜采用了解构的手法,这意味着它不再遵循传统的布局和结构。相反,它通过打破常规,创造出独特的空间效果,为卧室增添了一种现代艺术感,并增加了空间的互通性。
主卧卫生间三分离设计,将淋浴区域和马桶区域,浴室柜区域分隔开来,提高卫生间的使用效率,并确保卫生间保持干燥和清洁。
主卧床头小景
干区小景
入户端景小景
04
户型分析
Information analysis

原始结构图

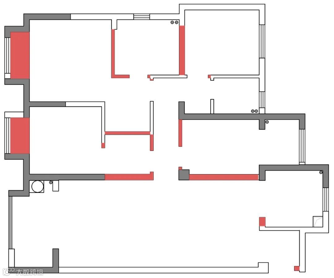
设计后结构图(红色为拆除墙体部分)
①原户型房间格局为四室两厅,不符合业主使用需求;业主只需要三间卧室,去客厅化。
②原始的户型动静区混乱,且零碎,卫生间偏小无法满足日常使用,调整户型的动静区,重新梳理室内多种动线。
③北次卧空间偏小,需要有大一点的西厨空间以满足日常需求。
05
意向氛围
Results show







荣 誉 奖 项
2018 设计本年度最具创新奖
2019 M+中国高端室内设计大赛 城市赛区TOP20
2019 第九届筑巢奖大户型 优秀奖
2019 PCHOUSE AWARD私宅设计大奖 城市榜 TOP10
2019 好好住营造家 提名奖
2019 芒果奖住宅/公寓空间类 住宅创意奖
2020 CIID中国室内设计大奖赛别墅公寓类 入选奖
2020 一兜糖年度设计师TOP100
2020 金堂奖年度杰出住宅公寓空间设计奖
2020 Kapok红棉室内设计奖
2020 PCHOUSE AWARD私宅设计大奖 城市榜 TOP10
2021 好好住营造家年度设计TOP500
2021 一兜糖 /2021有温度的家/ 地区TOP100
2021 PCHOUSE AWARD私宅设计大奖 城市榜 TOP10
2022 好好住年度推荐设计师城市榜(大户型)第一
2022 MUSE Design Awards(美国缪斯室内设计大奖) 银奖
2022 瑞丽无界·轻奢生活方式 优秀设计奖
2022 法国双面神“GPDP AWARD”国际设计大奖 (别墅空间)创新专业奖
联系麻吉


