
秉持着与业主对美好生活的尊重
共同创造令人满意的设计成果
/ The Design Image /
/ Graphic Design /

图|原始户型图 ©(红色为拆除墙体)

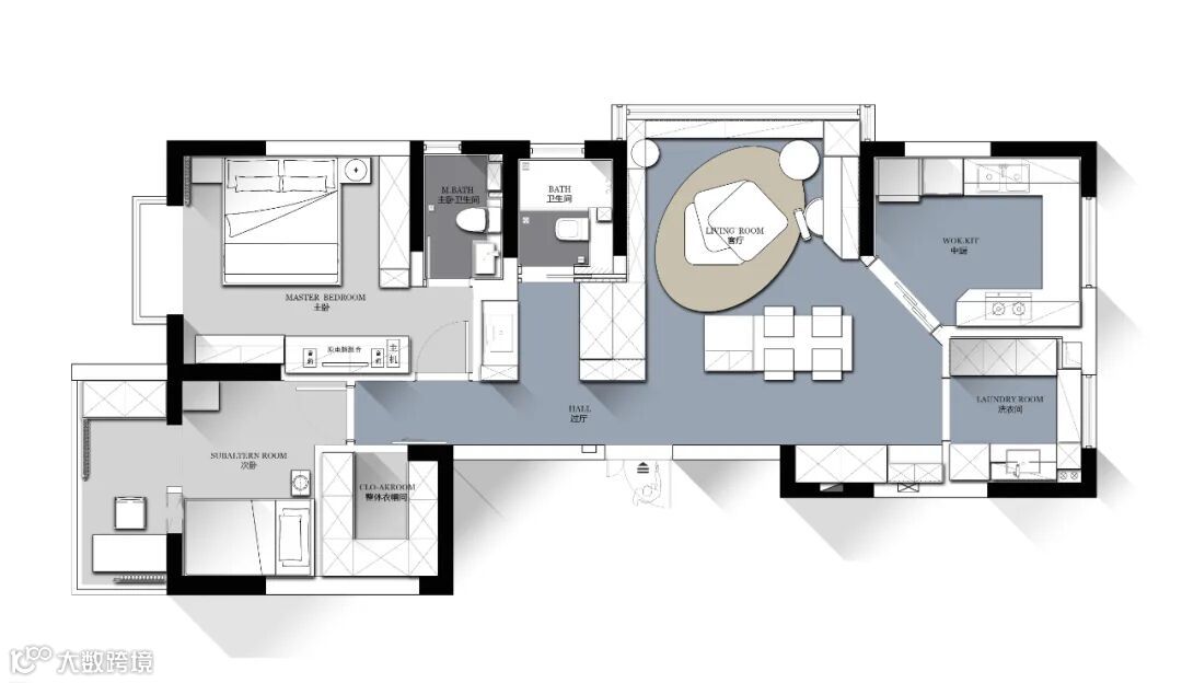
图|平面设计彩图 ©
/ Live-action rendering /


左侧为入户门,右侧顶柜内为定制旋转式鞋柜,底部预留的空间可放当季常用鞋

客厅视角看向入户门
不必要的细节被一一省去,极简纯净的白色贯穿了空间,光影明暗的深浅过渡勾勒出不同的区域。


入户视角

中岛台与餐桌


家政间

客厅茶几
简洁的线条加以利用,构造一个温馨自然的客餐厅休息区。边户西向的超长玻璃窗承接户外的光线,黑色的深邃与玻璃的反射,为空间带来质感十足的美好观感。




女主人的工作区

Devialet Phantom(帝瓦雷巴黎歌剧院联名音响)


家政间,左边的缺口预留给扫地机器人使用


中厨空间
原户型的次卧设计为多功能的中厨空间,大大满足男主人对美食的热爱。原始的厨房空间做家政间和储物间使用。


男主人的工作区和女主人的梳妆台

镜中生活

主卫空间


入墙式的吊柜推拉门,让门的开合不占用多余空间,使空间更为简洁美观。

静区的通道视角,白色与黑色,一张一弛间赋予了空间更多的色彩。

2018 设计本年度最具创新奖
2019 M+中国高端室内设计大赛 城市赛区TOP20
2019 第九届筑巢奖大户型 优秀奖
2019 PCHOUSE AWARD私宅设计大奖 城市榜 TOP10
2019 好好住营造家 提名奖
2019 芒果奖住宅/公寓空间类 住宅创意奖
2020 CIID中国室内设计大奖赛别墅公寓类 入选奖
2020 一兜糖年度设计师TOP100
2020 金堂奖年度杰出住宅公寓空间设计奖
2020 Kapok红棉室内设计奖
2020 PCHOUSE AWARD私宅设计大奖 城市榜 TOP10
2021 好好住营造家年度设计TOP500
2021 一兜糖 /2021有温度的家/ 地区TOP100
2022 好好住年度推荐设计师城市榜第一(大户型)
2022 MUSE Design Awards(室内设计) 银奖
联系方式
办公地址






