“不追赶时间,
才能与生活的美好并肩同行。”
/ The Design Video /
项目视频
/ Graphic Design /
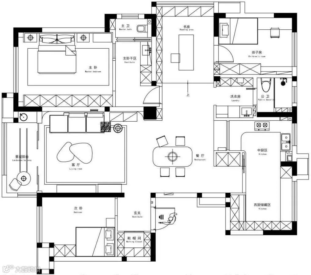
原始户型图 © vs 平面设计图 ©
改造分析:
1.在玄关处,沿墙打造收纳结构,满足即时收纳的需求;
2.将小次卧纳入厨房,让中厨与西厨保持独立与贯通;
3.将两卧之间的空间化零为整,设成开放式榻榻米书房,提升家居格调;
4.主卫采用独立干区设计,以开放格局与玻璃隔断实现干湿分离,同步展现通透感。
/ Live-action rendering /
△ 给玄关补光的玻璃门
△ 质朴的莱姆石地砖
玄关以圆形灯膜造型作为视觉焦点,推开家门,迎接你的是圆月般的暖光,它安静地悬在玄关上方,带你享受这一刻归家的仪式感。收纳空间,将日常琐碎变得井然有序,每一次开合,都是心与家的对话,清爽又轻松。
△ 温暖自然且富有质感的居住氛围
△ 中古原木风格
△ 局部优化 功能整合
△ 注重自然肌理的融合与对比
△ 以点状光源与隐藏式灯带营造均匀柔和的光环境
△ 简约温润的茶几
△ 舒适的空间层次
△ 柔和的过渡墙面
△ 精致又怀旧的收音机
墙,还站在原地,用木纹的流域与织物的默片,商量着如何让光住下,给予会客场景开阔感,客厅一隅充满柔情。功能性体块是片柔软的岸,容得下身体,也读得懂情绪。点缀光源,犹如一枚不落的果实,在木的枝头甜了一整晚。
△ 洄游动线
△ 绿植以自然性回应画中风景
△ 通透的餐厨关系
美学,是功能开出的花。耐用的木桌摊开手掌,接住绿影与山野的呼吸,创造惬意的就餐情境。她接过他递来的一杯咖啡,吧台成了一座桥,来自厨房的日光流向餐厅,让所有餐具都静默地亮了起来。
△ 静谧的气场
△ 卡座的运用
△ 文雅的器物
书房构建木阶,轻轻托起清雅环境。序列化柜门,间奏着光影乐曲,打破了暗色基调的沉闷。从香炉里冒出的烟,学着云的停驻姿势,跟随主人指尖落下的字句悠然飘去。茶注满时,端一杯到窗边慢品,五感都得到了滋养。
△ 色块的对比
△ 实用的落差造型
△ 有序的储藏空间
以“待燃的诗”为主题,串联中厨与西厨。取消顶柜,于靠近窗的地方打造壁龛,满足中厨的置物诉求。南瓜与藤篮,在素朴的背景前散发着田园气息。中灶与西台在木质的和弦里交换温度,储藏结构带着一丝书卷气,调和了烟火味。
△ 符合习惯的布局
睡眠区占据主位,预留出较宽的活动路径,明亮的光映出地上的年轮,既让人松缓,又让人感知到了时间的力量。这种力量被带到阅读区,更显书桌尺度、质感、摆置方向的考究。
△ 稳定的线条感
△ 框景之美
△ 床头暖光
主卧,采取更为开放的处理方式,减少不必要的隔墙以增强空间的通透感。承袭公区的配色与材质,提取窗框独特的分隔比例,演化出与之呼应的床头背景,令人十分心安。柜体,从高到低展露温暖的光与浪漫的艺术笔触,回应窗外多姿多彩的生命力。
△ 晶莹的玻璃砖
灵动的砖纹组合起来,在睡眠区与洗漱区之间铺展出纵向“湖泊”,呈现自由的光感与通畅的呼吸感。藤编工艺的密度与长条砖形成的肌理展开对比,当水流划过银质水龙头,这方天地便荡漾起愉悦的涟漪。
△ 合理排布的功能区
洗衣房,在光的晕染下令人感到温馨。木质结构展现舒展的图案脉络,将嵌入式设备拥入怀间,达成视觉的整洁。磨砂玻璃门滤出光亮,为空间引入更多层次和光影,使人一边清洁,一边感受自然的美好。
项目信息 Information
2024 金住奖(合肥)十大居住空间设计师优秀设计
2024 金堂奖2024中国大宅设计-年度城市影响力人物
2024 金住奖 年度TOP10健康居住空间设计
2024 瑞丽无界·轻奢生活方式 最佳设计奖
2024 金堂奖 年度杰出住宅公寓设计
2024 一兜糖 /2024有温度的家/ 地区TOP100
2024 PCHOUSE AWARD私宅设计大奖 全国 TOP100 设计师/机构奖
2023 PCHOUSE AWARD私宅设计大奖 城市榜 TOP10
2023 一兜糖年度设计师TOP100
2022 法国双面神 专业类创新奖 别墅空间
2022 瑞丽无界·轻奢生活方式 优秀设计奖
2022 MUSE Design Awards(美国缪斯室内设计大奖) 银奖
2022 MUSE Design Awards(美国缪斯室内设计大奖) 金奖
2022 好好住年度推荐设计师城市榜(大户型)第一
2021 PCHOUSE AWARD私宅设计大奖 城市榜 TOP10
2021 一兜糖 /2021有温度的家/ 地区TOP100
2021 好好住营造家年度设计TOP500
2020 PCHOUSE AWARD私宅设计大奖 城市榜 TOP10
2020 金堂奖年度杰出住宅公寓空间设计奖
2020 一兜糖年度设计师TOP100
2020 CIID中国室内设计大奖赛别墅公寓类
2019 好好住营造家 提名奖
2019 PCHOUSE AWARD私宅设计大奖 城市榜 TOP10
2019 M+中国高端室内设计大赛 城市赛区 TOP20
2018 设计本年度最具创新奖
上下滑动查看
-
麻吉官网
https://www.majiboom.cn/
0551-62106640(VIP咨询固话)
193 1525 2608(VIP咨询专线)
更多服务可咨询客服
▼
VIP咨询:麻吉小仙女(200㎡以内添加)

VIP咨询:麻吉酱(200㎡以上添加)




