这是一套改善型住房,夫妻俩与父母一起住,还要考虑计划中的baby。业主本身对居住有很高要求,所以除了视觉效果之外,功能规划和品质细节都至关重要。

▲空间的硬装部分,通过一些线条的设计和变化增加细节,主体色彩比较温暖柔和,给软装搭配做好底色和留白。

▲略带复古木色的家具,与仿古砖的色彩呼应,避免纯粹蓝色带来的冷的视觉,与阳光沙滩蓝天白云的干净更为接近。

▲装饰性单品的挑选非常重要,要达到效果同时控制成本,可少但绝不可不精,这需要设计师和业主共同把握。

▲不同明暗度和对比度的蓝色的运用,是这个空间中软装设计的主题,呈现出清爽雅致的视觉效果。

▲除了常规的柜子茶几之外,靠墙的位置摆上边柜,延展收纳的同时,起到很好的装饰作用。

▲典型美式元素的抱枕打破色彩的单一,起到很好的画龙点睛的作用。

▲居家空间中适当加入花艺来装饰,能让空间呈现出更美好的氛围。

▲进门左手是餐厅右手是客厅,餐厅与客厅之间的一面,利用收口墙做了鞋柜储物柜,有效利用闲置区域。

▲换一个角度再看看餐厅和厨房,餐厅与书房之间的墙上做了一排展示柜,丰富这个空间的细节设计,同时也方便收纳和展示。

▲这个户型的厨房是长方形的,所以在开门和动向上做了改动,扩大厨房的门之后更加便利。

▲将生活阳台和厨房整合,重新规划之后扩大了厨房门,与餐厅之间的墙做成一排酒柜,有效利用空间,同时增加储物功能和视觉美感。

▲书房其实是一个多功能的空间,书桌设计成了双人的位置,书柜开放与封闭有效组合,还有床可以作为临时休息用。

▲换这个角度来看,这个房间的功能就一目了然了。已然是蓝白色调,不过墙纸选了更有细节和趣味的,让这个空间更活泼一些。

▲过道的一面做了照片墙,这样空间会更有层次,走到底的墙选了油画效果的墙纸,与主体的色彩和风格也比较搭。

▲主卧室在延续主体风格的同时,有了更鲜明个性的视觉呈现。休息区、休闲区、梳妆区合理规划,让空间兼顾实用功能和赏心悦目。

▲主卧室在色彩也比其他空间更为大胆,其实只要主次和轻重拿捏得当,便可在冷暖色调之间自然转换。

▲卧室并不仅仅是睡觉的地方,更是一个兼顾休闲的多功能空间。大、小件家具都很重要,舒适是第一位,其次是赏心悦目。

▲这间爸妈的卧室原本是书房,将这部分赠送的阳台打通后,这个空间就可以有衣帽间、书桌等更方便舒适的配置。

▲家里有两个卫生间,一个是淋浴,一个还增加了浴缸,方便家庭成员的不同生活习惯。蓝白色拼贴搭配,让这个空间清爽干净。

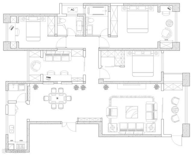
▲平面布局图


