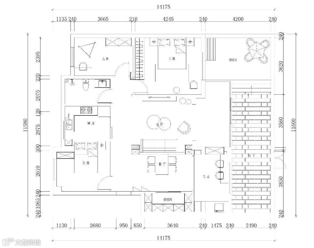
本案例这套面积108㎡的房子,带一个院子,一家三口住在里面,业主的需求除了常规的两间卧室,还需要一个独立书房和储物室。设计师将原本的三室改四室,将洗衣机放书房,完工后太漂亮了!下面为大家带来这套108平四居室装修案例,一起来看看吧!
▲客厅光线充足,充满了阳光的味道,让人觉得舒服温暖。原木简约电视柜,搭配凹凸不一的白色文化砖,丰富墙面层次。灰色布艺沙发,加入明亮的黄色进行点缀,整体营造一种宁静、慵懒的美好生活。
▲院子和室内用推拉门进行隔断,旁边的栅栏墙,放置植物点缀,平时也能养养花草治愈好心情。





▲餐厅和客厅用矮墙隔断,餐桌上放桌垫和花瓶装饰,提高用餐氛围和幸福感,享受慢生活。
▲原生活阳台改造书房,虽然保留了洗衣功能,但也不影响在此工作学习。
▲主卧的麋鹿风景壁画甚是抢眼,白色床头柜加入金色的点缀,显得时尚精致。白灰床品的配色与卧室形成统一,简约又好看。床尾摆上梳妆柜,选用轻奢的细脚桌椅,打造精致时尚的品质生活。
▲次卧布置的简单大方,选择粉色的床品,给人一种柔美舒服的感觉。
▲儿童房暂时作为活动玩乐的区域空间,墙上丰富的卡通壁画,各式各样的玩具,满满的童趣氛围。
▲ 厨房以白色为基调,白色橱柜选用黑色把手作为点缀,丰富空间的层次感。
免责声明:图文源自网络
本公号不对图文内容负责,侵权联系必删