今天分享的是一套建筑面积83平米的简约风小户型三居室案例,原本是二房的户型,设计师为了满足屋主一家的居住需求,把餐厅改成了卧室,客餐厅结合起来,构造出了这样一个紧凑而又实用的小窝。

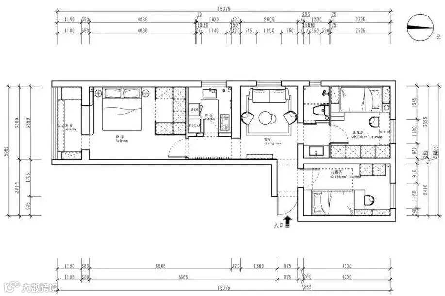
平面布置图,户型整体比较扁长,却也给人一种简单的感觉。

这套案例的户型是手枪型的,入户的玄关走廊比较窄,所以设计师选择了迷你的窄鞋柜,搭配上方的创意挂钩,也能满足日常的使用需求。

走过玄关之后就到了客厅空间,沙发背靠着窗户,两侧还做了置物架辅助收纳,在侧方的墙面做个创意的墙贴装饰,增加趣味性。

隐藏在沙发边上的小柜子其实就是餐厅的餐桌,可折叠的餐桌是很适合小户型的,把客餐厅放在同一个空间也更为紧凑实用。

通往厨房和主卧的走廊过道,墙面做了木质造型,餐椅也被挂在了墙上,充分的利用小户型的每一个空间。

主卧室和阳台连通了起来,做个半墙作为隔断。床头背景墙刷成了棕褐色,搭配深木色的床和床头柜、素雅的床品,显得端庄而又优雅舒适。

阳台的面积虽然不大,但设计师没少在收纳上花心思,靠窗的一排开放式地柜,侧方也做了储物柜,长木块搭配文化砖的设计让阳台更显自然、轻松。

女孩房的床和书桌齐高,利用床底的空间来做收纳,另一侧也做了到顶的衣柜。粉色调的女孩房给人一种浪漫、可爱的感觉。

男孩房的配色就会比较简约一些,以原木风为主搭配蓝色调的设计,同样把床给抬高,底部空间被充分利用起来做收纳。

卫生间的内部空间比较迷你,所以也没做干湿分离的设计,在角落里做个弧形的洗手台,马赛克瓷砖和六边仿古砖的结合,带来别样的美感。
免责声明:图文源自网络
本公号不对图文内容负责,侵权联系必删

