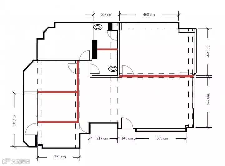
这间房子室内坪数大约是116平米,原本格局是两厅、两卫、四房,虽然四面都有很多对外窗、通风很好,但是因为隔间多的关系,总是觉得采光不是很好,而且老装潢的天花板较低,整体来说有点压迫的感觉。
为了更方便生活、学习,决定把隔间减到最少!因此打掉了客厅与主卧之间的墙、两间房间的墙、餐厅与房间的墙、两间浴室的墙....(如红线标示处)变成完全开放的空间!


DATA
房型:四室二厅
面积:116㎡
翻新亮点
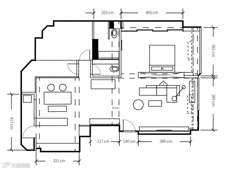
♦客厅,隔间柜上巧用吊柜
♦工作区,原来的餐厅改造而来
♦卧室,精心设计
♦厨房与餐厅,巧用中岛
需要对老房子对四面墙拆除、全室木作拆除、卫浴厨具设备拆除、磁砖及地板拆除、清运加上多年未整修,厨具、卫浴设备及管线都老旧了,考量未来长久的使用,就决定全部翻新!





亮点1.客厅,隔间柜上巧用吊柜
客厅将墙打通之后,延伸到房间的整面窗户让整个空间变得更加的明亮!电视墙使用一整片水泥粉光,一直连接到厨房。隔间柜上方的吊柜可作为设计品展示用,下方柜体一面封板,除了做为另一端的床头柜,也可以增加收纳的功能。中间的留空,还可以在睡前再偷看一下电视。



亮点2.工作区,原来的餐厅改成工作区
原本的餐厅改做成工作区,同时为了解决两侧横梁过低的问题,在上方做了木格栅。另一侧规划梯架来放我们的乐器,可当成DJ台、也可以一起练团,后方则利用简单的备忘板遮住电箱。


亮点3.卧室,精心设计
卧室也是简简单单的,床放在正中央,隔间柜的高度刚好可取代床头板。其中,最花功夫的就是衣柜了,当初评估过系统衣柜,但门片的高度都不够高,切成两段又不够简约,加上固定式装潢未来没有可变动性,所以把主要的预算花在喜欢的门片材质上,使用雾面玻璃、框架白色烤漆,内部依照需求自己用ikea来拼凑,可以节省一些预算。


亮点4.厨房与餐厅,巧用中岛
原本狭小又黑黑的厨房,开放之后变得很明亮!少做上方的橱柜,让厨房比较开阔,收纳都规划在中岛及厨台下方,其实也很足够。阳台门则使用与房间衣柜拉门相同的材质,让屋外阳光可透进来。





