今天分享的是一套建筑面积112平米的简约风三居室案例,为了满足屋主对于收纳的需求,设计师利用走廊、阳台、餐厅等等地方来做了很多的收纳,又没有影响整体的颜值,整个房子给人一种简洁大方的感觉。

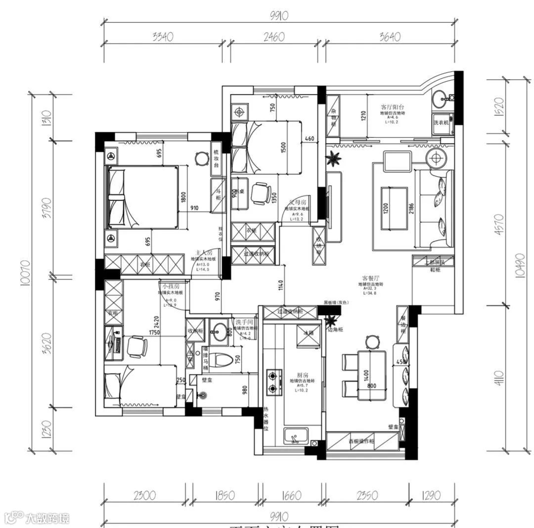
平面布置图

入户门直面阳台,设计师在客厅和玄关之间做了隔断加柜子的设计,侧方摆放换鞋凳和挂衣钩,避免了风水上的问题,又非常实用。

客厅的电视背景墙用鱼骨拼的木地板组成,浅灰色的布艺沙发搭配灰色系的哑光砖,还有一款几何形的拼色地毯,整个客厅给人一种轻松、舒适的感觉。

客厅外的阳台一侧摆放洗衣机和洗手台,另一侧就做了收纳柜,在柜子当中留出一部分卡通图案的花砖,显得更有文艺感。

餐厅位于房子的另一侧,和客厅做了相同的灰色哑光砖,除了斗柜之外,靠窗的位置还设计了地柜和墙面收纳格的组合式收纳设计。

厨房内部空间宽敞,做了L型的橱柜布局,以灰色和白色为主的厨房,搭配绿植、金属元素作为点缀,给人一种年轻大方的感觉。

通往卧室的走道空间做了很多的嵌入式柜子,白色的柜子搭配木色的格子,再加上藏光的设计,满足收纳需求的同时,也是走廊过道的装饰品。

主卧室的墙面刷成了灰色系,搭配墨绿色的床品、铜绿色的壁灯和胡桃木的床和床头柜,既彰显了简洁感,又让人感觉非常优雅、精致。

儿童房的衣柜做了嵌入式的设计,同样以灰色为主的卧室空间,在木地板和原木色家具的衬托下,多出了一些温暖的感觉。

卫生间内用灰色地砖搭配白色大理石墙砖,再加上蓝灰色的浴室柜、浴室镜和精致的金色龙头、柜门拉手,让卫生间在简洁的基础上,多出了华丽优雅的感觉。
本公号不对图文内容负责,侵权联系必删

