今天分享的是一套建筑面积106平米的北欧风刚需小三房案例,设计师以白色作为主色调,搭配灰色系的软装和黑色、木色作为点缀,营造出这样一个浅色系的舒适空间,让人感觉轻松、自然而又大方。

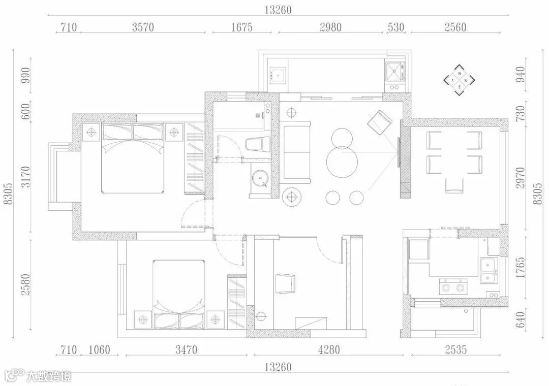
平面布置图

入户的玄关走廊,在走廊的一侧做了到顶的嵌入式鞋柜,鞋柜中留出换鞋凳区域,底部留空部分方便摆放日常更换的鞋子,更不会那么杂乱。

走过玄关之后就到了客厅空间,客厅的电视背景墙后方是餐厅,所以把留空一部分,让两个空间能够连通起来,看着更加宽敞。

客厅外的阳台空间面积比较小,全部被玻璃所包围,在阳台的两侧分别做洗手台和摆放洗衣机,顶部做个晾衣杆方便日常使用。

换个角度看客厅,客厅和书房之间用黑框玻璃作为隔断,茶几的款式和推拉门相互呼应,浅灰色的布艺沙发搭配白墙,显得格外轻松。

位于电视背景墙后方的餐厅空间,简洁的餐桌椅、吊灯搭配墙面的创意装饰和月牙墙贴,整个餐厅的面积虽然不大,但却独具趣味。

餐厅和厨房之间也用了玻璃门作为隔断,让光线能流通起来,厨房内部的铺贴了水泥质感的墙地砖,搭配白色橱柜,显得更加简洁、质朴。

主卧室的墙面延续了开放空间的白色系,选择灰色系的床品和深木色的床头柜,一盏可调节的吊灯,方便屋主靠着深灰色靠背看书。

次卧延续了主卧的设计风格,同样用灰色、白色来构造一个舒适的睡眠空间。卧室作为一个休息的地方,简单一些挺不错的。

卫生间做了彻底干湿分离的设计,把洗手台放在了卫生间的门外,内部的淋浴房和马桶也分开了,创意的浴室镜给卫生间增色不少。
图文素材均来自网络,版权归原作者或原机构所有。若有涉及任何版权问题,请及时与我们联系,我们将尽快妥善处理。

