今天分享的是一套建筑面积106平米的简约原木风二居室案例,房子的面积不算很宽敞,但屋主在设计上却没少花心思,不仅是把墙面给刷成了暖色调,还搭配上了原木风的家具和木地板等,让人感觉这个家,真的很温暖。

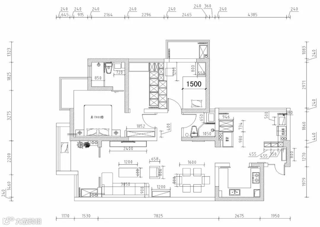
平面布置图

入户的玄关走廊是和洗衣房连通起来的,为了避免水汽的侵蚀,在洗衣机和洗手台处铺贴了文艺的六边砖,洗衣房的另一侧做了到顶的柜子。

走过玄关走廊之后就到了餐厅空间,餐桌椅的侧方墙面做了几何形的黄色图案,另一侧是把墙面分成了两半,让餐厅层次变得更为明显。

整个客餐厅的墙面都刷成了相同的颜色,地面铺贴相同的木地板,顶部也是做了相同的跌级吊顶,让人感觉客餐厅的整体感非常强,看着就很温馨舒服。

客厅的沙发背景墙处摆放了几幅装饰画和绿植,浅灰色的布艺沙发搭配原木风的家具,整个客厅的空间不算很大,却让人感觉很舒适。

厨房处也是延续了客餐厅的配色方案,以白色、木色为主,搭配灰色的地砖,吊柜的下方还加装了灯带,可以提升厨房颜值,又方便晚上使用。

主卧室的墙面也是刷成了米黄色,灰色调的床品和靠背搭配暖色调的家具、墙面,整个卧室的配色都不复杂,显得格外的素雅、轻松。

由于主卧室内有个独立的衣帽间,所以在门后的地方还做了一个换鞋凳、挂衣钩的设计,方便平时更换袜子、挂衣服等。

次卧的空间会比较窄,门开在中间,一侧靠墙摆放了单人床,另一侧做了到顶的衣柜,衣柜的角落里也留出了书桌柜的区域,方便孩子学习。

卫生间内用浴帘和挡水条来做干湿分离,在白、灰为主的卫生间内加入黄色的浴帘作为点缀,显得更为有活力感。
免责声明:图文源自网络
本公号不对图文内容负责,侵权联系必删

