搜索
首页
大数快讯
大数活动
服务超市
文章专题
出海平台
流量密码
出海蓝图
产业赛道
物流仓储
跨境支付
选品策略
实操手册
报告
跨企查
百科
导航
知识体系
工具箱
更多
找货源
跨境招聘
DeepSeek
首页
>
80㎡北欧风三居Loft,自带仪式感
>
0
0
80㎡北欧风三居Loft,自带仪式感
趣撩装修
2020-06-23
2
导读:点击“蓝字”关注我们吧这是一套80平米的三房格局,房子空间的使用率还是比较高,整体以简洁实用的空间基面积:8
点击“蓝字”关注我们吧
这是一套80平米的三房格局,房子空间的使用率还是比较高,整体以简洁实用的空间基
面积:80㎡
风格:北欧
户型:三居
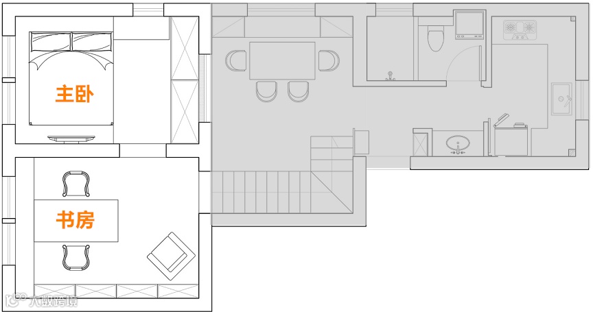
▲一楼布局图
▲二楼布局图
免责声明:
图文源自网络
本公号不对图文内容负责,
侵权
联系必删
扫码关注我们
请留下您指尖的
温度
让太阳拥抱您
记得这是一个有温度的公众号
【声明】内容源于网络
0
0
趣撩装修
每日推送装修设计方、精选家居美图、时尚家居设计和各种新奇的前沿家居设计信息、分享装修知识和经验,让微友省钱省心,让您不再为装修问题而烦恼!小编和您一起扮靓自己的小窝,一起爱家、爱生活!
内容
2457
粉丝
0
关注
在线咨询
趣撩装修
每日推送装修设计方、精选家居美图、时尚家居设计和各种新奇的前沿家居设计信息、分享装修知识和经验,让微友省钱省心,让您不再为装修问题而烦恼!小编和您一起扮靓自己的小窝,一起爱家、爱生活!
总阅读
2.5k
粉丝
0
内容
2.5k
在线咨询
关注