No.2
给"碍事"的柱子来点设计感

►丽宝乐园“明日世界”:
包柱设有两种互动功能:一是在中庭中央设备上录入人脸影像,随即会被投影到顶部窗口,其它时间也会不断变换色彩和形态,犹如在海底,张望窗外的神秘景色。另外,下方的操作台特设了三个不同的高度,使大小朋友均能获得良好的体验;




No.3
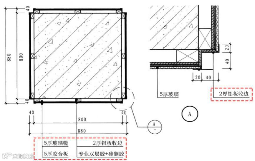
常见包柱方式及构造做法



来源:沃派设计

