
千篇一律的空间设计让消费者视觉疲劳,失去了非要去线下场景购物的理由。 在此背景下,特色空间的打造成为了体现购物中心特色、拉动客流的重要引擎。
而为了营造场景差异化,都越来越喜欢在细节之处下功夫;就连原本“碍手碍脚”的柱子也被赋予各种新意和创意,“玩”出了各式花样,甚至成为购物中心焦点般的存在。
购物中心面积通常都比较大,由于建筑跨度的问题,难免会存在建筑立柱,而旧改项目散落在各个空间中的众多立柱更是令人头疼。
所以,如何处理这些“碍事”的立柱,是设计师们都会面临的棘手问题。
立柱的处理方式,一般来说不外乎两种,弱化或者突显。前者将立柱融入周围的环境,后者则反其道而行,让立柱变为空间的亮点。

那么如何设计,才会让自家购物中心的立柱成为消费者心里最“夺目”的那一个呢?
创意美陈
利用柱子加设美陈或静态装置使之成为商场的景观之一,或围绕柱子布置休息座椅,在视觉上淡化柱子造成的空间隔断。
长风大悦城
长宁来福士
造型简约
简约而不简单,更能够体现空间设计语言的一致性。
三越百货
Vogue Café
芮欧百货
创意点睛
通过外包造型,弱化包柱的原始状态,许多购物中心都采用贯穿到顶部的发散状树形效果。
丽宝乐园“秘密花园”:通过一个挑高空间的包柱来实现树形效果,配以绿植装饰和可投影在地面的蝴蝶点缀。
丽宝乐园
保利时光里
苏州新光天地
实用当道
可以融入更多信息,例如地图指示、商家信息、海报等。
将整个柱面做成LED屏在视觉上会有更强烈的冲击,但同样存在成本较高的问题。
万象城
几何装置+屏幕
当然,也可以是传统指示牌,不同位置、不同规格的柱面,可以发挥不同的作用。
GINZA SIX
iapm
橱窗设计
贴柱面做橱窗,在观感具有整体性且更具美感,但这也需要强大的设计和审美要求。
K11
静安嘉里中心
黑科技互动
柱子主要有圆柱和方柱,造型不同直接影响到所用到材料:

这种柱子与包柱材料的关系可以看成是“骨肉皮”的关系。
❖ 金属材料


通过预埋件对竖向龙骨进行定位,确定骨架包柱的直径。横竖龙骨之间的连接,骨架与柱体的固定。
木工板弯曲,分面钉在龙骨上,需要注意圆柱类型对基层板平整对要求很高。

将圆柱的饰面板加工成分块的金属曲面部件安装,接口密封胶收口,或焊缝。卡口槽和压口槽收口,橡胶压条嵌缝,密封胶封口。
还用一种相当对方便的包柱方法:

△方管作为骨架
当然包柱不管用什么材料都要考虑主题元素,就像这个饰面为冲孔白色铝板。
通过照片我们就可以看出,柱子骨架就是用了4根方管,白冲孔铝板就是用自攻钉固定在方管上。
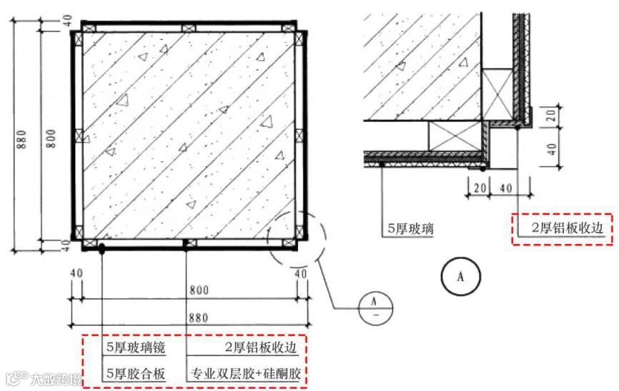
❖ 玻璃饰面


可以用木方作为骨架,再使用胶合板与玻璃镜链接,铝板收边也是常见的方式。

另外还有钢结构骨架,不锈钢固定件连接玻璃的柱面装饰。
❖ 石材
最常用的就是用干挂的方式:
弧形石板安装,根据设计图纸弹出竖向和横向控制线,通过打膨胀螺栓来固定钢架,再用角钢作为连接件,连接外部槽钢。

石材安装前,必须确保钢架的各节点焊接质量,各部件拧固强度满足规范要求,在焊接处涂刷防腐漆。并且对石材进行编号,安装石材板面要根据图纸对号“入座”。临时 “入座”后不要及时固定死,还需要进一步调整,确保符合要求后再拧紧加固,最后就是对石材的拼缝进行处理。打嵌缝胶时用力要均匀,走枪要稳而慢。石材安装完成一层后应立即用铁丝箍紧固定,安装上一层时尽量避免对下一层造成影响,确保纵向与横向通缝顺直,大小一致。
❖ 木饰面

常见的圆形柱面木饰面竖向拼接分割:

圆柱φ≤400mm二等分,②木饰面收①木饰面(非交叉收口)。

圆柱400<φ≤600mm三等分,③木饰面收①、②木饰面(非交叉收口);
△夹板包圆柱实景


方柱也是一样的道理,采用4整块成品现场拼接。断面木饰面宽度>600mm时,可以选择上面的做法,通过挂条安装。


方柱断面木饰面板宽≤600mm时,可以选择上图这种做法,需要加三角撑来确保稳定性。
包柱虽然不是大的装饰项目,但作为购物中心随处可见的存在,其装饰效果会直接影响人们对购物中心的印象。
如果立柱仅是简单包柱装饰,只是起到一个单纯的承重作用,让消费者见了就“绕路走”,岂不是很无趣?
将创意融入包柱设计,不仅不会让消费者急着“绕过”,更能让人停驻,或者是休憩、观赏、参与互动!

千篇一律的空间设计让消费者视觉疲劳,失去了非要去线下场景购物的理由。 在此背景下,特色空间的打造成为了体现购物中心特色、拉动客流的重要引擎。
而为了营造场景差异化,都越来越喜欢在细节之处下功夫;就连原本“碍手碍脚”的柱子也被赋予各种新意和创意,“玩”出了各式花样,甚至成为购物中心焦点般的存在。
购物中心面积通常都比较大,由于建筑跨度的问题,难免会存在建筑立柱,而旧改项目散落在各个空间中的众多立柱更是令人头疼。
所以,如何处理这些“碍事”的立柱,是设计师们都会面临的棘手问题。
立柱的处理方式,一般来说不外乎两种,弱化或者突显。前者将立柱融入周围的环境,后者则反其道而行,让立柱变为空间的亮点。

那么如何设计,才会让自家购物中心的立柱成为消费者心里最“夺目”的那一个呢?
创意美陈
利用柱子加设美陈或静态装置使之成为商场的景观之一,或围绕柱子布置休息座椅,在视觉上淡化柱子造成的空间隔断。
长风大悦城
长宁来福士
造型简约
简约而不简单,更能够体现空间设计语言的一致性。
三越百货
Vogue Café
芮欧百货
创意点睛
通过外包造型,弱化包柱的原始状态,许多购物中心都采用贯穿到顶部的发散状树形效果。
丽宝乐园“秘密花园”:通过一个挑高空间的包柱来实现树形效果,配以绿植装饰和可投影在地面的蝴蝶点缀。
丽宝乐园
保利时光里
苏州新光天地
实用当道
可以融入更多信息,例如地图指示、商家信息、海报等。
将整个柱面做成LED屏在视觉上会有更强烈的冲击,但同样存在成本较高的问题。
万象城
几何装置+屏幕
当然,也可以是传统指示牌,不同位置、不同规格的柱面,可以发挥不同的作用。
GINZA SIX
iapm
橱窗设计
贴柱面做橱窗,在观感具有整体性且更具美感,但这也需要强大的设计和审美要求。
K11
静安嘉里中心
黑科技互动
柱子主要有圆柱和方柱,造型不同直接影响到所用到材料:

这种柱子与包柱材料的关系可以看成是“骨肉皮”的关系。
❖ 金属材料


通过预埋件对竖向龙骨进行定位,确定骨架包柱的直径。横竖龙骨之间的连接,骨架与柱体的固定。
木工板弯曲,分面钉在龙骨上,需要注意圆柱类型对基层板平整对要求很高。

将圆柱的饰面板加工成分块的金属曲面部件安装,接口密封胶收口,或焊缝。卡口槽和压口槽收口,橡胶压条嵌缝,密封胶封口。
还用一种相当对方便的包柱方法:

△方管作为骨架
当然包柱不管用什么材料都要考虑主题元素,就像这个饰面为冲孔白色铝板。
通过照片我们就可以看出,柱子骨架就是用了4根方管,白冲孔铝板就是用自攻钉固定在方管上。
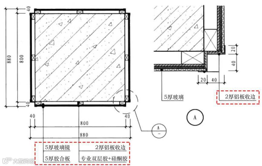
❖ 玻璃饰面


可以用木方作为骨架,再使用胶合板与玻璃镜链接,铝板收边也是常见的方式。

另外还有钢结构骨架,不锈钢固定件连接玻璃的柱面装饰。
❖ 石材
最常用的就是用干挂的方式:
弧形石板安装,根据设计图纸弹出竖向和横向控制线,通过打膨胀螺栓来固定钢架,再用角钢作为连接件,连接外部槽钢。

石材安装前,必须确保钢架的各节点焊接质量,各部件拧固强度满足规范要求,在焊接处涂刷防腐漆。并且对石材进行编号,安装石材板面要根据图纸对号“入座”。临时 “入座”后不要及时固定死,还需要进一步调整,确保符合要求后再拧紧加固,最后就是对石材的拼缝进行处理。打嵌缝胶时用力要均匀,走枪要稳而慢。石材安装完成一层后应立即用铁丝箍紧固定,安装上一层时尽量避免对下一层造成影响,确保纵向与横向通缝顺直,大小一致。
❖ 木饰面

常见的圆形柱面木饰面竖向拼接分割:

圆柱φ≤400mm二等分,②木饰面收①木饰面(非交叉收口)。

圆柱400<φ≤600mm三等分,③木饰面收①、②木饰面(非交叉收口);
△夹板包圆柱实景


方柱也是一样的道理,采用4整块成品现场拼接。断面木饰面宽度>600mm时,可以选择上面的做法,通过挂条安装。


方柱断面木饰面板宽≤600mm时,可以选择上图这种做法,需要加三角撑来确保稳定性。
包柱虽然不是大的装饰项目,但作为购物中心随处可见的存在,其装饰效果会直接影响人们对购物中心的印象。
如果立柱仅是简单包柱装饰,只是起到一个单纯的承重作用,让消费者见了就“绕路走”,岂不是很无趣?
将创意融入包柱设计,不仅不会让消费者急着“绕过”,更能让人停驻,或者是休憩、观赏、参与互动!

