▲ 更多精彩,点击上面“搜建筑” 关注即可
“历史是城市的记忆,一页风云,见证一段文明的演进轨迹。”
“文化是城市的灵魂,一抹风情,彰显一方水土的气质神韵。”
——引言
◎ 示范区实景
◎ 别墅内院实景

“文化是城市的气质,建筑则是城市的风骨。”
“建筑不是无中生有,而是锦上添花。”
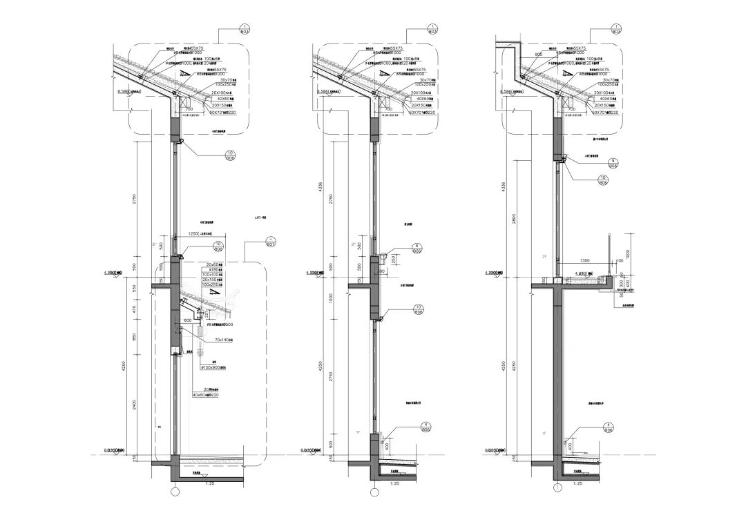
庄子哲学的道法自然,《楚辞》的浪漫奔放,码头经济的文化兼容,共同孕育了一个雅致、激荡与开明的大武汉。武汉的传统建筑既受楚文化之熏,也杂糅了四方风格,融合了天井、青砖、黛瓦、飞檐、马头墙等。
项目档案 ·
项目名称 | 香港置地 · 元舍
项目功能 | 别墅
项目位置 | 武汉
建筑体量 | 2.23万平米
业主单位 | 香港置地武汉公司
建筑设计 | 深圳市承构建筑咨询有限公司
设计指导 | 柴晟、许峰
设计主创 | 杨新
设计团队 | 张丽娴,雷淑鑫,何显鳌,陈偲斯,熊文君,汪郁柳,霍昭允、金红、朱剑寒、吕盛明、吴骐、杨海、颜孟雄
施 工 图 | 武汉正华建筑设计有限公司
景观设计 | HZS汇张思
古建设计 | 中亿丰建设集团股份有限公司
幕墙设计 | 北京佑荣索福恩建筑咨询有限公司
室内设计 | 广州杜文彪装饰设计有限公司
摄 影 师 | 赵奕龙、夏珣、杨新
新时期·产品方向
品牌地产 | 精品楼盘考察活动
12月·重庆站

微信公众号“搜建筑”(ID:sjz9999)
合作、宣传、投稿
请加小编微信:soujianzhu006


