▲ 更多精彩,点击上面“搜建筑” 关注即可

纳尔逊机场航站楼是一个新的大跨度木结构建筑,俯瞰跑道,与塔斯曼湾和新西兰纳尔逊西部山脉令人惊叹的背景。
由于现有的1975年的建筑已经不能满足建筑规范的要求,也不能有效地运作,因此对新航站楼的需求就产生了。
The Nelson Airport Terminal is a new large span timber building overlooking the runway, with a stunning backdrop of Tasman Bay and the Western Ranges in Nelson, New Zealand. The requirement for a new terminal building arose out of the reality that the existing 1975 building no longer met building code requirements or functioned efficiently with the ever-increasing passenger numbers travelling through Nelson.


设计的目的是让机场高效运作,既作为一个交通枢纽,又作为一个安全可行的企业,同时也体现了纳尔逊的独特性,与建筑内景观的联系,以及对当地材料的广泛使用。
选择了两项主要战略来实现环境可持续设计的期望;自然通风和大量木结构的使用,加上弹性抗震结构解决方案。
The brief was for an airport that operated efficiently, both as a transportation hub and a safe and viable business, but also, aspirationally, one that reflected uniqueness to Nelson, connection to the landscape within the building, and extensive use of local materials. Two main strategies have been chosen to deliver on the expectation for an environmentally sustainable design; natural ventilation and the use of a mass timber structure coupled with a resilient seismic structural solution.


这些举措的运用使纳尔逊机场脱颖而出,并为机场候机楼的可持续运营开创了先例。建筑采用简单而复杂的方法来实现主终端空间的自然通风。
建筑的平面、高度和屋顶形式的设计是为了最大化空气流动,并利用空气的浮力,当加热上升到高层开口时。低水平的窗户将空气引入建筑,精心铰接的屋顶从建筑中心裂开,创造了天窗,最大化日光,并允许热空气通过玻璃百叶窗释放。
Utilisation of these initiatives enables Nelson Airport to differentiate itself and to set a precedent for the sustainable operation of an airport terminal building. The building takes a simple but sophisticated approach to achieve natural ventilation for the main terminal space. The building's plan, height, and roof form are designed to maximise air movement and to utilise the air’s buoyancy when heated to rise up to high-level openings. Low-level windows bring air into the building and the carefully articulated roof is split through the centre of the building, creating clerestory windows that maximise daylight and allow the release of hot air through glazed louvres.

沿着北立面,雪佛兰形的外部檐篷具有多重好处;它们充当大房间,排出从下面的太阳能烟囱吸入的暖空气,同时也为室内提供遮阳,减少北立面的玻璃范围。
与简单的平面和立面相比,屋顶高度复杂,视觉上引人注目;参考周围的山脉,以一种恒定的、有节奏的模式横跨建筑的长度。在内部,形成屋顶的木材结构以自然的温暖、纹理和尺度最为迷人,令人流连。
Along the north façade, chevron-shaped external canopies have multiple benefits; they act as large chambers discharging warm air drawn in from the solar chimneys below, whilst also providing solar shading to the interior and reducing the extent of glazing to the north façade. In contrast to the simplicity of the plan and facade, the roof is highly complex and visually striking; folding across the length of the building in a constant, rhythmical pattern which references the surrounding mountain ranges. Internally the timber structure forming the roof is most captivating with natural warmth, texture, and scale that is an invitation to linger.


木材作为结构和形式的使用是设计目标不可分割的一部分——对简洁的真实和触觉的回应,这加强了材料及其与周围森林的联系和相关性,它的来源。
重复的建筑模块实现了一个大的开放空间,允许用最小的柱子进行灵活的内部规划,内部的“豆荚”漂浮在屋顶下,满足住宅的运营需求,零售和食品和饮料供应。
The use of timber as structure and form-giver is integral to the aims of the design - a true and tactile response to the brief, that reinforces the materiality and its connection and relevance to the surrounding forestry, from which it has been sourced. The repetitive building module achieves a large open footprint, allowing for flexible internal planning with minimal columns, where internal ‘pods’ float beneath the roof and house operational requirements, retail, and food and beverage offerings.

材料的调色板很简单,为了突出结构和为内部的混合空间创造一个平静的背景。作为进入纳尔逊地区的主要入口点之一,建筑以其形式和物质性表达了这个地方的本质。通过这种方式,航站楼建筑是独特的,并通过它的地域性区别于世界上同类机场。

区位图

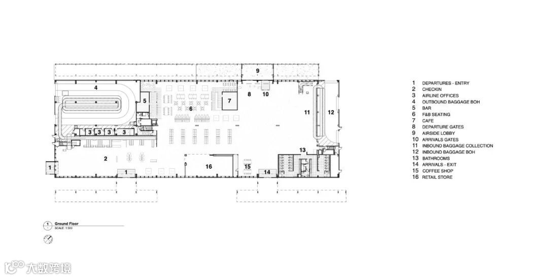
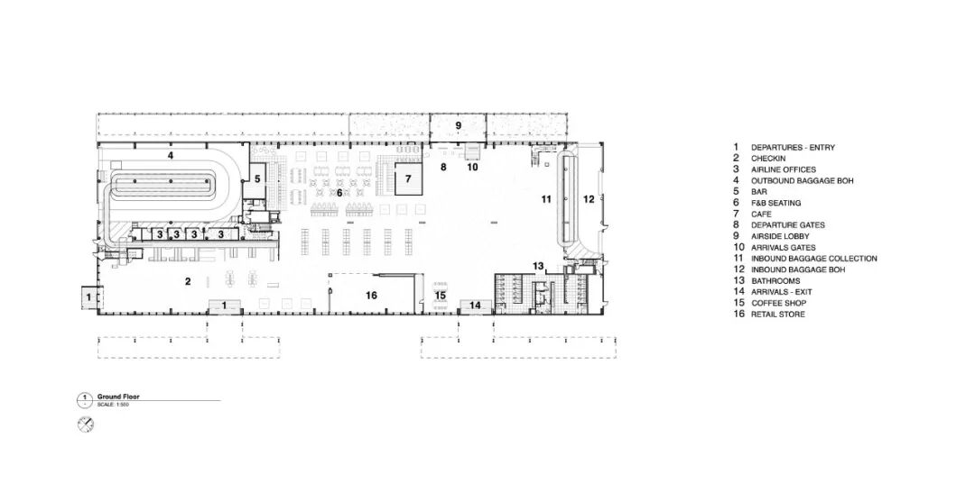
地面平面图

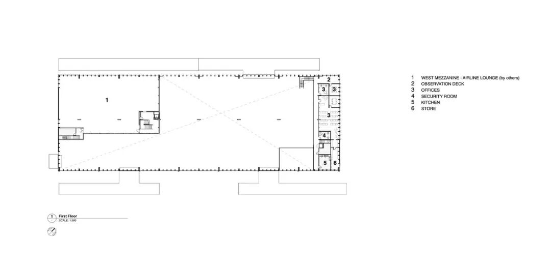
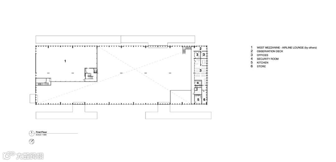
1层平面图

屋顶平面图

剖面图

建筑师:太平洋建筑工作室(Studio Pacific Architecture)
地点:新西兰
面积:5300 m²
年份:2019
新时期·产品方向
品牌地产 | 精品楼盘考察活动
12月·重庆站

微信公众号“搜建筑”(ID:sjz9999)
合作、宣传、投稿
请加小编微信:soujianzhu006


