越郡佳山水,菁山接上虞。
秀色不可名,清辉满江城。
——权德舆《送上虞丞》
浙江舜杰翡翠御府
多元化高品质的人居空间
规划与概述
本案位于绍兴市上虞城北新区核心板块,毗邻绍兴东高铁站,距曹娥江1.5公里,周边交通便利,人文底蕴深厚。同时,未来二期还将建设十万平方米的商业综合体,为住户提供商住一体的综合大盘。展望未来,本案的区位价值将进一步放大。
⊙总平面图
由于项目包含联排别墅和高层住宅两种产品,结合该地块的地理位置,建筑师们为产品的落地做了悉心的准备。
上位规划将本地块划作菱形,出于朝向考量,建筑师将本案建筑做正南偏东布置,与四至道路成一定夹角:高层住宅部分设置成沿两个北向长边L形排布,剩余部分均为联排及类独栋别墅,和少量的沿街商业。
这样的规划逻辑既给高层住宅以无遮挡的视线和充足的日照,也能使别墅占地最大化,两种类型住宅各得其所;因为与城市道路和红线形状存在夹角,边套L型产品更使空间得到了充分利用。由此一来,整个空间显得简洁又多元。
待建筑落位,设计好环路以及步行系统后,景观上的多点透视自然形成,本来略显工整的地产逻辑规划随之产生了步移景换、丰富多变的空间体验,给人以心旷神怡之感。安逸自在的氛围之下,诞生着万家灯火的温暖。
去风格化的唯美建筑营造
建筑设计
生活繁复,而家就是一份宁静与安心。为匹配别墅大区的项目定位,考虑到当代人的审美品位和精神需求,设计师提出了“去风格化、唯美营造”的设计理念,希望为住户打造一份精致细腻的生活。
在尊重当地市场对坡屋顶偏爱的基础上,别墅对传统坡屋顶进行了改进和突破,以明确的细部笔触勾勒笔挺的天际线,与建筑主体协调统一,衬托其低调优雅的气质。
多种材料的并置、现代主义的手法、结合造型独特的坡屋顶,共同塑造出独具一格的建筑风格,重构了人们对轻奢豪宅的认知,引领了当地豪宅市场的新风潮。
同时,别墅方正的房型、大面积的开窗、客厅挑空和地下室的灵动空间、以及大尺度的庭院,极大地提升了其整体美感。沿小径直行,清新的绿色植物和柔和的灯光,与房屋一起构成了一幅温馨的图画。
而高层住宅则以相对稳妥的造型和色彩进行呈现,住户可以轻松享受到丰富的阳光、开敞无遮挡的视线和良好的通风条件。精心打磨的高层住宅是典雅美的另一种体现。
⊙高层住宅
强烈对比下的干净洗练
立面设计
为避免平面功能受到立面造型的影响,设计模糊了风格概念、打破手法的限制,用现代的美学标准打造了一种低调而不失高贵、简约又细部丰富的全新风格。
在立面材料的选材上,本案采用了米白色进口沉香米黄石材,它与黑色铝板、金属漆相搭配,以强烈的对比打造出干净洗练的立面造型。
黑色金属漆与黑色铝板的巧妙搭配,在控制成本的同时保证了效果的呈现。石材和铝制窗框均做了造型收口处理,大面积的简约中还存在着精巧的细部,精巧匠心就体现在这类细节中。
后记
基于优越的区位条件,以及业主一直以来高端产品线的定位,故本案立项之初就定位为当地顶级的住宅标杆。项目各产品的房型以日常使用需求为导向,满足规划需要的前提下,最大程度提升套内物理环境品质,创造最优居住体验。
在项目设计的过程中,从产品到立面再到规划,建筑师和业主一同经过了漫长的方案统筹、调整与打磨,以较高的完成度呈现了最终效果。
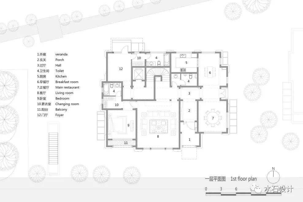
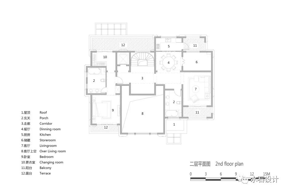
技术图纸
⊙别墅1F
⊙别墅2F
⊙别墅3F
⊙高层住宅1F
⊙高层住宅2F
⊙高层住宅3F
项目名称:浙江舜杰翡翠御府
项目地点:浙江省绍兴市上虞城北新区
项目规模:20万㎡
业主单位:浙江舜杰置业有限公司
建成时间:2020年7月
设计单位:水石设计
设计内容:规划建筑设计
设计团队:水石工程米川工作室
项目主持建筑师:梅冬杰
主要设计人员:尹豪 李羽 张帅 方雁容 侯萍 陈浩 汪宏杰 俞成祥 吉姗姗
照片摄影:胡义杰
图文编辑:水石品牌
新时期·产品方向
品牌地产 | 精品楼盘考察活动
12月·重庆站

微信公众号“搜建筑”(ID:sjz9999)
合作、宣传、投稿
请加小编微信:soujianzhu006


