高端公寓是一个城市能级的表现。在一线城市中,好的私人公寓往往不可多得。
村上春树有句话是这么说的:有的东西不过很久,是不可能理解的,有的东西等到理解了,又为时已晚。
在地产市场,关于公寓的话题从来就没有尘埃落定,但依然挡不住某些占据核心资源的高端公寓成为一座城市的符号。
公寓的发展不仅反映了这座城市的经济繁荣程度,甚至在某种程度上承载着社会梦想,影响了高端圈层的生活标准与品质观念。
环顾全球,纽约曼哈顿的One57,作为纽约豪华公寓的代表作,多次成为地产界的话题,让纽约房价正式迈入亿元时代;国内的深圳湾一号作为中国三大豪宅之一,为深圳聚集了全国年轻的精英人群。
耳熟能详的高端公寓几乎都具有艺术品属性,并且代表着目前国际房地产市场中一种高端的居住方式。
在中国城市的发展下,一批批高端私人公寓出现在城市的中心,在湖南长沙就有这么一处代表着长沙房地产市场中一种高端的居住方式。
它们在贩卖“高端生活方式”的同时,变成这个城市“亮眼”的地标。
中心繁华与江岸宁静合而为一
从摩洛哥的La Tour Odéon,到纽约曼哈顿ONE 57,再到香港天玺,从地中海到大西洋,再到维多利亚港湾、深圳湾。
无一不体现着:无河湾,不高端。

效果图(以实际交付结果为准)
回到湖南,在长沙,核心的资源是湘江,临江而居是人们三千年不变的追求。
所以湘江两岸,不仅已成为长沙楼市的价格标杆,也是品质的标杆,代表着湘江的发展高度。
在湘江边,有一地标式高端私人酒店式公寓——印湘江·NEW288。

区位图
项目位于长沙南部湘江东岸,一线临江,5大城市公园环绕,毗邻1万余方湘江动步公园,江岸的自然风光与城市的璀璨灯火合而为一,是一处不可复制的地段。
印湘江·NEW288作为省府片区的样本产品,以与众不同的极简风格成为居住范本。

效果图(以实际交付结果为准)
项目用现代的建筑手法表达建筑立面的简洁性和公建化,色调时尚典雅,以硬朗简洁的立面为我们展示了城市豪宅地标式的形象。

效果图(以实际交付结果为准)
外立面横向线条与湘江的水文化相互呼应,极简主义高级美感的建筑艺术外立面设计,从外面看,整个楼宇就像一件艺术品。
正是这样占尽了城市和自然高级资源的存在,同时项目本身又具有很高的自身条件,方能让那些挑剔的超高净值客群毫不犹豫的买单,并为此骄傲与自豪。
大面积、大空间
对舒适生活需求的感知与契合
“每一处品牌私人公寓的诞生,都是城市文明的进步。”
有人说,选择一处公寓,便是选择一种生活方式,也决定了你是哪一类人。
项目以“大面积、大空间”为理念,将所有的功能区都放在一个平面上,给居住者带来一种全新的生活体验。
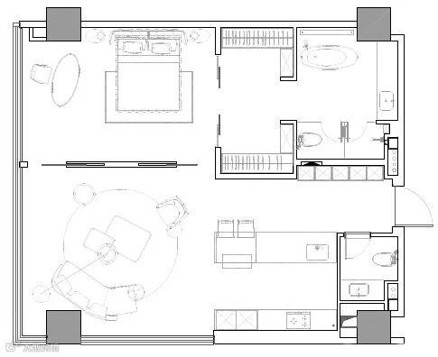
下面以建面约142㎡的户型详细说一下:

约142平米户型图
约142㎡的户型只做了1房。
这样的阔绰尺度和空间延伸,也只在印湘江·NEW288公寓亲眼所见。
室内由大师唐忠汉倾力打造,将居住属性全面升级,室内也以极简的形式呈现,只为实现空间与生活尽大化的吻合。

效果图(以实际交付结果为准)
独立入户玄关,不仅提升改善私密性,保证客厅、卧室的私密生活,营造了视觉上的缓冲体验,还能加强收纳。

约142平米户型图
L型270°环幕视野,客厅与卧室加上大落地窗的运用,视野开阔,直面湘江,阳光随意闯入,休息时躺在沙发上,随意一个抬眼就能看见窗外悠悠江水。

效果图(以实际交付结果为准)
在L型270°视野和落地窗双重视觉下,外部景观和室内空间有机的融合成了一体,无论身处室内哪个角落都能领略到窗外的自然风景。
超大会客厅,在奢适轻松的私人会客空间内,邀约重要客户,会同道盟友,约见圈层至朋,都可以随心所欲。

效果图(以实际交付结果为准)
会客厅、开放性厨房与餐厅连为一体的设计,无论是朋友聚会或商务会议,空间都做到了充足自在。


效果图(以实际交付结果为准)
大尺度的卧室可以说是豪华总统套房了,将卫浴、衣帽间、大落地窗等与卧室完美相融。
床的旁边完全可以多出来一个多功能区,可摆放书桌、茶台、乐器,办完公直接可以洗漱睡觉。

效果图(以实际交付结果为准)
在居住的空间以外,坚守酒店式住宅的居住思考,设计收纳、更衣、储藏于一体的独立衣帽间,宽阔的衣橱一目了然。
在精装上面,也是非常用心。六大归家精装系统,大到全屋的中央净水系统、智能家居等,全部都是国际知名品牌,再到小的玄关、浴室镜甚至挂衣钩、厕纸盒都是定制的。
从选材到工艺再到品质可以看出印湘江公寓对于细节的考量,和对居住环境的氛围营造进行精心设计,这正是为城市精英人群量身定制的“奢侈品”。
让城市精英人群愿意把原先消耗在物质上的时间、金钱和精力,投入到生活的丰富感受上,并以此收获精神层面的富足。
圈 层 社 交 场
对于印湘江公寓的业主来说,买的不是房子,而是一种生活方式。
当前的不少新兴产业,造就了更多的年轻富人和社会精英,他们对居住的要求和生活方式与传统富人大相径庭,他们需要更时尚的空间、更周全的服务、更多的社交和精神需求。

景观结构图
印湘江·NEW288公寓在景观上,特邀景观设计大师叶翀岭,朗道国际设计执行董事,中国首届高级景观设计师打造。
以“听山美学馆”为理念,外与湘江、山体等自然融合,内与印湘江中轴延续,撷取江纹之弧线灵感,形成开阔、灵动、互动的沉浸式艺术人文谧境,

效果图(以实际交付结果为准)
将三重造园空间层级与中国传统文化相融,分为“臻境”——“意境”——“乐境”,形成整体景观轴线。

效果图(以实际交付结果为准)
从公寓展示界面,到无界泛会所,到山体社区公园,在保留原始山体的基础上,层层叠叠,令每一处园林景观都与山景、建筑完美融合。
创造印湘江中央景观园林与台地公园的内外围合,让我们感受到江景与园景的双重享受。

效果图(以实际交付结果为准)
将中国传统山水园林以更为现代的手法引入其中,打造充满层次感与递进感的空间序列。

效果图(以实际交付结果为准)
在最大限度保留原生台地基础上,听山美学+建筑自然共生,打造全开放的景观,和印湘江山体公园连为一体,这样不仅扩大了城市公园的范围,也为公寓业主提供了更大的活动空间。
从观景平台的豁然瞰江,到草坪的绿意盎然,甚而细究于树枝的曲度姿态……皆旨为让居者流连忘返,身心动容。

效果图(以实际交付结果为准)
公寓一层,将架空层打造成“艺术 +”的泛会所,源自酒店艺术画廊灵感,将明显边界消除,与外围坡地景观体验区相互渗透、融合。
这样的设计打破了传统钢筋水凝土带来的禁锢,无界的流动空间,形成共享空间理念。

效果图(以实际交付结果为准)
采用灵动、艺术的弧形幕墙,围合自由又新奇的艺术场域,为身处其间的人带去不凡美学感受。
空间向室外延伸,景观向内渗透,将自然与艺术完美结合,将艺术渗透到生活中。

效果图(以实际交付结果为准)
项目的特殊之处在于将公寓二层也打造了业主们的公共社交场所:会客厅、健身房、无边际观江泳池、KTV、全日制餐厅等等休闲娱乐场所,打造了全方位的居住空间环境。
而真正的、纯粹的酒店式公寓,除了场景上的用心营造, 还有超越住宅产品的高端服务,项目为业主匹配了24小时酒店式前台服务等符合他们身份的管家式服务,更能体现出对业主的用心。
现今生活方式的进阶和演变,人与人交际圈层的细分与聚合,是新一轮城市发展的必然趋势,新的生活方式由此应运而生。
结语:
在每一个领域,真正奢侈的东西,都是艺术品,地段的不可复制,以及在这份不可复制之上衍生出的绝佳产品、圈层、身份、财富的共鸣。
在此,印湘江·NEW288公寓意味长沙城市公寓的进阶成长,是具有时代意义的城市资产,也是重新定义公寓时代的新贵空间。
表面上看是在意料之外,其实也都在情理之中。
扫一扫 了解更多▼

本资料声明:
1.本文为建筑设计技术分析,仅供欣赏学习。
2.本资料为要约邀请,不视为要约,所有政府、政策信息均来源于官方披露信息,具体以实物、政府主管部门批准文件及买卖双方签订的商品房买卖合同约定为准。如有变化恕不另行通知。
3.因编辑需要,文字和图片无必然联系,仅供读者参考; 本资料制作时间为2020年10月。
合作、宣传、投稿
请加小编微信:soujianzhu006
关注微信公众号“搜建筑”或微信号“sjz9999”后,回复对应的数字或关键词,查看精品内容!!

2020年全新回复:
万科回复:1101或 1102 1103 1104 1105 1106 1110
龙湖回复:1301或1302 1303
恒大回复:1201
规范回复:0901
车库回复:1001或 1002
高层办公回复:0101 或 0102 0103 0104 0106
多层办公回复:0201 或 0202 0203 0204 0205
综合体回复:0301 或 0302 0303 0304 0305 0307
酒店回复:0401 或 0402 0403 0404 0405
学校回复:0501 或 0502 0503 0504 05050507
售楼处回复:0601或 0602
博物文化展览馆回复:0701或 0702 0703 0704 0707
图书馆回复:0801或 0802
每周户型回复:0001或 0002 0003 0004 0005 0006

