YUHUA COUNTRY SALES CENTER
旭辉·雨花郡·生活美学馆项目秉持CIFI6的精神内核,以简练的设计手法赋予空间以灵魂,契合当代高端住宅回归自然本质和人文精神的诉求,为业主搭建和自然生活沟通的精神桥梁,守护最初的梦想、激发社区的活力、释放心中的自由,营造未来人居生活场景,传递“生活之上,不负美好”的生活理念。
旭辉·雨花郡·生活美学馆项目位于长沙城市主中心区域,紧邻长沙南站,毗邻两条地铁线,周边景观资源丰富。
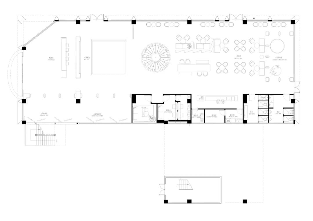
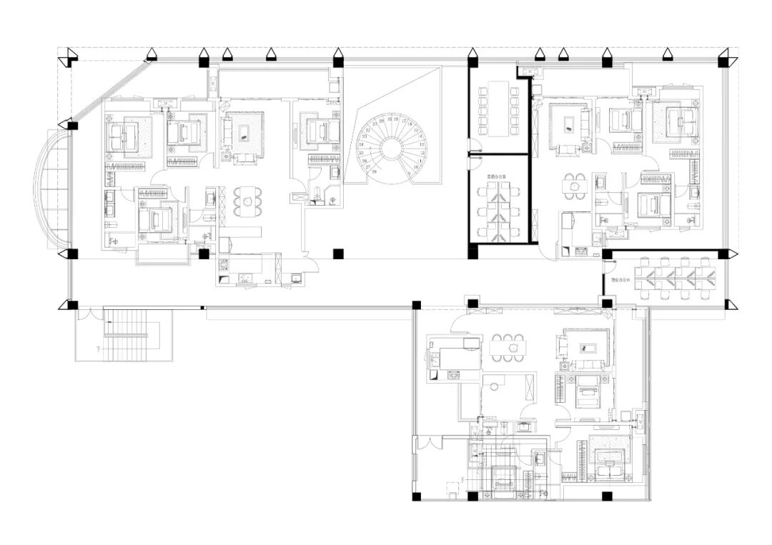
项目总用地面积:12.7万平方米,总建筑面积60.7万平方米,绿地率49.1%,其中示范区建筑面积约1400平方米。简练的造型,丰富而精致的立面,旨在打造高品质的宜居住宅。
销售建筑通常是为了给顾客带来更美好的产品体验和购买感受。但设计师的思考却不仅限于此,设计师认为建筑不仅仅是销售空间的营造,他同时也是艺术、文化,历史的传承和延续。
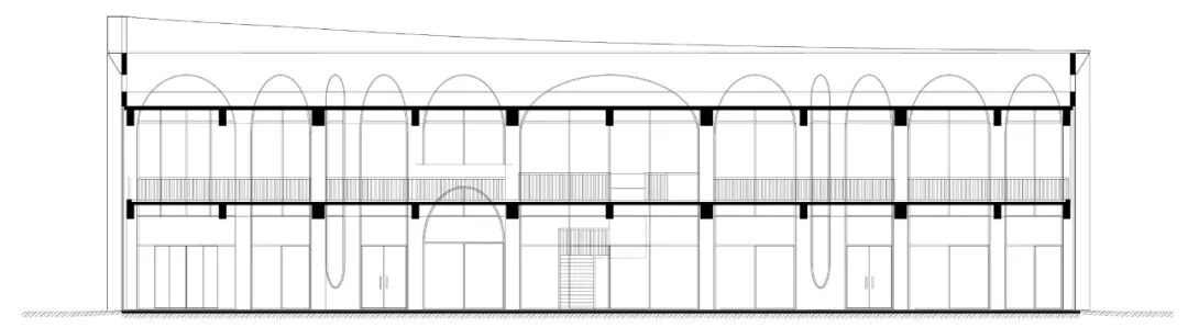
在中西方建筑历史中,拱结构都扮演者重要的角色,作为一种解放内部空间跨度和高度的久远建筑结构体系,自古以来就承载着建筑与结构的双重角色,随着新技术、新材料的发展,在现代建筑中拱结构也被广泛的应用和发挥。
设计师将现实世界的造型予以简化,用更具有美感的形体和线条变化、重复组合等抽象的表达方式来表达一种全新的建筑形象。
建筑的造型依赖于一种新型材料的运用-超高性能混凝土简称UHPC,它超高的耐久性和超高的力学性能使得本设计的抽象的双曲面造型得以实现。
建筑的双曲面造型呈现使用一种新型的材料UHPC:超高性能混泥土,也称作活性粉末混凝土,是过去三十年中具有创新性的水泥基工程材料,实现工程材料性能的大跨越。相较于传统的GRC材料,UHPC拥有更好的耐久性和质感呈现;相较于铝板钛锌板等金属质感材料所传达的纯现代气质,UHPC更加的契合项目用现代材料演绎经典建筑语言所传达的优雅调性。
入口的设计充分运用建筑主体立面设计的元素,同样采用弧线和拱形元素,流线型的造型让入口与建筑主体浑然一体,白色超高性能混凝土材料与高透玻璃,相互映衬,打造一个造型简洁,识别性强的销售建筑.
建筑不仅是空间的营造,也是艺术,历史的延续。传统的造型与艺术在历史的长河中一直在创造着它在这个时代的价值。销售中心与这一传统结构形式的结合与重塑,让这一传统结构焕发出新的活力。
△幕墙节点设计图
欢迎加入
楼盘示范区-设计交流群
已满200人,需加微信:huxingtuan001

微信公众号“搜建筑”(ID:sjz9999)
合作、宣传、投稿
请加小编微信:soujianzhu006