▲ 更多精彩,点击“搜建筑” 关注即可

卡萨布兰卡金融城大厦由全球建筑公司Morphosis设计,是新成立的卡萨布兰卡金融城(CFC)--目前正在历史悠久的市中心西南部安法区开发的转型新商业区,实现的第一个项目。
这座25层高的塔楼于2019年4月竣工,标志着卡萨布兰卡的一个重要里程碑,因为它扩大了其作为非洲门户的历史作用。
Designed by global architecture firm Morphosis, Casablanca Finance City Tower is the first project to be realized in the newly-established Casablanca Finance City (CFC)—a transformative new business district currently being developed in the Anfa District southwest of the historic city center. The completion of the 25-story tower in April 2019 marked a significant milestone for Casablanca as it expands on its historical role as the gateway to Africa.

CFC是一项政府认可的举措,它邀请全球公司在摩洛哥这个经济特区内设立区域总部。卡萨布兰卡金融城大厦是与CFC领导层紧密合作开发的,标志着Morphosis在非洲的第一个项目。
卡萨布兰卡金融城大厦在CFC的持续发展中起到了关键作用,该项目位于安法区,在2007年安法机场关闭之前,安法机场一直是该区的所在地。
CFC, a government-endorsed initiative, invites global firms to establish their regional headquarters in Morocco within this special economic zone. Developed in close partnership with CFC leadership, the Tower marks Morphosis’ first project in Africa. The Casablanca Finance City Tower plays a critical role in the ongoing development of the CFC, located in the Anfa District, which was home to the Anfa Airport until it closed in 2007.


CFC象征着摩洛哥对未来的憧憬,并在建筑性能、规模和技术方面为这个城市尚未完全实现的部分树立了先例。
卡萨布兰卡金融城塔与该地的气候相协调,并在设计上尽量减少对生态环境的影响,为该地区及其他地区的未来项目树立了新的标准。
"卡萨布兰卡金融城塔及其创新设计的构思是为了产生持久的影响,并标志着摩洛哥经济繁荣的新时代,"普利兹克奖得主、Morphosis创始合伙人Thom Mayne说。
CFC symbolizes Morocco’s vision for the future and sets precedents in building performance, scale, and technology for a part of the city that is yet to be fully realized. Working in harmony with the site’s climate and designed to minimize ecological impact, the tower sets a new standard for future projects in the region and beyond. “The Casablanca Finance City Tower and its innovative design was conceived to have long-lasting impact and to signal a new era of economic prosperity for Morocco,” said Pritzker Prize-winning architect and Morphosis Founding Partner Thom Mayne.


"这座塔楼在该国的中心地带汇集了一系列全球产业,激发了北非的国际投资,同时也为该区未来的发展提供了一个模板,因为它在不断发展。"
Morphosis合伙人兼项目负责人Ung-Joo Scott Lee补充道:"我们非常感谢有机会通过与卡萨布兰卡金融城富有远见的领导人合作,为摩洛哥的这一历史性转折点做出贡献。
通过紧密合作,我们能够突破设计和施工的界限,将一块空白的卫星地块转化为与周边环境可持续互动的动态发展项目。"
“This tower brings together a range of global industries in the heart of the country, galvanizing international investment in North Africa, while also providing a template for the future development of the district as it continues to grow.” Morphosis Partner and Project Principal Ung-Joo Scott Lee added: “We are immensely grateful to have had the opportunity to contribute to this historic turning point for Morocco, through our collaboration with the visionary leaders at Casablanca Finance City. Working closely together, we were able to push the boundaries of design and construction, transforming a blank satellite site into a dynamic development that sustainably engages with its surrounding environment.”


卡萨布兰卡金融城大厦的设计借鉴了周边地区独特的开放性,这为设计师提供了一个不同寻常的机会,在原本密集的城市中,突出建筑与自然环境之间的关系。
建筑物上包裹着一个brise-oleil系统,在保护建筑物免受阳光照射的同时,还允许建筑物利用外部元素来调节内部的自然光线、空气和温度,此外,还可以欣赏到城市、海洋和标志性的哈桑二世清真寺的空前美景。
The design for the Casablanca Finance City Tower draws on the unique openness of the surrounding area, which afforded the designers the unusual opportunity in an otherwise dense city to highlight the relationship between the building and the natural environment. A brise-soleil system wraps the building, protecting against the sun while still allowing the building to harness external elements to regulate natural light, air, and temperatures internally, in addition to offering unprecedented views of the city, ocean, and the iconic Hassan II Mosque.


这个立面从传统的几何图案马赛克和摩洛哥建筑特有的复杂木格子屏风中汲取灵感。
由于采用了这种节能系统,该建筑符合世界绿色建筑委员会的所有LEED金级要求。400英尺(122米)高的结构上有一个锥形的皇冠,实现了塔楼作为城市新标志的功能。
与街道层面相映成趣的是,该建筑与低层城市景观相融合,外部的公共规划邀请社区进入邻近的公共空间。这种双重冠冕使建筑同时成为城市发展的象征,也成为培养该区活跃的街道生活的社会中心。




设计理念图




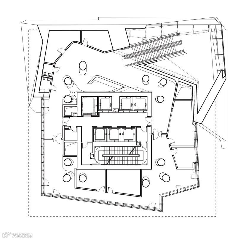
地面平面图

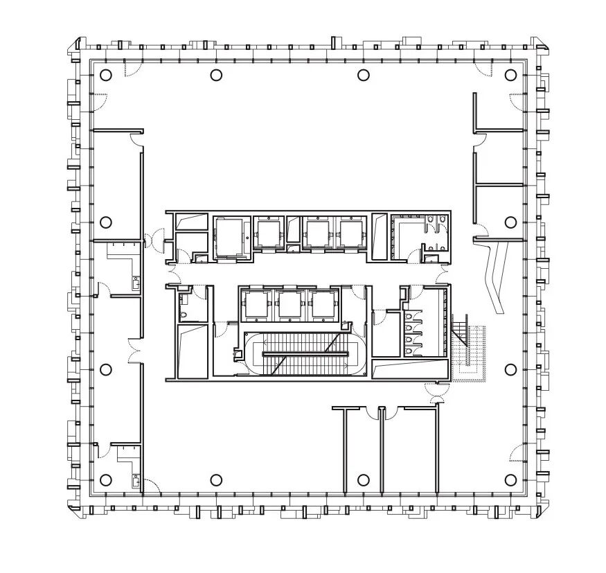
1层平面图

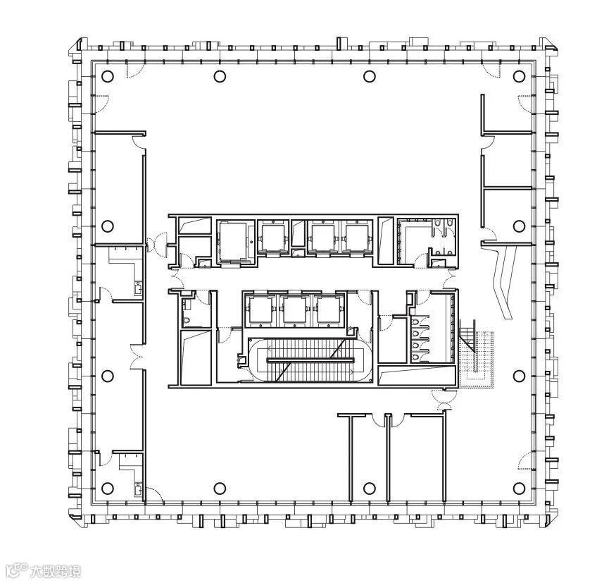
19层平面图

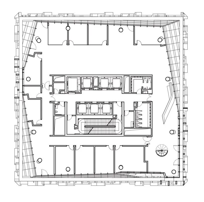
23层平面图

立面图

轴测分析图

设计单位:Morphosis建筑事务所
地点:摩洛哥
建筑面积:21000 m²
建筑年份:2019
欢迎加入
商办综合体建筑(设计交流群)

群满员后,可加微信:bangong86 邀请入群

微信公众号“搜建筑”(ID:sjz9999)
合作、宣传、投稿
请加小编微信:soujianzhu006

