▲ 更多精彩,点击上面“搜建筑” 关注即可

——瓦尔特·本雅明
*
j
我们希望建立人与场所的联系,
设计也从现场感知开始。

< 街区公园 >


首层的弧形墙面与建筑主体呼应,创造场所领域感的同时加入了与墙体同样材质的一组长凳,制造出空间与人的记忆点。

△社区广场
一个带顶的广场将榕树下的树荫空间扩大。
△下沉庭院
利用场地高差带来一个相对 “内向” 的庭院。
△傍晚的下沉庭院

(小图可点开查看详情)
建筑好像一个大型的插线板, 提供融入城市生活的多种可能性与接口。

建筑进一步优化原有捷径,带来建筑与人的日常互动。

建筑北侧紧邻两个居住区,我们以现有住宅楼的两种高度将建筑划分为三段。以三种不同的视线策略来应对住宅的隐私问题,以及争取梧桐山景观资源。
△形体策略
△视线策略




△西北立面
< 功能 >




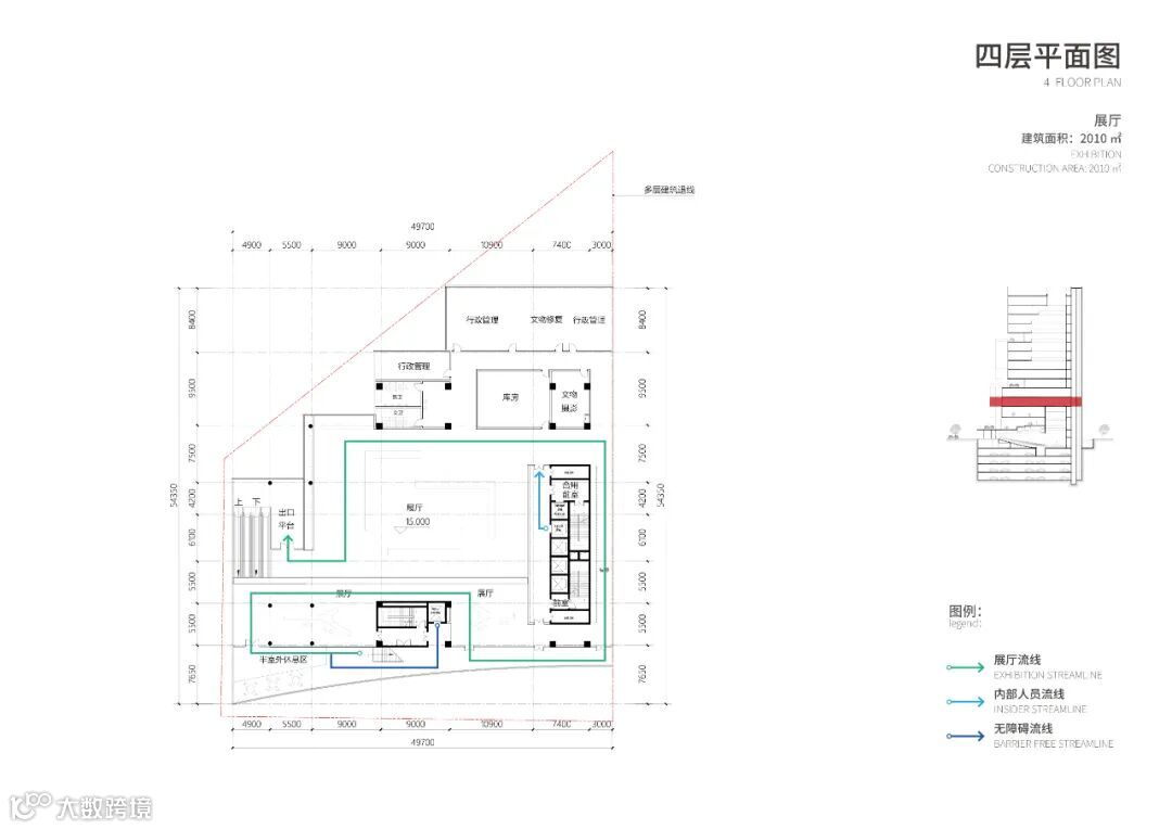
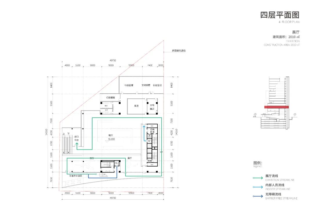
△展厅
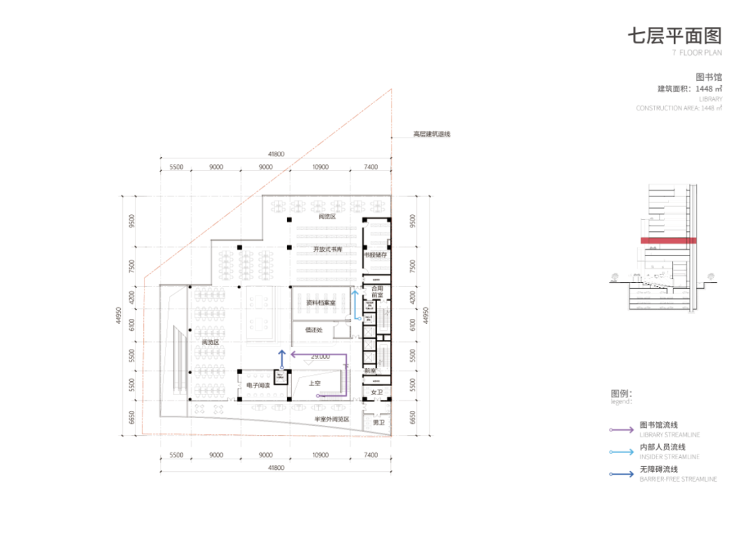
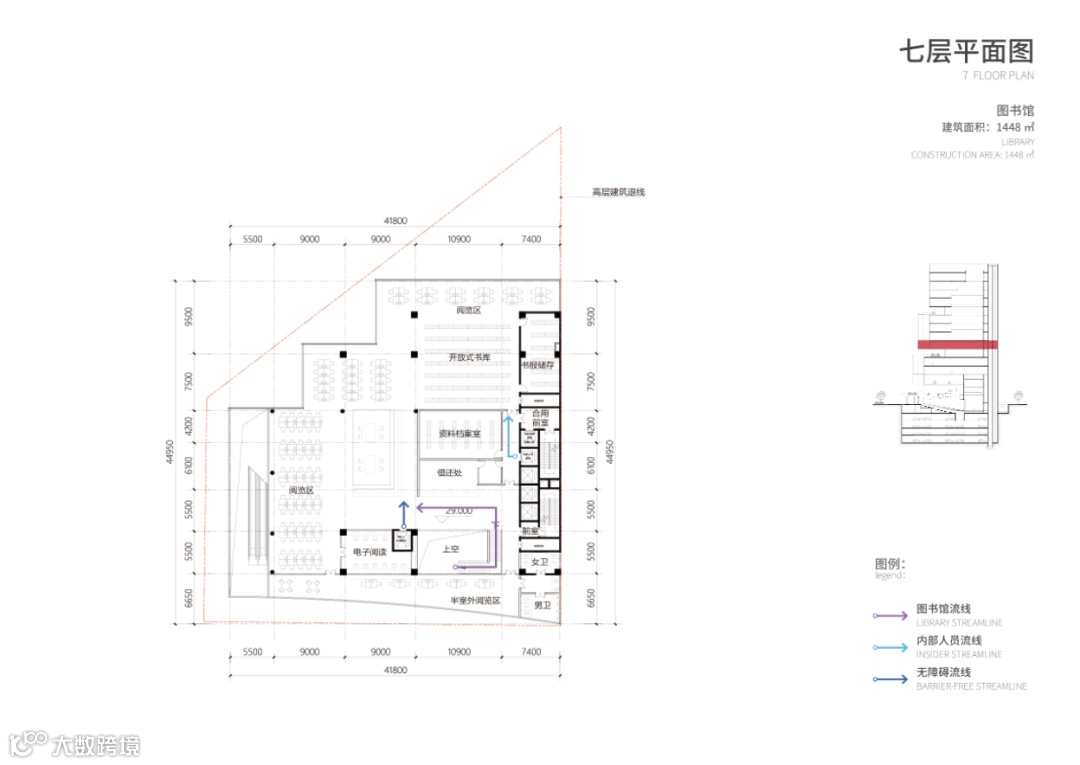
△图书馆

*
建筑处在住区和公安局大楼之间,我们希望将项目最基本的理念聚焦于“场所”,让居民充分参与建筑提供的场所之中以优化社区体验;同时以低调、轻柔的姿态与公安局大楼和谐共处,并具备自身的艺术气质。
/ SEED设计团队

秦琛工作室
QINCHEN STUDIO
以上文字图片及设计均为SEED席得设计原创,相关设计,图片,图纸及文字版权归SEED席得设计所有,未经许可请勿复制转载
新时期·产品方向·2021年
《 品牌地产 | 精品楼盘考察活动 》
杭州、苏州、重庆、成都、郑州
广州、福州、上海、西安
领队微信:soujianzhu002

微信公众号“搜建筑”(ID:sjz9999)
合作、宣传、投稿
请加小编微信:soujianzhu006


