▲ 更多精彩,点击“搜建筑” 关注即可

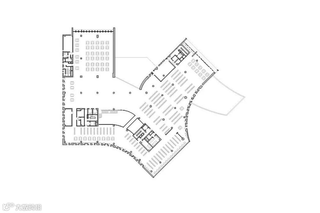
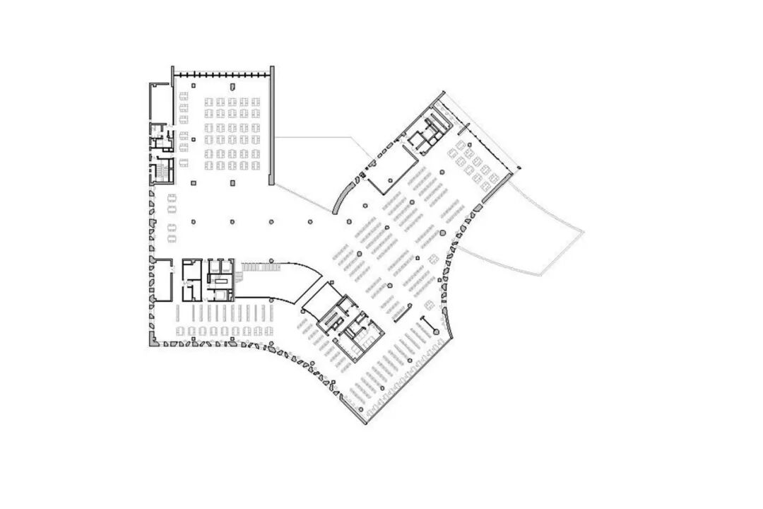
香港中文大学深圳校园的图书馆设计,将六层高大面积楼板的功能量体,分开成两个交错的C字形长条量体。
两个各三层的长条量体经由转折和架空叠加,配合了校园的入口朝向与绿地轴线,保留了由中央绿地到山体的视线穿透性,也维系了校园自然坡地的完整性。
The library design for the Chinese University of Hong Kong’s Shenzhen Campus reconsiders the typical university library in China by breaking the six-story volume into two three-story C-shape volumes, stacked and re-oriented to connects with the adjacent landscape.

图书馆建筑将校园的绿色购物中心延伸到中庭,在校园和建筑后面的山丘之间创造了直接的视觉连接。

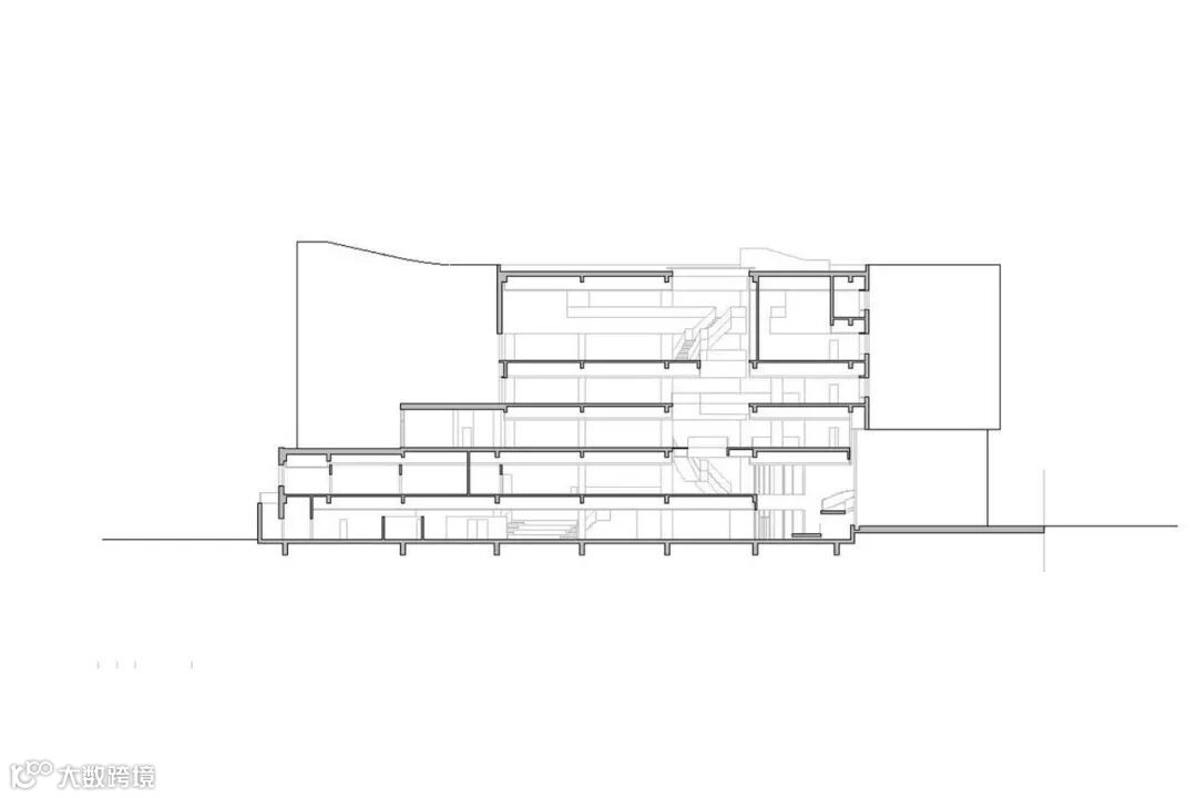
图书馆六层楼高的中庭被书架包围,并充满了反射的自然光。中庭空间垂直穿过建筑,横向连接不同的阅读和学习空间。

水平体量将周围的景观融入建筑,为密集的排架区带来自然感。

天窗将自然光过滤到图书馆的中心,为阅读和学习创造了一个温暖友好的环境。

从外部看,图书馆建筑延伸与邻近的学生中心、教学综合体和下沉花园相连接,创造了学生之间知识交流的学习中心。
From the exterior, the library building extends to connect with the adjacent student center, teaching complex and sunken garden, creating a learning hub for knowledge exchange among students.

材料的使用结合了当地的砌砖技术和玻璃铝幕墙系统。图书馆建筑的外部曲率设计与内部迂回曲折的体验有关,在建筑与自然、垂直与水平之间创造了一种发现感。

















模型分析图



3层平面图

剖面透视图

剖面图


分层功能展示图

项目信息
建筑设计: 王维仁建筑设计研究室
面积: 21801 m²
项目年份: 2017
地点:深圳, 中国
摄影师:张超, Wade Zimmerman
主创建筑师:王维仁
设计团队:谢菁, 冯立, 王浩然, 苏畅, 田一, 李抒青
本地建筑师:中建东北院深圳院
2021年
新产品·新理念·新技术
《 品牌地产 | 精品楼盘活动 》
杭州、苏州、上海
成都、郑州......
广州、福州、重庆
西安、青岛......
扫描二维码 加好友咨询
领队微信:soujianzhu008
推荐一个
专业的地产+建筑平台
每天都有新内容
扫描二维码关注

微信公众号“搜建筑”(ID:sjz9999)
合作、宣传、投稿
请加小编微信:soujianzhu006

