▲ 更多精彩,点击“搜建筑” 关注即可

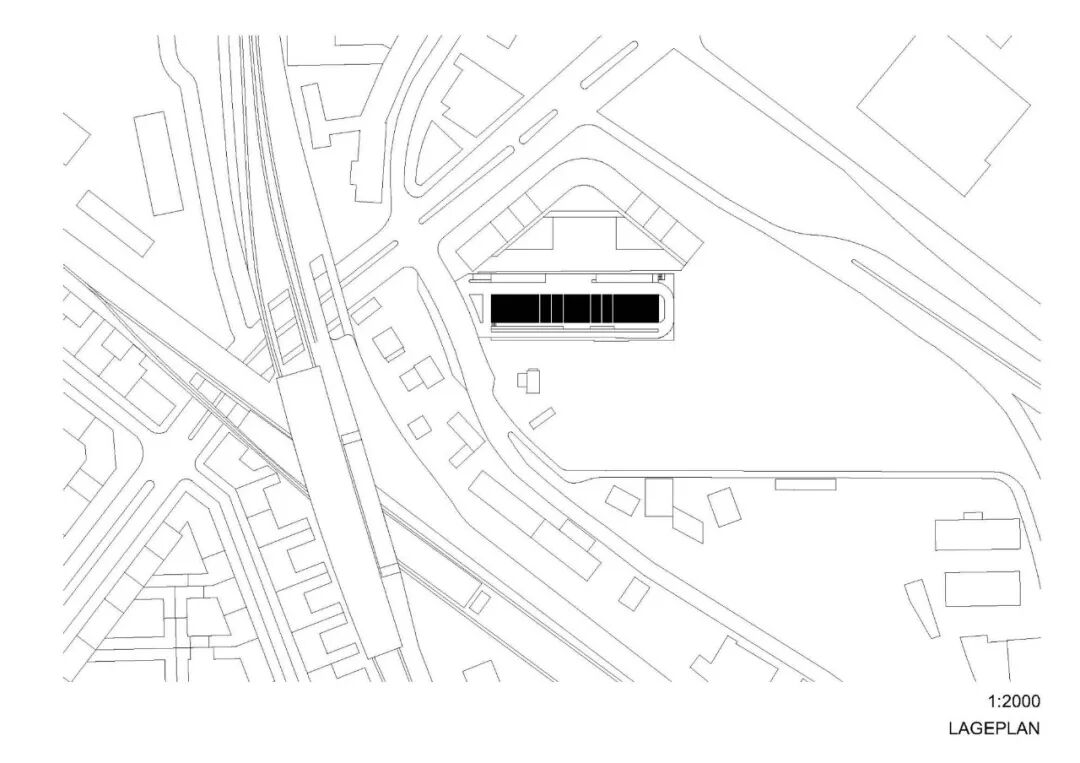
从远处看--从柏林环线或城市高速公路上看--新建筑与建筑师于尔根-萨瓦德(Jürgen Sawade)设计的一直孤零零的相邻建筑在快速发展的柏林新城区 "Schöneberger Linse "和 "EUREF-Campus "的入口处形成了一个引人注目的整体。
新建筑由Werdauer Weg 3 Immobilien Projektentwicklungs GmbH & Co. KG将办公和酒店空间结合在一起,目前已被用户--Debeka-Berlin和酒店品牌 "the niu "占用。这座位于柏林Schöneberg区的酒店和办公大楼是建筑师Jürgen Sawade设计的 "Platinum "办公高层建筑的姐妹楼。
Viewed from a distance – from the Berlin Ring or the city motorway – the new building and its hitherto solitary neighbouring building by architect Jürgen Sawade merge to form a striking ensemble at the entrance to the rapidly developing new Berlin quarters “Schöneberger Linse“ and “EUREF-Campus”. The new building, commissioned by Werdauer Weg 3 Immobilien Projektentwicklungs GmbH & Co. KG combines offices and hotel space, which has now been occupied by the users – Debeka-Berlin and hotel brand “the niu”. The hotel and office building in Berlin’s Schöneberg district is conceived as an architectural sister building to “Platinum” the office high-rise by architect Jürgen Sawade.


作为一个互补发展的形象,它吸收了邻近建筑的层叠,并将其从外部到内部的运动逆转。
该结构形成两个对称排列的高点,一个在Werdauer Weg的北面,一个在南面。从一个共同的五层楼的基座上,每层楼都以两层楼高的台阶向上错开,达到11层楼的高度--类似于 "白金 "建筑。新建筑将上世纪90年代的无背景建筑追溯性地嵌入到城市结构中。
As a complementarily developed figure, it picks up on the cascading of the neighbouring building and reverses its movement from the exterior to the interior so to speak. The structure forms two symmetrically arranged high points, one north of the Werdauer Weg and one to the south. From a common five-story base, they are each staggered upwards in two-storey steps to a height of 11 storeys – analogous to the “Platinum” building. The new building retroactively embeds the previously context-free building from the 1990s into the urban fabric.


这两座建筑共同构成了一个城市整体,其透镜状的平面图反映了邻近的 "Schöneberger Linse "城市发展区的结构。
它的西向轮廓将相邻的新十二使徒教堂院落及其被列为历史古迹的保罗-埃格林的小教堂从后院的位置解放出来,并赋予其新的城市形象。
一致的轻砖外墙加强了新建筑的雕塑性。它以乳白色为基调,参考了 "白金 "建筑的花岗岩。
在材料上,它也与邻近的纪念碑的砖块联系在一起。均匀分布在表面的窗户创造了一个抽象的立面形象,如同一张纵横交错的线条网。
Together, the two buildings form an urban ensemble whose lenticular floor plan reflects the structure of the neighbouring urban development area of the “Schöneberger Linse”. Its west-facing silhouette frees the adjacent New Twelve Apostles’ churchyard with its chapel by Paul Egeling, which is listed as a historic monument, from its backyard situation and gives it a new urban presence. The uniformly light brick façade strengthens the sculptural character of the new building. With its cream-beige colouring, it refers back to the granite of the “Platinum” building. In its materiality, it also ties in with the brick of the neighbouring monument. Windows evenly distributed over the surface create an abstract façade image as a web of vertical and horizontal lines.


建筑物外观的可塑性,被构思为浮雕,从细节中发展出来。这些细节不是装饰性的,而是来自于其结构功能。
深入墙体的窗户开口使外立面具有深度,创造了光与影的变化。为了掩盖伸缩缝,在垂直和水平带之间的接口处,墙面上出现了微妙的凹槽。
在它们有规律的重复中,它们成为立面浮雕中的另一个结构元素,让人联想到墙面痉挛或bossage的美学用途。
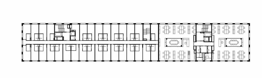
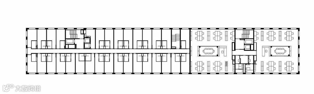
新建筑的两个住户得益于其位于两个中央火车站之间的良好位置:南区是Debeka-Berlin全国总部的所在地,而北区则是 "the niu "公司的一家酒店,拥有近300个房间。
The plasticity of the building’s exterior, conceived as a relief, develops from the details. The details are not ornamental, but arise from their structural function. Window openings cut deeply into the wall lend the façade a depth that creates a changing play of light and shadow. The cladding necessary to conceal the expansion joints results in subtle recesses in the wall at the interfaces between vertical and horizontal bands. In their regular repetition, they become a further structuring element in the relief of the façade, recalling the aesthetic use of wall cramps or bossage. The two occupants of the new building benefit from its well-connected location between two central train stations: the southern section is home to the national headquarters of Debeka-Berlin, while the northern section houses a hotel by the company “the niu” with almost 300 rooms.

区位图

平面图


立面图


剖面图


设计单位:马克斯-杜德勒
地点:德国
建筑面积:12983 m²
建筑年份:2020

微信公众号“搜建筑”(ID:sjz9999)
合作、宣传、投稿
请加小编微信:soujianzhu006

