▲ 更多精彩,点击“搜建筑” 关注即可
南宁园博园园林艺术馆
中国建筑设计研究院

园林艺术馆是第十二届中国(南宁)国际园林博览会主场馆,主要功能为园林艺术与相关主题展览。
用地内有两座小山丘,设计将山体开槽,一层展厅整体嵌入其中,减小建筑体量对自然环境的压迫。二层形成小展厅的聚落并散布于山坡之上,营造具有传统地方特色的空间氛围。

遮阳避雨的钢结构“天幕”覆于聚落之上,延续山形走势,使建筑融入环境。


结合当地气候条件,将联通展厅的内街与休息空间设置在屋盖下的巨大灰空间中,为参观者提供自然风与日光,创造舒适的室外观览环境。


利用地形环境的优势,打破自然与室内展览的界线,将东西两侧的山坡作为展园,让展示空间向自然延伸,形成了“一馆对一园”的展览方式。访客可以在真实的自然环境中感受园林艺术。
The boundary between the outdoor and indoor spaces is blurred by taking advantage of the existing terrain and considering both hills as gardens for the exhibition. Each exhibition hall has a small natural garden for outdoor exhibitions. This integrated design extends exhibiting space into natural settings, inviting visitors to appreciate the beauty of gardens in the natural environment.


作为风景中的建筑,设计希望尽量采用自然材料与本土材料来呈现建筑表情。
一方面,从地方传统建筑中提取与转译有特色的建筑材料——夯土、毛石、木、瓦等;另一方面,结合园区建造过程中产生的“废料”,变废为宝,将碎石、红土等原料,经过设计表达,成为重要的建筑外立面材料。
大量原生原料的使用,使得建筑多了一层保温隔热的“皮肤”,可以平衡温差,提高空间舒适性。
As a building in the landscape, natural and local materials were used as much as possible. The design celebrates vernacular architectural materials such as rammed earth, rubble, wood, and tile while reusing rescued materials on the site for new constructions. For instance, crushed stones and red clay were collected and used in the construction of the facades of the main building. These materials have sound and thermal insulation performance which helps improve the comfort of buildings.












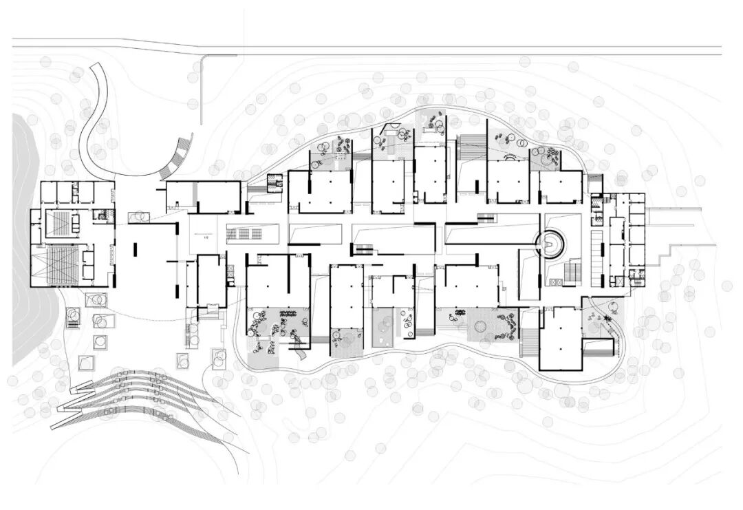
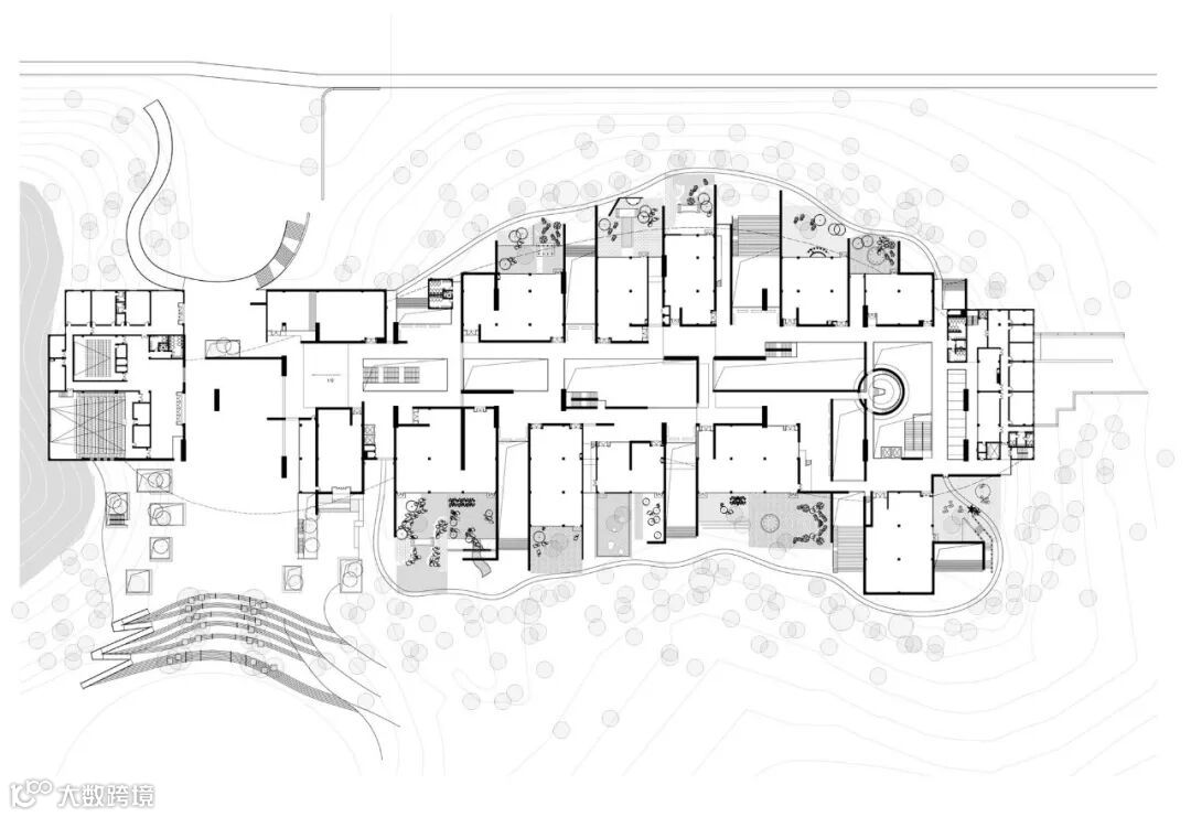
总平面

平面图1F

平面图2F

西立面

剖面图

分析图-爆炸图

分析图-材料系统

项目信息
建筑设计: 中国建筑设计研究院
面积: 25570 m²
项目年份: 2018
地点:中国南宁
摄影师: 张广源, 李季
主创建筑师:崔愷、景泉、黎靓、徐松月、关珲
园区规划及景观主持人:李存东
园区建筑项目总负责人:崔愷、景泉、崔海东、李静威
项目经理:赵文斌、张军英、雷洪强
建筑设计团队:景泉、李静威、黎靓、吴南伟、徐松月、关珲、李晓韵、马卓越、吴洁妮、单立欣、娄莎莎
景观设计:赵文斌、刘环、谭喆、刘卓君、武燕文、史丽秀、王洪涛
结构设计:史杰、王树乐、郑红卫、施泓、朱炳寅
给排水设计:李万华、高振渊、唐致文、杨东辉、郭汝艳
暖通设计:韩武松、宋占寿、孙淑萍、徐征
电气设计:李磊、姜海鹏、王苏阳、李俊民
总图设计:高治、路建旗、高伟、白红卫
智能化设计:唐艺、陈玲玲、许静、李俊民
经济:冀春辉
驻场建筑师:徐松月
业主:南宁园博园管理中心
照明顾问:北京宁之境照明设计有限责任公司
幕墙设计顾问:深圳大地幕墙科技有限公司
施工方:中建八局
推荐一个
专业的地产+建筑平台
每天都有新内容
扫描二维码关注

微信公众号“搜建筑”(ID:sjz9999)
合作、宣传、投稿
请加小编微信:soujianzhu006

