▲ 更多精彩,点击“搜建筑” 关注即可

在莱茵大道和阿尔弗雷德-卡斯特勒街的交汇处,I号地块,前面是多瑙河,标志着斯特拉斯堡生态街区的入口,并提出了关于交通模式变化和汽车未来作用的问题。
这个生态街区的雄心勃勃:公共空间不设停车位,而是在小区两边设置两个筒仓式停车场。
此外,没有指定的停车位,而是游客、白天的居民(工人)和夜间的居民(居民)之间的动态空间共享,这就形成了一个城市活力点,鼓励骑自行车或坐电车的绿色出行,降低了公寓的购置成本。为了保护街区不受交通影响,停车场结构在最繁忙的路口形成屏障。
At the intersection of avenue du Rhin and rue Alfred Kastler, îlot-I, fronted by Danube Vert, marks the entrance to the Strasbourg eco-neighborhood and raises questions about changes in transport modes and the future role of the car. The eco-neighborhood has lofty ambitions: no parking in public space but two silo car parks located on either side of the district. Moreover, no assigned parking spaces, but dynamic space sharing between visitors, daytime residents (workers) and night-time residents (inhabitants), which creates a point of urban dynamism, encourages green travel by bicycle or tram, and reduces the acquisition cost of the apartments. To protect the block from the impact of traffic, the car park structure forms a barrier on the busiest intersection.

该建筑体现了处理汽车的新的城市优先事项:由于 "智能城市 "的出现,游客、日间居民(工人)和夜间居民(居民)之间动态共享停车位成为可能。
停车场建筑在一个隐蔽的机制中扮演着一个齿轮的角色,在这个机制中,空间规划不可避免地、不可更改地以私家车为中心进行设想。它的建筑是钢面混凝土与玻璃的节俭交织。
The building embodies the new urban priorities for the handling of the car: the dynamic sharing of parking spaces between visitors, day residents (workers), and night residents (inhabitants) made possible by the emergence of the “smart city”. The car park building plays its role as a cog in the workings of a hidden mechanism whereby spatial planning is unavoidably and irremediably conceived in terms of the private car. Its architecture is a frugal interweave of steel-faced concrete enhanced with glass.


反射的相互作用,铁艺组合的重复图案的美感,使这座建筑--尽管它的功能是纯粹的--具有明显的特征。
在莱茵大道和阿尔弗雷德-卡斯特勒街的交汇处,I号地块面向多瑙河,标志着斯特拉斯堡生态社区的入口,并提出了关于交通模式变化和汽车未来作用的问题。这个生态街区有一个高远的目标:公共空间不设停车位,但在该区的两边设有两个筒仓式停车场。
The interplay of reflections, the beauty of the obsessively repeated pattern of ironwork assemblages, imbue this building – despite its purely functional character – with a marked identity. At the intersection of avenue du Rhin and rue Alfred Kastler, îlot-I, fronted by Danube Vert, marks the entrance to the Strasbourg eco-neighborhood and raises questions about changes in transport modes and the future role of the car. The eco-neighborhood has lofty ambitions: no parking in public space but two silo car parks located on either side of the district.


此外,没有指定的停车位,而是游客、白天的居民(工人)和夜间的居民(居民)之间的动态空间共享,这就形成了一个城市活力点,鼓励自行车或电车的绿色出行,降低了公寓的购置成本。
为了保护街区不受交通的影响,停车场结构在最繁忙的十字路口形成了一道屏障。该建筑体现了处理汽车的新的城市优先事项:由于 "智能城市 "的出现,游客、日间居民(工人)和夜间居民(居民)之间动态共享停车位成为可能。
Moreover, no assigned parking spaces, but dynamic space sharing between visitors, daytime residents (workers) and night-time residents (inhabitants), which creates a point of urban dynamism, encourages green travel by bicycle or tram and reduces the acquisition cost of the apartments. To protect the block from the impact of traffic, the car park structure forms a barrier on the busiest intersection. The building embodies the new urban priorities for the handling of the car: the dynamic sharing of parking spaces between visitors, day residents (workers), and night residents (inhabitants) made possible by the emergence of the “smart city”.


停车场建筑在一个隐蔽的机制中扮演着一个齿轮的角色,在这个机制中,空间规划不可避免地、不可补救地以私家车为概念。
它的建筑是钢面混凝土与玻璃的节俭交织。反射的相互作用,铁艺组合的重复模式的美感,使这座建筑--尽管它的纯功能特征--具有明显的特征。





区位图

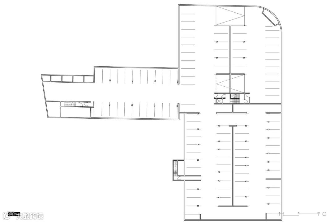
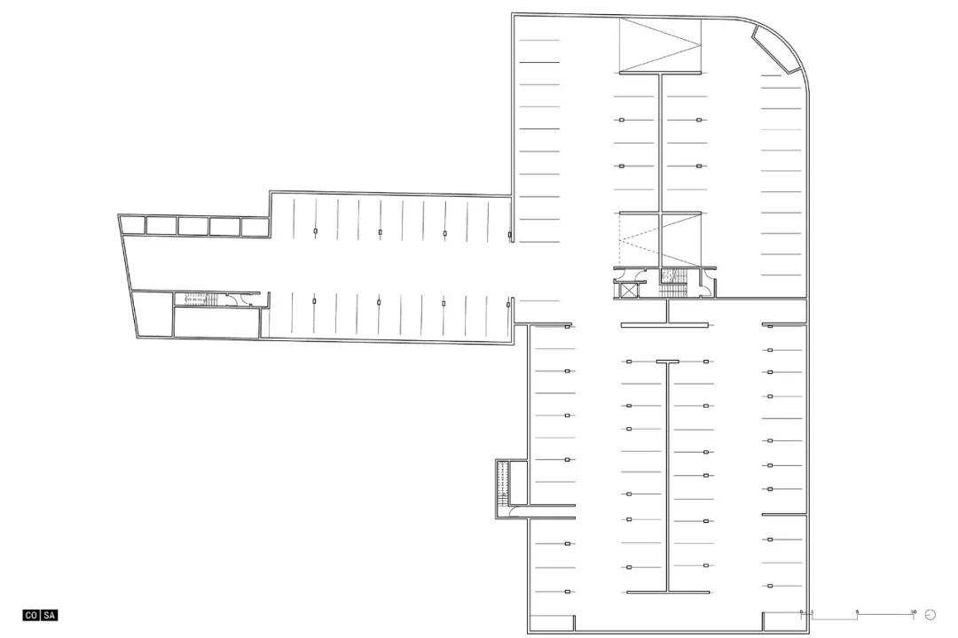
平面图



立面图

剖面图

细部分析图

轴测分析图



建筑师:COSA Colboc Sachet建筑事务所
地点:法国
面积:6960 m²
年份:2019
推荐一个
专业的地产+建筑平台
每天都有新内容
扫描二维码关注

微信公众号“搜建筑”(ID:sjz9999)
合作、宣传、投稿
请加小编微信:soujianzhu006

