▲ 更多精彩,点击“搜建筑” 关注即可
有关裙房设计的几个问题:
高层建筑主体下方是否属于裙房?
如果这部分属于裙房,如何进行消防设计?
裙房与高层建筑主体之间的隔离措施是什么?
《建筑设计防火规范》2.1.2 裙房:
在高层建筑主体投影范围外,与建筑主体相连且建筑高度不大于24m的附属建筑。

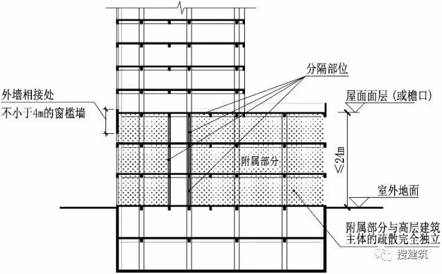
裙房概念示意
· 图图规范解读
按规范理解可以得出结论:主体下方不是裙房!
但实际工程中,主体下方大概率会布置为裙房功能。因为主体下方如果不作为裙房功能,几乎无法使用。
那,这一问题该如何解决呢?
山东和浙江给出了明确的解决办法
1、山东做法
《山东省建筑工程消防设计部分非强制性条文适用指引》第6页,建筑专业,第2.1.4条提到:
高层主体建筑下部(即投影部分)的附属建筑高度不超过24m(含裙房部分),当和上部高层主体建筑进行了严格的防火分隔后,是否可以按各自的高度进行消防设计?
高层主体建筑下部(即投影部分)的附属建筑高度不超过24m(含裙房部分),当同时符合下列条件时,高层主体建筑与附属建筑的防火分区、安全疏散和消防电梯设置可根据各自的高度分别按《建规》执行:
1 附属建筑与高层主体建筑相连且建筑高度不大于24m;
2附属建筑与高层主体建筑之间采用不开设门窗洞口及穿越通风管道的防火墙和不开设洞口(消防电梯井、上下管道井除外)且耐火极限不低于2.00h的楼板分隔;
3 附属建筑与主体建筑的疏散楼梯应完全独立,且不应设置相互连通的门窗洞口;
4 附属建筑外墙与高层主体建筑外墙上下层开口之间设置高度不小于1.2m的实体窗槛墙或挑出宽度不小于1.0m、长度不小于开口宽度、两侧各延长0.5m的防火挑檐。

图图规范附图
· 图图规范解读
山东省消防指引中指出了,高层主体建筑的下部附属建筑(高度不超过24m),可以按裙房来做,但前提是必须要做好上方所列的各项措施。
可以看到,指引中所列出的各项措施中考虑了很多,比如:按严格要求设置防火墙、楼板、实体窗槛墙以及防火挑檐等,做到了墙、板、窗都要分隔。
其中,分隔楼板耐火极限:不低于2.00h,也就是现浇楼板厚度必须达到100mm。
依山东做法,上图黄色部分楼梯,不管是主楼投影内还是主楼外,都可以按照自己的建筑高度来设计(封闭楼梯间,甚至开敞楼梯)。
我们还可以看到,裙房之所以可以不按高层建筑的严要求来设计,是因为做了严格要求的分隔措施。
但应该注意,山东指引中,在门、窗、洞口横向的防火分隔中有所遗漏。作为设计师,应考虑门、窗、洞口横向的防火分隔距离至少≥4米。
2、浙江做法
《浙江省消防技术规范难点问题操作技术指南(2020版)》第8页 1.5.3条提到:
除住宅与其他使用功能建筑合建以外的多种功能组合的高层公共建筑下部的附属部分,当同时符合下列1~3款规定时,主体建筑与附属部分的安全疏散和消防电梯设置可根据各自的高度分别按规范执行;
当附属部分同时符合下列1~4款规定时,主体建筑与附属部分的安全疏散、消防电梯和防火分区的设置可根据各自的高度分别按规范执行:(附图1.5.3)
1 与主体建筑相连且建筑高度不大于24m;
2 与主体建筑的疏散完全独立;
3 与主体建筑之间采用不开设门窗洞口(通风井道井壁不得开口,强、弱电、给排水管井井壁检修门采用甲级防火门)及不穿越通风管道的防火墙和不开设洞口(消防电梯井、上下管道井除外)且耐火极限不低于2.50h的楼板分隔;
4 与主体建筑相接处外墙上、下层开口之间的实体墙高度和两侧的门、窗、洞口最近边缘之间的实体墙宽度均应不小于4m。


原附图 1.5.3 多种功能组合的高层建筑下部的附属部分

图图规范附图
· 图图规范解读
可以看到浙江的更细致了:
1、当裙房和主楼之间,外门墙洞口不做分隔时,主体下方也可以用做裙房功能,但裙房的防火分区是有限制的;
2、当外墙做了严格分隔时,防火分区也可以更大,但要求分隔更严格,上下左右均应不小于4m。
此外,与山东省消防指引相比,浙江要求的分隔楼板耐火极限要更高:不低于2.50h,也就是现浇楼板厚度必须达到120mm。
做好严格的防火分隔后,裙房带来哪些变化?
①、耐火等级不能降低
《建筑设计防火规范》5.1.1-注3 除本规范另有规定外,裙房的防火要求应符合本规范有关高层民用建筑的规定。
裙房之所以称为裙房,它不等同于多层建筑,因为它是与高层建筑相连的建筑,所以耐火等级是不能降低的。
②、防火分区可变大
《建筑设计防火规范》5.3.1条
除本规范另有规定外,不同耐火等级建筑的允许建筑高度或层数、防火分区最大允许建筑面积应符合表5.3.1 的规定。
表5.3.1 不同耐火等级建筑的允许建筑高度或层数、防火分区最大允许建筑面积

原来按高层民用建筑要求,防火分区最大允许建筑面积1500㎡,
现按单、多层居用建筑要求,防火分区最大允许建筑面积可以达到2500㎡。
③ 楼梯形式有变化
依据《建筑设计防火规范》5.5.12条:
裙房和建筑高度不大于32m 的二类高层公共建筑,其疏散楼梯应采用封闭楼梯间。
注:当裙房与高层建筑主体之间设置防火墙时,裙房的疏散楼梯可按本规范有关单、多层建筑的要求确定。
由此可以得出结论:
a、做好严格的防火分隔后,楼梯即便位于主楼下方也可以为封闭楼梯间;
b、楼梯形式甚至可采用开敞楼梯
④、疏散距离
依据《建筑设计防火规范》5.5.17条,公共建筑的安全疏散距离,也有相应改变。
原按高层设计要求:40m、20m
现按单、多层的话要求:40m、22m

注:1 建筑内开向敞开式外廊的房间疏散门至最近安全出口的直线距离可按本表的规定增加5m。
2 直通疏散走道的房间疏散门至最近敞开楼梯间的直线距离,当房间位于两个楼梯间之间时,应按本表的规定减少5m;当房间位于袋形走道两侧或尽端时,应按本表的规定减少2m。
3 建筑物内全部设置自动喷水灭火系统时,其安全疏散距离可按本表的规定增加25%。
⑤、疏散宽度
依《建筑设计防火规范》5.5.18条,疏散宽度也有变化,总结对比数据如下:

结语:
总的看下来,需要注意的是,在实际工程的应用中,绝大部分高层的裙房,最终仍然会是人员密集的场所,安全疏散还是需要按照人员密集场所来设计。
而做好分隔后,最大的变化和好处主要有以下两点:
1、防火分区变大,布置更灵活;
2、置于主体下方的楼梯间不需设防烟楼梯间,空间利用更高!
总之,面对规范的强制条文,山东省和浙江省权威机构结合实际问题,给出了更为合理、实际、可靠、人性化的对应方案,值得大家借鉴学习。
图图规范整理
(点击查看)
(点击查看)
建筑规范
深度解读、剖析
扫描二维码关注

2021年·新产品方向
《 品牌地产 | 精品楼盘活动 》

微信公众号“搜建筑”(ID:sjz9999)
合作、宣传、投稿
请加小编微信:soujianzhu006




