▲ 更多精彩,点击“搜建筑” 关注即可
叠院产品作为这两年高端住宅市场的主力军之一,不仅仅只作为住宅,它更是能够创造多项附加值的产品。但是,一个叠院产品想做到满分是很难的,毕竟房子的特殊性在那摆着,有容积率、限高等诸多限制条件。
然而,今天想和大家说的这个来自融创的项目,从地块选择,到产品规划,到整体展示,所有维度所有环节都做的非常用心,在全青岛估计是独一份了。
融创·影都学府 | 宸院,可以说是“生逢其时,产品动人,情绪共鸣”。
“质”胜时代
硬核产品力打动人心
叠院的产品看过很多,很多的感受就是摊开户型平面,十个叠拼八个像。
并不是说相似的产品不好,而是叠院类产品是否还能有更加的差异化设计表达。
融创此次带来的这一全新产品打破常规,通过折叠的空间美学设计,从平面到立体,从二维到三维,打造“上、下双叠拼+中叠大平层”的产品配置。
项目规划建面约177-196㎡叠院产品,均实现了每户四室的空间格局,总体给人的感觉就是空间尺度很大,实际体验感与空间感远超于既定面积。
下面我们详细看看每个户型的亮点:
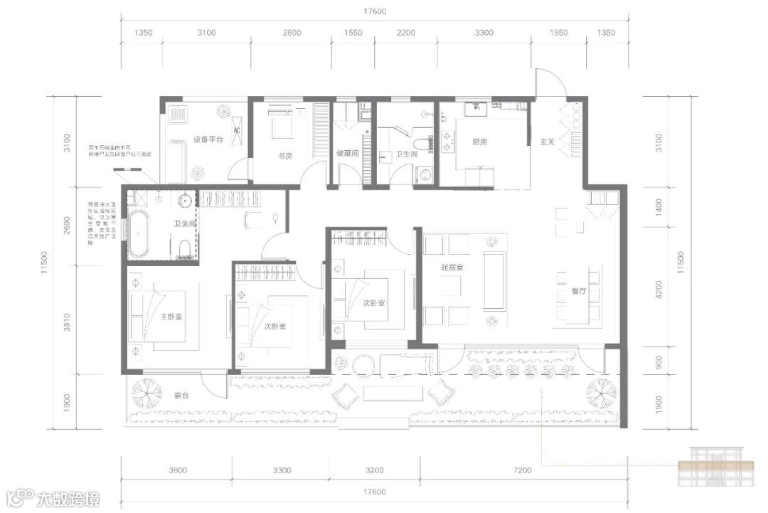
1、下叠边户、中间户1、2层(约192㎡4房2厅3卫)
<< 滑动查看下一张图片 >>
分别为下叠边户、中间户约192㎡一层、二层平面图
① 超大庭院提供多种户外场景,室内外一体化设计
从当下的市场环境来看,很多叠院产品的打造重点已经从户型空间逐渐转向户外庭院,且为客户营造更多生活场景就成了重要的优化方向。
下叠边户为三边院设计,中户则南北分别享有院子,都为独立入户,其中庭院面积最大能达到约300㎡,可以说是非常惊人了,光进深就达到了约8.5m,而据了解,龙湖的别墅产品一般都在5、6m左右。
在这可以享受到院子比房子还大的生活,一家人在这里聚会、开派对、烧烤、游戏,都不是问题,这也是下叠户型让人心动的地方。
同时与约7.2m宽的客厅相连,整体客厅、餐厅、庭院等一体化设计,引景入室,舒适度很高,好的设计,一定是注重室内+室外的关系、人与自然的关系,将室内居住和外部场景形成良好呼应,这才是产品的本身。

效果图
② 约5.5m挑高的地下空间更加强调实用性
对于地下空间,除了赠送面积,实用性对于客户是一个敏感点。
<< 滑动查看下一张图片 >>
分别为下叠边户、中间户约192㎡地下空间示意图
地下空间是否实用,很重要的一个指标就是高度,该户型拥有全面积赠送的约5.5m的挑高空间,足以做到两层空间,实现了较高利用率。

效果图
这样一来,负一层可以实现与起居室一样的功能,可以规划为会客厅、储藏室、藏书房、影音室、健身室、酒窖等等,提升整体舒适度及墅质体验,实用性大大增强。
③ 户型结构分层独立,满足现代人居需求
边户的双层设计真正意义上兑现了同一屋檐下的两个独立空间,二楼私密空间与一楼公共空间互不干扰,保证了每一个空间都有着对应的功能,且二楼南向三卧室设计,飘窗全部赠送。

效果图
中户一楼则设计了一间老人房,二楼为主卧和次卧,比大平层更有效地实现了动静区隔和代际区隔,楼上楼下互不干扰,私密性很高。
两种不同的产品设计给予了客户更多的选择,能够匹配各种家庭需求。
2、中叠3层(约177㎡4房2厅2卫)

中叠约177㎡户型平面图
① 尺度不凡的露台设计,更大程度放大景观面
现在的产品均以大面宽和大面积玻璃为主角,可以说面宽越大,越舒服。
三层的中叠户型全部无一遮挡,做到了南向五开间,设计高比例的窗墙比,不单单提高了立面的颜值以及采光和观景效果,更重要的是意味着开发商付出了更高的成本,以此提升了产品的品质感。

露台平面图
露台设计全长约17.6m,进深为约1.9m,甚至达到了约2.8m,真的是非常大了。这样一来拥有了无与伦比的景观视野,这也是设计的初衷,空间感得到非常大的延伸,不管是在哪个房间,都有很好的视觉享受。
如此大面积的露台给生活带来更多的美好与可能,健身、饮茶、赏景都可以在这里进行,除了能够满足日常采光的需求,还能满足家庭娱乐需求,实现了室内与城市、自然的无缝对接。
② “LDKB”空间理念,打造超尺度家庭厅
近几年各行各业都在流行“MAX”,归根结底还是源自于用户的需要。

效果图
住宅也是如此,该户型“LDKB”各个空间一起联动,约7.2m的大面宽客厅,更加强调空间、视野的更大化,容纳和聚集更多的居住可能,营造出更加轻松愉悦的氛围让家人有更多的时间在一起进行相处。
随着豪宅的社交性增强,可以很明显的看出,公区已经告别了以沙发电视为核心的传统布局,而是集合了看电视、阅读、聚会、休闲娱乐等多功能,营造更加自在的活动场景。
③ 户型设计更多强调功能性,提升居住体验

平面图
不仅如此,独立玄关设计,不仅能够加强收纳,提升私密性,在视觉上还能起到缓冲的作用;独立储藏间,能够拥有足够的收纳存储空间,避免对主要起居空间造成流线和视觉影响。
该户型也是真正的全生命周期户型,在不同的成长阶段可以根据生活需求,满足生活多种可能性与场景多元化转变。
3、上叠4、5层(约195㎡4房2厅3卫)

上叠约195㎡户型平面图
① 约60㎡双层露台,强调院和室的互动
上叠露台是为产品加分的重要细节,但决定价值大小很重要的一点就是面积大小,若露台面积很小,空间功能性就会很差利用率也很低。
该产品户户赠送约60㎡的屋顶大露台,且面宽达到了约7.2m,这样的设计在青岛是十分少见的,270°的环景视野,实现了真正意义上的露天花园,阳光、花草、露天烧烤,生活随心所欲,使用价值是很高的。
除此之外,将露台有机地与约40㎡起居空间相融合,抬眼即景,互动性更强,采光视野更好,充分实现人和自然的互动。
空中露台与室内空间毫无违和感,让室内的居家空间与室外的自然空间形成非常好的融合,带给业主 “有天有地”的居住感受。

效果图
② 合理卧室设计,给予生活更大的方便
将老人房设置在一楼,因为老人爬上爬下不方便,而且在一层能更亲近自然,使用庭院空间更便利。

效果图
二楼则是超大主卧套间、书房以及次卧,家庭成员各有各的空间,互不影响,这样的卧室设计,更好的平衡了两代或三代人的生活空间。
还有很重要的是,所有户型均保证了“五面宽朝南”设计,以及统一的“主卧套房”(独立卫浴间、独立衣帽间+化妆间、超大浴缸等)设计,这样一来,叠院的居住体验可以说上了一个台阶,更具备别墅的品质感。
最后还有非常值得一提的是,关于这个叠院产品,室内精装大师王大君因被空间的尺度感及创新规制而吸引,为其亲手操刀设计了中下叠的样板间,该设计师可是曾服务于国内北京壹号院等顶级豪宅项目。
当下叠院产品已经逐步从小众化产品蜕变为“时代新宠儿”,一方面是政策驱动带来的诞生契机,另一方面也是对自身局限性不断创新优化后的结果。
对于融创这个全新的叠院产品,堪称教科书级的典范,非常值得同行从中汲取经验。
山海之间人间绝色
极简美学成就人居封面
作为不断颠覆自我的创新者,融创每一次推出新品,都会给市场带来一定的触动,不仅仅在于内,还在于外。
毕竟在某种程度上,这是一个颜值当道的时代,外立面成为打动消费者的重要门槛。

效果图
该项目立面设计采用现代简约的建筑风格,将大面积落地窗、铝板与金属相结合,充分表现了东方留白与西方经典相融合的美学设计,贯彻“少即是多”的理念,虽无多余装饰,但更为简洁有力,理性与典雅兼容并蓄,向现代主义大师勒·柯布西耶致敬。
三层窗体的收口设计、顶部850mm的挑檐雨棚、通透的装配式玻璃栏以及分缝划分的的百叶格栅等,这些特别设计丰富了整个立面,更加体现了建筑的形体比例和形态美感。

效果图
色彩上以融创独有的高级灰为底色,搭配艺术品级的玛瑙蓝,深浅色系搭配,凸显建筑立面的虚实关系,在阳光下,不同的光泽度使建筑变得轻盈并富韵律感,营造出现代简约、气派典雅的立面质感,构成山海间的一抹绝色。

示意效果图
“岁月从不败美人”,精心的考量设计和材料的恰当运用,让其立面不仅好看,更为耐看且耐用,在时间的冲刷下,散发出经典隽永的光彩。
这样的立面呈现经过了反复推敲,再加上施工精度的良好保证,辨识度会很高,未来对于整个片区的面貌提升,有着重要作用,甚至会影响这座城市的气质和形象。
园林折叠绿洲
构建立体化“桃源美景”
对于客户来说,社区规划做得更好,居住舒适感会更高。
毕竟低密才能保证园林有充足的生长空间,否则居住其中就会变得比较厚重压抑且不适宜生活。

效果图
该项目结合整个地势特点,通过天然的台地高差设计打造立体折叠景观,定制5个组团,并且每条巷道设计特色主题,对应选择不同的景观植物来打造,同时再提取这些植物的元素符号,加以精细化设计,可以说是细微之处非常用心了,这样的景观动线为客户打造了私属空间,强化私密性,并且更加强化了归家礼序,整体富有更好的层次感与节奏感。

示意图

示意图
园林设计打造“三园五巷十景”的学府文化仪式感景观,移步异景的空间变换带来了丰富的视觉体验,配合着楼栋排布,从室内看到的窗外风景,得以更加地立体化,更保证了处处有园景。

平面图
豪宅在设计中对建筑和景观的尺度拿捏是非常重要的,该项目通过对一层院子与公共绿化空间之间的精心考量,构建最为舒适的空间规划。
比如边院完全属于私密空间;与公共绿化景观相邻的院子却有着优先到达的便利;而两户相邻的院子则更好的保证了业主的私密性,这样人性化的设计,既保留了满足社交功能的公共空间,又保证了个人的私属空间。

效果图
也许,在我们普通人眼里不经意的一瞥,觉得哪哪都恰到好处的感受,而这背后,不知是耗费了多少心血。
可以说,在近几年追求“高周转”“高利润”的楼市上,像影都学府 | 宸院这样用心营造“真园林”的项目,已是凤毛麟角。所以,好的产品从来不仅是视觉的享受,而是兼顾实用与功能的打造,让客户发自内心的有所共鸣。
只定制不复制
时代与城市的经典之作
当然,不仅仅是有着出彩的产品力,还有一点很关键,有没有足够好的地段可以承载这样的好产品。
项目位于西海岸灵山湾核心中轴,在青岛282km海岸线上,背山面海,为“太师椅”风水格局。

区位图
未来这里会有“双轨一隧”立体交通、约36万方文旅航母融创茂、6所名校齐聚、4家星级酒店、TOP级游艇会所……青岛的核心价值序列于此集合,拥有很好的城市界面,这里将会是真正具有发展前景和成为青岛富人区的地方。
反之也可以说,融创的到来,为青岛灵山湾这个发展迅猛的新区,打造了一个能够代表这个区域的豪宅产品。
或许这可能就是融创·影都学府 | 宸院的“生逢其时”吧。

实景图
结语:
融创·影都学府 | 宸院很好的验证了那句话,“好产品,自然有打动人心的魅力”。
从产品设计、立面审美还是社区景观等各个维度看,这样好产品+好地段结合属实不多了,据了解,影都学府 | 宸院这个产品在继承了壹号院豪宅基因的同时,景观和建筑的设计细节是超越了壹号院的,可以看出,融创十分用心的在青岛拿出了一个满分以上的产品。
本资料声明:
1.本文为建筑设计技术分析,仅供欣赏学习。
2.本资料为要约邀请,不视为要约,所有政府、政策信息均来源于官方披露信息,具体以实物、政府主管部门批准文件及买卖双方签订的商品房买卖合同约定为准。如有变化恕不另行通知。
3.因编辑需要,文字和图片无必然联系,仅供读者参考; 本资料制作时间为2021年6月。
推荐一个
专业的地产+建筑平台
每天都有新内容
扫描二维码关注

微信公众号“搜建筑”(ID:sjz9999)
合作、宣传、投稿
请加小编微信:soujianzhu006

