▲ 更多精彩,点击“搜建筑” 关注即可

大平层一直被拿来与别墅比较,但事实上,现在很多大平层豪宅的户型设计越来越别墅化了。
大平层豪宅市场的今天,谁才能堪称“真豪宅”?带空中花园的绝对可以!
生活在现代都市的人们对院落式的生活方式有着一颗向往之心。院落是中国传统根子里的居住形态。无论身处什么样的人生高度,我们都从内心渴望“院子”。
今天一起来看一看各大房企是如何在大平层里盖院子的。
户外空间庭院化
院落大平层的面世,让传统院落式的生活回归,满足都市人对于乌托邦式的田园诗意居住需求的追求,使他们不用在大平层和别墅的选择中徘徊。
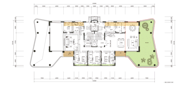
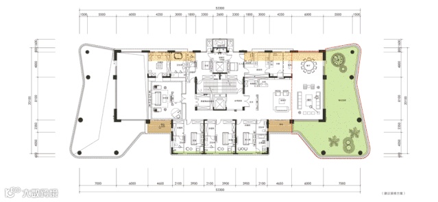
比如重庆龙湖舜山府,这是一个极大的户型:套内约354㎡、建面约427㎡,先来看看户型图:

起居厅包括了270°采光的双客厅、L型大阳台、茶室、一个很大的餐厅,面积接近130㎡,让人挪不开眼的,是这个270°转角大阳台,简直堪称“跑道式阳台”。

重庆龙湖舜山府阳台 实景图
世茂天誉增配错层270°转角露台也是对视野的不辜负,长达13.5米的采光面,带来了三大优势:

露台示意图
三大优势叠加,再加上3.15米的层高,置身在世茂北京天誉的室内,犹如进入阿斯顿·马丁座舱一样。

世茂北京天誉效果图

约215㎡户型示意图
错层挑高“空中院子”
创新突破性错层设计,高层户户空中庭院,方能打造出以前所未有的生活空间。

比如重庆龙湖揽境,奇数层的灰色部分是偶数层的院子上空,偶数层的灰色部分是奇数层的院子上空。
九宫格演绎理论图
也就是说,每家人的院子都是向上挑空的,层高可以达到6米以上。这一次龙湖不但还原了真正的“院子”,还把这个“院子”搬到了空中。
将私家花园搬到了空中,6米挑高的空中庭“院”。

样板间实拍图
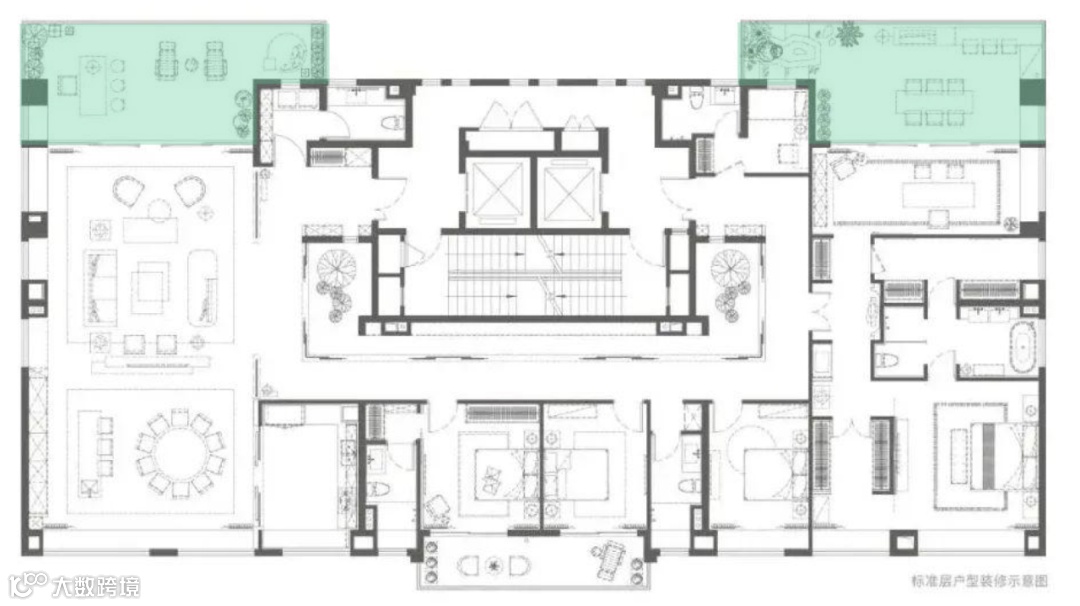
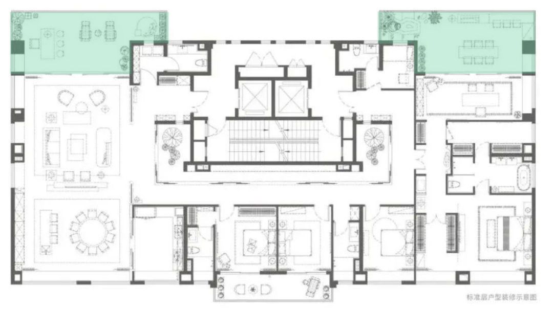
玖著天宸在产品设计上,所有户型都采用了大面宽设计。L型阳台的设计,最宽的地方有约3.1米和6米的挑高,就是一个空中花园。

玖著天宸户型图
这个建面约115平米的户型,横厅面宽约10米,阳台面宽同样达到了约10米。
再来看岳阳南湖天著瞰宇平墅,270°环幕视野俯瞰整个南湖,将别墅级的庭院搬入高层,让空中庭院成为塔尖人群家庭生活的原点,也让该项创新成为中国大平层史上的重大突破!
岳阳南湖天著二期536m²瞰宇平墅,长20m、宽13m、高7.18m、面积达176m²的立体空中花园!

效果图
如何做到每户都拥有一个高达7.18米的立体庭院?岳阳南湖天著采用了镜像设计,如约536m²瞰宇平墅与约456m²观心平墅,奇数层与偶数层的院子分列东西两侧,形成对称美感。
约320m²&约255m²听音平墅L型咬合式结构示意图
重庆龙湖·三千庭全新打造了特色洋房——生态时代的立体花园。错叠布置的约6米挑高空中阳台花园、复式上层景观小阳台,使私家庭院的尺度和功能得到了双重满足。
概念生成图

意境图
手稿图
巧妙的错层设计,让6米挑高空中阳台花园可以种几米高的大型植物,将花园搬家中,近距离接触大自然;外接在主人房外面的复式上层景观小阳台,可以让你拥有一个额外的私密空间,看看书、品品茶、在追剧时还能看到孩子在花园玩耍。
无论立面风格、空间感、私密度到室内景观的实现,都表达出龙湖在产品创新上的又一次进步,以及对洋房审美的进化。
中海也带来了前所未有的创新:在大平层里盖了6米的“空中庭院”,270°包围整个客厅,仅庭院面积高达30㎡。

6米“空中院子”示意图
一方面从外看,这么做让整体的外立面看起来不是那么的单调,从而让视觉上的感受更加丰富,建筑体的美感更加突出;
另一方面,“空中庭院”赋予了我们对生活的无限想象,在城中的高处,拥有一座专属自己的庭院,这该是多少人向往的生活啊!尤其疫情后,有个可以晒太阳的庭院真的太令人羡慕了。
来看看两种露台的错层布置:
“空中院子”形式1
“空中院子”形式2

空中庭院效果图
“把庭院与大平层结合,打造颠覆式的人居住宅空中院落大平层。”
这个也印证了城市住宅在经历了简单功能型、功能改善型、综合配套型三大阶段之后,正在向第四代“人居生态型”发展,也就是让住宅回归人性,与自然共生。
不同布局带来的不同生活
1、户户赠送露台,享有360°的环绕全景观
中国铁建贵安·花语墅实景图
花语墅超大的景观露台全赠送,9米挑高,能满足大型乔木种植,每家每户都有赠送的40-50㎡空中花园面积……

户型示意图
最大景观露台面宽达到12.6m,进深4.1m,赠送面积达到“可怕”的51.6㎡。最小的也有6.4m*4.1m,赠送面积达到26㎡。

中国铁建贵阳花语墅效果图
2、不同进深带来不同生活
重庆首创的一款142㎡洋房户型,观景跑道阳台长达14.8米,进深也达到2.4米,超过35平的大阳台完全可以打造成一个空中花园。

建筑面积约142㎡洋房户型平面示意图

天阅嘉陵 实景图
融创滨湖印“顶配”产品,一层一户,从户型图上看,滨湖印230㎡超乎想象的户型设计:南面横向超大阳台面宽约9.8m、1.8米进深L型的270°转角半封大阳台。

滨湖印230户型图

融创滨湖印230㎡室内效果图
它整体以大横厅、转角L型大阳台、配合适度奢侈的完整功能性和符合国际审美趋势的产品设计感。

融创滨湖印230楼王L型阳台效果图
南京融创滨江ONE384㎡,动静分离,两梯一户,270°视野俯瞰江景、园景、城景,空中豪宅还带空中露台。
南京万科翡翠滨江,从公布的户型图来看,亮点颇多,恪守瞰江原则,万科翡翠滨江打造了32°楼体瞰江角度、270°观景面等设计,将一线江景的核心资源价值融入到户型设计中。天空庭院:天空露台瞰揽一线江景,庭院内部拥享自然天光。

南京万科翡翠滨江380㎡户型图
未来住宅“垂直森林”
从古至今,人类一直就想造一座森林花园,向往着田园悠然的绿色森林式的居住环境。
清华大学作为绿色建筑的引领学府,其产学研实践平台为福天兴业集团研发的3S生态智能创新建筑,让城市建筑成为一座座“垂直的建筑森林”,做为现代版的森林花园建筑样板。
不仅仅实现了让传统的建筑拥有绿色生态的私人庭院和邻里交流沟通的公共空中休闲平台,还实现了生态和智能的延伸。
联合发起成立的3S生态智能创新建筑研发中心,将致力于空间(Space)、智能(Smart)、服务(Support)三大板块的研发及产业转化,为该建筑体系不断输送新鲜血液。

示意图
通过立体交通体系、人工智能配套、城市垂直绿化、建筑新能源、建筑新材料、施工技术创新等配套产业板块,形成3S生态智能创新建筑的完整闭环。



效果图
3S生态智能创新建筑在全国已全面开发,比如张家界福天古庸院子,此项目每家每户的阳台上拥有繁茂的景观绿化,使得绿色建筑的概念在项目中得到深化。
岳阳福天城是3S生态智能创新建筑的庭院式建筑模式,270°观景视野的庭院,其中空中庭院均为40㎡左右。
效果图
效果图
福天藏郡三期项目呈现了3S生态智能创新建筑的经典模式,把街巷和庭院同时升入空中。
在这种模式中,每层每户不但拥有私属的前庭后院,每隔两层还拥有一个共享平台,方便了人们在公共院落里休闲、散步、运动以及街坊四邻闲聊,拥有平层的社交能力。
效果图
同时每层每户拥有双钥匙系统,复式楼的空间设计,还可实现三代同堂,同时各自拥有独立的空间,相伴又互不相扰。

效果图
中国铁建贵阳花语墅,也是顺应于时代的发展,进一步寻求建立了一种新型的城市环境,让建筑与自然无限趋近,相融一体,让“生活在森林中”将不再是“返祖”梦想,越来越多的人向往“垂直生态住宅”。

示意图
户型采用“凸”字形设计,将露台外伸,逐级旋转90度,错位向上布局,每三层一个模块,每三层一次循环,这样就形成了每户可拥有约9m挑高(三层高)的露台空间。这样每一层都形成了“空中庭院”的概念,彻底打破了“底层才有庭院,顶层方得露台”的传统建筑模式。
中国铁建贵阳·花语墅“空中庭院”效果图
中国铁建贵阳·花语墅效果图
润德地产作为湖北恩施老牌房企,依托清外教育集团,推出的第四代住房,润德·城市森林花园。

充裕的面积让每个空间的功能都能完美呈现,餐厅和客厅这样的公共空间拥有足够的尺度,通过推拉门的连接,客厅又能直通露台,相当于多了一个视野更好、更通畅的户外客厅。
建筑设计上,采用了错层设计,奢阔的大横厅,6米高的超级挑高空中庭院,面积约60平米,比很多的小户型面积还大,可以在这片天地里尽情发挥想象力,创造出与众不同的生活。

由此可以看出,这些建筑进一步寻求建立了一种新型的城市环境,既要都市的便利快捷,市井繁忙,也想要清晨的鸟鸣声声,体验自然的生态野趣,消除了自然和建筑之间的障碍,创造了一个多孔的城市肌理。
1.本文为建筑设计技术分析,仅供欣赏学习。
2.本资料为要约邀请,不视为要约,所有政府、政策信息均来源于官方披露信息,具体以实物、政府主管部门批准文件及买卖双方签订的商品房买卖合同约定为准。如有变化恕不另行通知。
3.因编辑需要,文字和图片无必然联系,仅供读者参考;
2021年
新产品·新理念·新技术
《 品牌地产 | 精品楼盘活动 》
杭州、苏州、上海
成都、郑州......
广州、福州、重庆
西安、青岛......
扫描二维码 加好友咨询
领队微信:soujianzhu008
推荐一个
专业的地产+建筑平台
每天都有新内容
扫描二维码关注

微信公众号“搜建筑”(ID:sjz9999)
合作、宣传、投稿
请加小编微信:soujianzhu006














