▲ 更多精彩,点击“搜建筑” 关注即可
玄关在整个户型中虽是小小一块空间,但必须承认,玄关流线的设计会为室内空间的流线打下基础。好的玄关设计对室内功能区的分配、项目定位的体现都有作用。所房企若在玄关部位做好功课,业主踏入房子的第一步就能体验到房子的价值。
下面搜建筑将分别讲讲刚需、改善、豪宅项目中玄关设计都有哪些需要注意的,以及有哪些优秀的操作。
01
刚需项目
户型再小也要有玄关
玄关是一个家的门面,对于刚需而言,主体是收纳。所以我们这一板块以小户型玄关的收纳为主。
有好多刚需户型中并没有设置玄关,且一些户型入户直接面对卧室和卫生间,这类极其缺乏安全感,也很难做收纳。
基本上现在市面上小户型都不会设计有单独的玄关,基本以入户门配置一个鞋柜、衣橱就起了一个过渡的作用,这样在使用面积上不会有太多的浪费。
我们来看一个85㎡的户型,做了独立入户玄关,私密性和实用性满满。
金茂首开 · 国樾约118㎡的三房两卫,进家门就是超大玄关,进深约2.3米,很多客户都感叹,豪宅的大户型也没有这么大的玄关。足够收纳大量鞋子包包,外出归来,在这里还能完成衣服、鞋帽、手的清洁。


金茂首开 · 国樾样板房实景图,约118㎡户型玄关
这个户型的玄关柜,专门留了一块通高空间,你可以自由安放搁板。
厦门保利·天汇 玄关收纳空间示意图 来源:POLY技术汇

厦门保利·天汇户型图
柜体空间的容积居然达到1.64立方米,足够将日常出入常用的鞋子、雨伞、部分衣物,甚至小智能家居等物品收入柜体,使玄关空间更为有序美观。

这个95㎡的小户型,南向三开间,贯通式的大阳台,开间5.6m。
这个户型的整体空间被重新解构,在玄关、厨房、主卧、卫浴、儿童房、阳台6个重点功能区域进行墙体内嵌式收纳设计,设置了10768升的收纳空间。
从玄关收纳到主卧收纳,从卫浴收纳到厨房收纳,郑州电建·泷悦华庭为生活打造出“3.5次尖叫”的收纳系统,让每一个家庭都能在有序的生活美感中翩翩起舞。

电建泷悦华庭2期玄关动图
玄关收纳柜,内部做了上中下分区,相当于72个登机箱的容量,包含了鞋柜、衣柜、收纳盒、置物柜、换鞋凳和一面全身镜。
鞋柜可以容纳72双鞋子,内部隔板可自由调节高度,高跟鞋、靴子等皆可归置收纳。
衣柜和穿衣镜的设置很妙,出门时则可以在门口换上外套,照照镜子,整理下仪表再出门。
抽屉式收纳盒和置物柜则是点睛之笔。零钱、开瓶器、梳子、发票等等家里的小物件皆可放进去,用的时候可灵活拿取。
电建泷悦华庭2期玄关实景图

中海学仕里72㎡户型

中海学仕里,72㎡3房2厅户型,玄关1724升,相当于49个登机箱。
02
改善项目玄关
全生命周期收纳、重社交隐私
改善客户一般都希望户型空间更丰富,且看重户型的成长性,并重视社交。那玄关的设计也得围绕这些来设置。
① 独立玄关是标配
改善项目户型中大部分注重玄关设计,且设计成独立入户玄关。比如保利堂悦项目,所有户型全部配置独立玄关,不仅提升住户归家感,也增强储物空间。
中南·棠玥湾洋房164平米户型,一进门,入户玄关是独立空间,不仅有满满的鞋柜、玄关柜,外卖小哥也无法一眼看进你家里。玄关还铺设了灰色大理石。

中南·棠玥湾洋房164平米户型
中南置地和华宇地产联合开发的君启项目,南向14.7米超大面宽,双玄关入户,每户约7㎡的门厅很有豪宅腔调。
东原·印未央约168 m²户型是独立电梯入户,内外双玄关,并且连接一个家政阳台,十分方便。

东原·印未央约168 m²户型
绿城的玄关兼具仪式感和功能性,正面入户玄关柜是仪式玄关,兼具储物功能。入口两侧的玄关柜作为功能性玄关,可以存贮鞋帽,高尔夫杆、行李箱等等,双玄关设计使用功能大大增强。

重庆绿城·晓风印月套内143㎡户型图
② 玄关+衣帽间(独立储藏间体系)
比如金茂悦系120平户型中,入户玄关处连着一个衣帽间,主人回家随手脱下来的大衣、帽子、鞋,都可以放在这里,具备超强收纳功能,也能令女主人一见倾心。

金茂悦系120平户型
重庆万科招商理想城和城市花园项目,不仅是双玄关,而且在右侧做了独立的储物间设计。

重庆万科招商理想城129㎡户型图

重庆万科招商理想城洋房样板间

重庆万科城市花园136㎡ 户型图
③ 满足全生命周期的收纳需求
玄关空间不那么大的户型可以在玄关处设置一套具备成长性的多功能玄关,空间足够大的甚至可以在玄关处开辟一个储物间或者一个衣帽间,充分实现收纳。
融创通过大量的客户研究,研发了一套基于家庭需求的多功能独立玄关。
比如青岛未来壹号项目在玄关处做了“一柜两库”:
“一柜”:玄关柜,主要是日常的衣服、应季的常用鞋、随手拿取的包包和钥匙等小物品收纳。
青岛未来壹号“一柜” 动画示意图
“两库”:
winter800库:主要用作换季存储,可以存放换季衣物和冬季的被褥,轻松实现了北方居民收纳冬天厚外套的愿望。

青岛未来壹号winter800库 动画示意图
Smart1200库:专注于大型物品、非常用物品收纳,可以存放滑雪装备、冲浪板、高尔夫球杆、儿童平衡车、婴儿车等大件物品。

青岛未来壹号Smart1200库 动画示意图
杭州金地悦风华悦风华约125㎡户型总收纳量约12.8m³。

杭州金地悦风华约125㎡样板房玄关柜实景图
进门是奢侈的四门玄关柜,来算算这里能放下多少东西。中上柜能放12个大小收纳盒,下柜中央放12双鞋子,左下柜放两双高筒靴、两双踝靴。柜底镂空,还能再放8双常穿鞋,方便又通风。
右柜上部再放两个收纳盒,下面可放进3件长外套、3个包包、3把长雨伞、2把折叠伞,以及一个25寸行李箱。
03
豪宅项目玄关
刚需和改善要求大收纳空间,会有多个地方设置收纳空间,所以玄关就更加重视仪式感和空间感,注重景观和私密性。
杭州中海·望庐310平,单独设置玄关区,进一步过滤喧嚣。

杭州中海·望庐310平户型
对于玄关加设了洗手、消杀的需求,可以在脱下外套后,进行消杀,它还是一条独立的CW动线(cooking-washing)。
融创梅江壹号院252平米户型整体面宽,达到了惊人的约20.25米!除了超大面宽的客厅和主卧、独立次卧套房等等尺度上的阔绰以外,还有很多细节非常人性化。

融创梅江壹号院建筑面积约252㎡洋房户型图
后疫情时代,很多户型设计在玄关处设计了入户先洗手、消毒的空间,该户型独立玄关入户后,旁边设置了一个家政间。带上下水,里面可以放置洗衣机、烘干机,更能安装洗手盆。
颐和金茂府256户型衣帽间实景图
还实现了玄关、厨房两大入口的双归家动线:家政人员通过入户花园可直接进入厨房,与家人归家动线分开。

颐和金茂府约256户型玄关示意
豪宅户型的玄关还得起到优化入户动线、动静分区,主客互不相扰、保护隐私的作用。
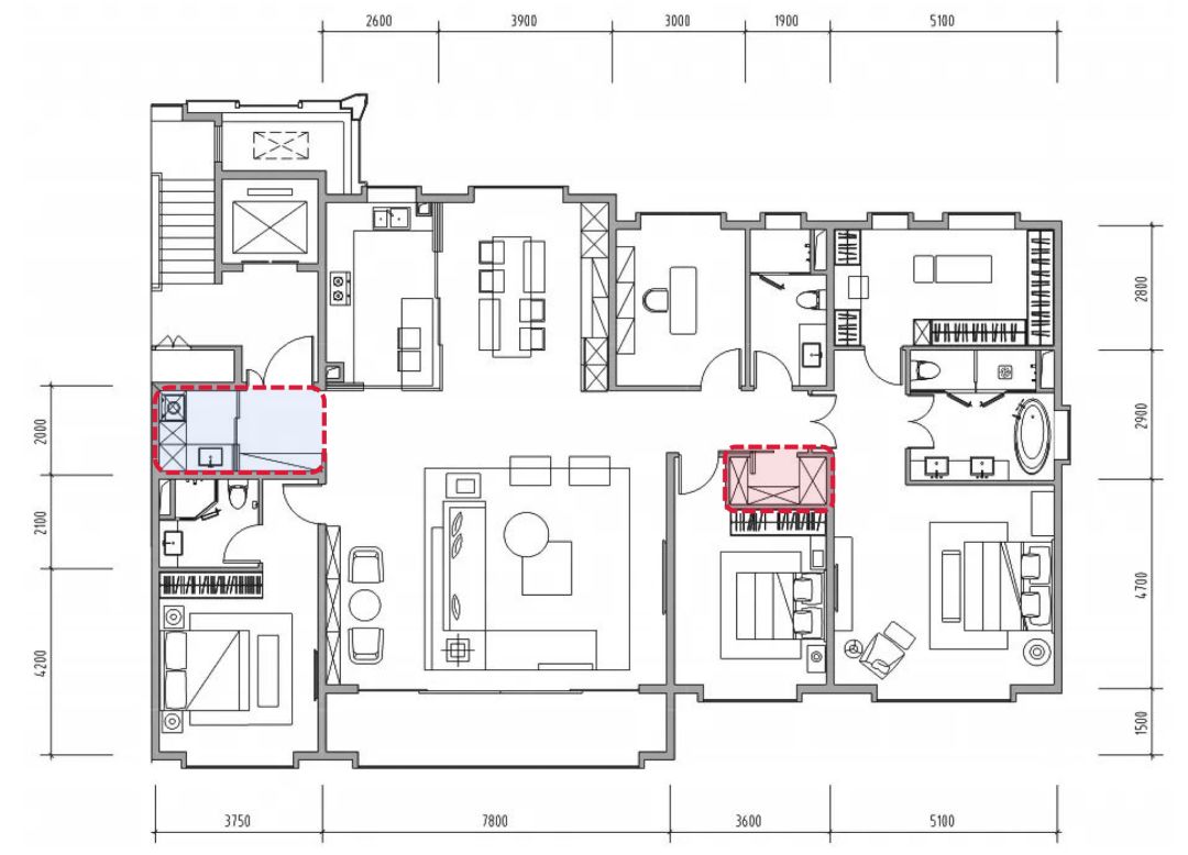
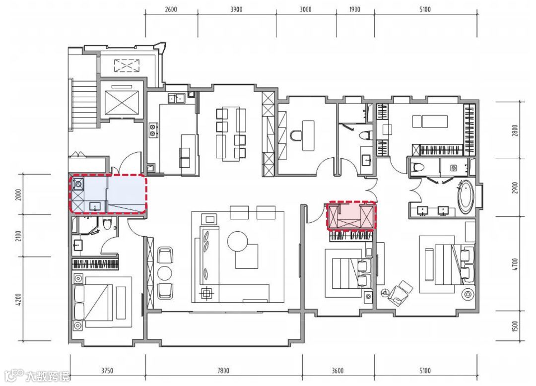
比如在锦江天玺建面约200平米户型中,一大亮点则是圆形玄关,四间卧室围绕玄关均匀排布,保证了每个卧室的私密性。
成都德商锦江天玺高层约202㎡户型 · 女王玄关
这种圆形玄关是从北美著名的纽约上东区流传出来的,也被称为“女王玄关”。锦江天玺在建面约200平米空间中引用这种圆形玄关,可以说是引领了成都豪宅户型之先。
对于不同年龄、不同生活作息的家人,通过玄关的分隔,各自的生活动线互不相扰。
成都德商锦江天玺女王玄关实景图
同样,贵阳·铁建城在其约240平米户型也采用了女王玄关,将四个卧室分居于两侧,注重私密性的同时还具有更强大的收纳功能。
贵阳·铁建城约240㎡户型
贵阳·铁建城女王玄关实景图
结语:
玄关虽然是整个户型中很小的一部分,但是也是设计中无法避开的空间。
可以说一个玄关就能就定一个户型的好坏!
本资料声明:
1.本文为建筑设计技术分析,仅供欣赏学习。
2.本资料为要约邀请,不视为要约,所有政府、政策信息均来源于官方披露信息,具体以实物、政府主管部门批准文件及买卖双方签订的商品房买卖合同约定为准。如有变化恕不另行通知。
3.本资料制作因编辑需要,文字和图片无必然联系,仅供读者参考;
《 招聘投放&作品宣传 》
搜建筑·矩阵平台
合作、宣传、投稿
请加小编微信:soujianzhu006
推荐一个
专业的地产+建筑平台
每天都有新内容
扫描二维码关注

微信公众号“搜建筑”(ID:sjz9999)







