▲ 更多精彩,点击“搜建筑” 关注即可
四开间朝南户型无愧为改善型项目中的王炸户型,四面宽的诗意生活,只有懂生活的人才知道!
四开间朝南户型是指整套户型中有四个房间南向开窗采光的户型(两卧室+开间超过6m的横厅/边厅也可认为是四开间朝南户型)。
今天给大家介绍的所有户型均为“四面宽”,来看几个128平的,把建筑面积控制在了130㎡之下,很好地在舒适度、功能性与总价之间找到了平衡。
1
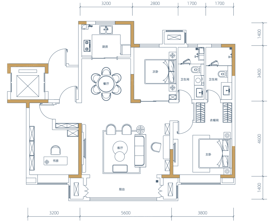
重庆龙湖云瑶玉陛一期的洋房,建面128平米,四房结构,整体约13.15米面宽。

重庆龙湖云瑶玉陛一期洋房
入户玄关的收纳量超大,整个公区LDKG一体化设计,面宽7.1米横厅+2.15米厨房,外连约9.25米的阔景阳台,舒适度和采光通风效果很好,所有的卧室均带飘窗。
2
宁波维科·水岸春晖高层128㎡,做到了四开间朝南+3+1房+双联阳台。

维科·水岸春晖高层
这个户型其实是4房,南侧3卧室,北侧可改造为一间卧室或书房。客卫做了干湿分离,U型厨房设计,餐厅带窗可满足采光通风。
3
天津中建壹方九里典型的大面宽、短进深,“薄透漏”的布局,3房,南向整体开间达到约12.6米,极力增强采光、通风,约5.6米横厅设计,实现了四开间朝南。

天津中建壹方九里
独立的双玄关设计。公区LDK一体化设计,整体面积约25.76㎡,厨房、餐厅、客厅无缝连接,方便家庭成员之间的沟通。主卧套房级设计,面积约24.28㎡。
4
杭州中南樾府128㎡的四房两卫户型,做到4开间朝南,南向面宽达到约13.6米,客餐厅6.8米面宽,横厅设计加上长阳台。

杭州中南樾府
这个户型最大的亮点还不是这个,而是整个采光面达到了10个,而且还带有5个飘窗,可以想象,这个户型舒适度还是蛮高的。主卧更是带独立衣帽间、独立卫生间。
5
扬州龙湖锦麟天序建面约128㎡户型一大的亮点,就是超大横厅设计,面宽达到约7.2米,南向约14米大面宽,只有在140平以上的大平层里才能看得到,做出了豪宅大平层的尺度感!

扬州龙湖锦麟天序

扬州龙湖锦麟天序实景图
6
万达御河湾128㎡的三房小高户型,电梯独立入户,户型特别采用边厅设计,超45㎡阔尺横厅,LDK一体化超大社交PARTY娱乐空间,将客厅、餐厅、厨房融为一体,满足所有多功能复合需求。超长15米,270°的观景的落地窗,犹如一幅画卷绵延展开。

万达御河湾
近30㎡奢级大面宽主卧套房,高配主卫、多功能玄关、独立储藏空间,每一处匠心设计均体现出居于大自然的奢享生活。

万达御河湾样板间效果图
7
重庆绿地听江左岸建面约128平的多功能洋房,主面宽达到了宽敞的12.6米,整个公区LDKG一体化设计,面宽约7米宽厅+面宽约1.95米的厨房,外连同宽阳台,这样的设计舒适度极高。

重庆绿地听江左岸
主卧拥有270°全景飘窗的开阔视野,能够覆盖绝大多数家庭的全生命周期的完善洋房,北向3间卧室也均带超大飘窗。
8
宁波大家·上宸建筑面积约128㎡的户型,做到了四房两卫,全明户型。四开间朝南,南向面宽到了约13.5米,书房、客厅、次卧、主卧均朝南而设。

宁波大家·上宸
南向双联阳台,约1.5米进深,近7米面宽,面积约10㎡。书房和主卧均自带飘窗,主卧带独立卫生间、独立衣帽间,私密性非常好;U型厨房配备了北侧开窗,更具通透感。

大家·上宸样板房实景图
为什么会选择这款户型呢?
欢迎在下方留言探讨
本资料声明:
1.本文为建筑设计技术分析,仅供欣赏学习。
2.本资料为要约邀请,不视为要约,所有政府、政策信息均来源于官方披露信息,具体以实物、政府主管部门批准文件及买卖双方签订的商品房买卖合同约定为准。如有变化恕不另行通知。
3.因编辑需要,文字和图片无必然联系,仅供读者参考
《 招聘投放&作品展示 》
搜建筑·矩阵平台
合作、宣传、投稿
请加小编微信:soujianzhu006
推荐一个
专业的地产+建筑平台
每天都有新内容
扫描二维码关注

微信公众号“搜建筑”(ID:sjz9999)


