▲ 更多精彩,点击关注“搜建筑”
Basic Balance,均匀杭州办公室设计 | 立木

均匀是一家总部位于杭州的建筑事务所,他们的新办公室是一个简洁而优雅、理性而自然的流动空间,供建筑师们创作、讨论、交流与实践。
考虑到建筑事务所繁忙的日常节奏,设计以木材、石材和金属为主要建筑材料,为建筑师们提供一个朴素大方的基底空间,为不同规模的小组合作预留可能。
▼均匀杭州办公室入口©朱清言

▼电梯厅望向前台©朱清言

▼走过入口门厅©朱清言
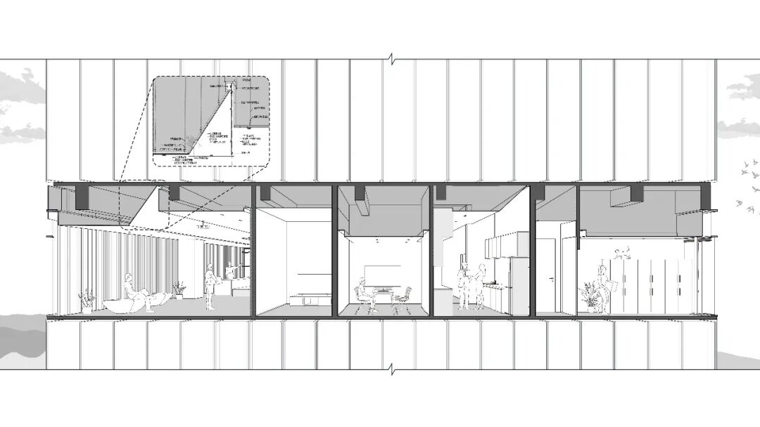
▼剖面©立木

为建筑同行设计办公室,我们首先关注的是他们的工作流程和设计理念,并希望用空间来向他们的同事与客户呈现独属于均匀建筑事务所的态度。
立木自己的办公室从建成后就开始了持续熵增的不可逆过程,随着李加油和李加饭两只猫咪的入驻,办公室逐渐稳定在无序和有序之间的混沌态。我们逐渐屈服于随性自由的环境,无意识的日常往往比有意识的创作更反映团队的设计价值观。
而均匀事务所的上一个办公室整洁而优雅,即使是在一个匆匆到访的上午,依然传递出一种强烈的秩序感和精致感,这种态度也反映在建筑师们对于空间秩序和材料细节的追求中。
设计以Basic Balance“基础均匀”为理念,为均匀的建筑师们的日常提供一个可靠优美的环境本体,让环境来适应人的需求,而非强迫使用者去适应环境。理性和自然是新办公室的关键词,材料质朴、手法节制、色彩淡雅、细节考究、植物繁茂,空间与团队在气质和风格上融为一体。
▼视线步伐控制©立木

▼空间尺度控制©立木

▼茂盛的植物©朱清言

▼从工作区望向公共吧台©朱清言

▼公共吧台用来摆放高频使用的材料和参考©朱清言
▼优雅大气的工作区©朱清言



▼材料墙©朱清言

▼爆炸图©立木

▼功能逻辑分区©立木

▼办公区走廊©朱清言

▼会议区走廊©朱清言

▼会议区与走廊之间的小窗©朱清言

入口门厅设计为展览、活动和临时空间,在家具布置上作为留白处理,事务所可根据需求重新构建临时性的空间,在这里进行作品讨论、设计分享、庆祝仪式等。
▼入口门厅©朱清言

▼入口门厅望向工作区©朱清言

▼入口门厅的窗前©朱清言

▼建筑平面©立木

项目信息:均匀杭州办公室
建筑面积:约1000m2
设计单位:立木 L&M
项目经理:郭岚
主持设计:刘津瑞、冯琼、邹明溪
设计团队:李佳妍 谢舜冰 程苗 管浩廷 李春瑶 王浩宇 邹承幸 王刘阳 方峻宇
施工图设计:一卜川
施工图团队:李新波 李宏业 王德升 曹玥雯 马晓飞
项目摄影:朱清言
设计顾问:申鹏
本资料声明:
1.本文为建筑设计技术分析,仅供欣赏学习。
2.本资料为要约邀请,不视为要约,所有政府、政策信息均来源于官方披露信息,具体以实物、政府主管部门批准文件及买卖双方签订的商品房买卖合同约定为准。如有变化恕不另行通知。
3.因编辑需要,文字和图片无必然联系,仅供读者参考;
—— 作品展示、访谈、招聘 ——
搜建筑·矩阵平台
合作、宣传、投稿
请加小编微信:soujianzhu006
推荐一个
专业的地产+建筑平台
每天都有新内容
扫描二维码关注

微信公众号“搜建筑”(ID:sjz9999)


