▲ 更多精彩,点击关注“搜建筑”
时下越来越流行一种新的设计方式——下沉式设计。
为什么很多开发商都会建造一个“下沉式”的空间?
它的魅力是在对空间进行合理应用的基础上,又打破了它传统的平面布局,通过高低的分隔手法来造景,形成视觉上的凹凸感。
跟一览无余的平面设计相比,含而不露的“空间加减”创意设计,增强了视觉上的美感,看上去别有一番韵味。
下沉式示范区无不体现出豪宅既视感:



当然,付出的代价还是蛮大的,那就是时间。这个开发商最金贵的东西,东原在这个项目里前期研发就投入了整整一年在选材用材方面也极为考究,价值数十万的日本黑松,黑山石,罗汉松等在项目内部也被广泛的使用。
穿过会所的螺旋楼梯、S形走廊,再到大面积曲面玻璃……目力所及之处,全部是各式的曲线美。所有空间围合出一个下沉的圆形大草坪,中心点缀着羽毛状的金属雕塑。

最酷的是,会所内设健身房、室内恒温泳池、瑜伽室、VIP会客室、妈咪厨房等功能,总体量近2000㎡,这是什么概念呢?

下沉式会所及VIP会客室、妈咪厨房实景

会所恒温泳池实景图
室内恒温泳池,也是近25米标准泳道。因为下沉庭院引入自然采光和通风,室内不会感觉“湿霉闷”。飘雪的冬日,也可以一边畅游,一边透过落地窗欣赏雪景。
虹桥玫瑰公馆,整个会所建面约1293㎡,在大虹桥范围内,都是稀缺的存在,一上来,就给你展现了这样的景观轴:约80米的景观主轴。

实景图
采用佛罗伦萨四季酒店的下沉式庭院,塑造的是法式奢华格调,与玫瑰的调性相契合。

两侧均匀栽种稀缺银杏树种,落地窗遥相呼应,地砖都是十几年的工匠老师傅手工一块块铺设好的,从水景,到植被、到石材板砖,都讲究对仗水平,从黄金比例去分割对称排布整个景观带
然后我们看到一圈落地玻璃窗,两侧分别是泳池和健身房,约300㎡的星光泳池,确实是惊艳到我了。

泳池实景图
郑州瀚海观象项目,一大亮点就是其8000㎡的下沉式庭院会所,休闲、运动、娱乐、餐饮全方位配套一应俱全,堪称郑州最大的豪华顶级会所。

瀚海·观象会所效果图
不同于其他的会所,瀚海·观象匠心独具地设计了让人流连忘返、独具一格、空间美学的下沉景观庭院会所。

瀚海·观象会所效果图
不同于其他的会所,瀚海·观象考虑到真正业主的需求,匠心独具地设计了让人流连忘返、独具一格、空间美学的下沉景观庭院会所,创新的社区空间来满足业主的生活和精神需求。
晶莹剔透的玻璃墙面,创建了独特的“流通空间”,让室内和室外空间相互呼应,融合贯通。

瀚海·观象会所实景图
沉下去的空间会给人一种亲切的包围感,更具交流氛围。也会让空间显得更大、更深、更有层次感,同时还可以让室内拥有更好的采光度和与众不同的空间视野。

瀚海·观象会所效果图
会所内配备有健身中心、高尔夫练习室、棋牌室、美式桌球、乒乓球室、室内恒温游泳池、图书馆、私人影院、咖啡厅、西餐厅、茶室、女子SPA会所、健康小屋、儿童书法室、琴房、家长阅读室、儿童娱乐区、智慧课堂区等。
② 全新的下沉园林景观,打造场景化空间,度假体验
成都锦麟天玺留出了约2.7万㎡中庭景观,主城豪宅中比较罕见。

锦麟天玺园区实景图
深圳龙华金茂府,地块内部几乎全部都是绿化:

项目在园林的打造不像其他项目用在显眼处,而是渗透到每一个不经意的空间跟转角。
比如说,整个地块的规模不是特别大,为了营造出绿化的层次感,地块内直接规划了一个内圆外方的下沉式庭院。

龙华金茂府下沉庭院中的12根柱子,外围是爵士白石材整石打磨而成,有弧度。
这种石材有自己独特的纹路,必须严格按编号拼接,才能让纹路对齐,呈现出自然的美。一块石头,从切割、打磨弧度,再到重新拼接,一毫米都不能差,你可以想像下选材、施工的难度。
包括这样规模的下沉庭院,不论在工艺上还是审美上都是不可复制的作品。

正弘臻,“观自在心”的追光云庭会所由于舍YU STUDIO创始人于昭先生亲自设计打造。整体有两部分组成,上方是由正弘TOP系臻品特有的光影回廊设计而成的社区会客厅和度假酒店式中心花园。
精致吧台、观景卡座,搭配以阳光草坪和水系点缀,给人一种活力与安静交织的力量。银色的金属线条与垂落的水瀑交相辉映,静坐于中,收纳满襟清风、诗意情怀。

下层为下沉式观景型庭院会所,镜面水景、星光瀑布以及艺术雕塑,营造度假酒店式的休闲氛围,为客户提供一个休闲娱乐之所。
沿着追光云庭的起承转合继续前行,是“简洁自然,意境悠长”的归家景观,美学与艺术的融入,“显与隐”的层次造境,处处惊喜的视觉打造,用高超造园艺术,让这曲径通幽的小道收藏了世界,也让回归的臻心,始终如初。
在空间上也有很多类似酒店式的设计,比如有非常震撼大尺度水景的礼仪前厅,优雅的下沉式双层会所,设计有服务休闲吧台、户外休闲卡座。
滨江华府占地约3.1万㎡,园林面积就高达约2.5万㎡,占比近80%。中央还下挖了整整约7米,构建出一座恢弘的下沉式园林。
当下的豪宅,若想增加园林立体感,通常会选择性价比更高的堆坡。起伏最多1-2米,纵深感有限。像滨江华府这样,挑空整整两层楼高度,相当震撼。

恒大·滨江华府园林实景
你可以穿过一层的悬空连廊,行走在树梢。也可以沿着扶梯走到下沉园林,进入城中秘境。
园林采用五层造景,引入100多种植物,宛如市中心的私家植物园。入口全冠移植的20棵香樟树,树龄都在50年以上。还有两棵百年“香樟王”,胸径达约1.2米。
举目可见,都是来自印度、挪威、土耳其的天然大理石。几乎所有雕塑、小品,都是纯手工打造。就连大理石栏杆的宝瓶,底座都镶嵌着黄铜。

恒大·滨江华府园林实景
园内黄铜就消耗了约38吨,整体造价达约1万元/㎡!
徜徉其中,你只会想起那句威尼斯谚语:“合乎美丽,则不惜重金”。
一位痴迷西方艺术的富豪,初次到访时,就被这座园林迷倒,上上下下流连了整整半天。让他雀跃的是,整座园林就像一部浓缩的西方艺术史。

恒大·滨江华府园林实景

园内的圣彼得双层亭,采用土耳其阿尔卑斯米黄石,原型正是罗马的坦比哀多礼拜堂。还1:1复刻了罗马圣彼得广场的海神喷泉、威尼斯广场的特莱维许愿池。
“这里像极了佛罗伦萨的波波里花园”。富豪一边参观,一边拿出手机照片对照。

恒大·滨江华府园林实景
在地下一层,与下沉庭院相连的“超奢级”会所已经呈现,总面积约5900㎡。按104户计,户均会所面积高达近60㎡,相当于每户都占有一间酒店大套房!
反观杭州,新晋市中心豪宅的会所,多在2000㎡以下。“浙江第一豪宅 ”武林壹号,会所约3000㎡,但有872户……
因尺度阔绰,滨江华府的会所围绕下沉庭院铺展,设置了星空恒温泳池、雪茄室、健身房、影音室、读书吧等,功能无所不包。

恒大·滨江华府会所星空泳池实景
在Technogym跑步机上奔跑时,透过落地玻璃,能看到庭院中许愿池溅起的水花。
保利融信·大国璟,设计了下沉式庭院,现已实景呈现。这不仅是健身爱好者的一片小天地,还是欢笑嬉戏的亲子空间,共享交流的邻里空间,从山水诗意到休闲娱乐,大国璟重新定义了中式景观的亲和力。

建发央玺,二进空间为圆形下沉庭院空间,象征着天圆地方的理念。泗水归堂:下沉庭院,象征着天圆地方的理念。泗水归堂,曲水流觞,这是一个致敬宾客的空间,也是从城市的场景过渡到小区内部的场景。水为财富,寓意肥水不流外人田,汇聚天下四方之财气。

◎泗水归堂-曲水流觞©刘国畅
透过弧形排列的岭南窗扇格栅屏风,走进圆形中庭是归家的第二步,庭院以圆形为基本建筑取形,通过挑檐和格栅形成灰空间,过渡会所室内和中庭。

◎岭南格栅屏风--博雅门©刘国畅
圆形庭院采用余荫山房缩龙成寸、小中见大、嘉树浓荫、藏而不露的造园手法设计,四面八方的水通过瓦屋面撒进圆形的庭院,和地面上镌刻的“玺”字形曲水流觞融为空间一体,青瓦、灰塑、曲水、桃木格栅都在细节处渗透着中式韵味与岭南精神,幽深广阔又无限佳境。一方圆院、一缕阳光、光阴四季、春华秋实。

◎博雅门©远洋
正对入口的是百鸟朝凤的灰塑内照壁,是用岭南特有手工艺:灰塑打造。这幅灰塑百鸟朝凤图,由灰塑国家级非遗传承人邵成村大师手工打造,单幅尺寸15X2米,是世界上较大的单幅百鸟朝凤灰塑。百鸟朝凤寓意:德高望重、众望所归。

◎百鸟朝凤©刘国畅

泗水归堂-曲水流觞©刘国畅
南京锦麟融誉移步下沉庭院,重峦叠嶂之中,通幽曲径,辗转之中,青草、芳花、浅溪、涌泉、虬松、拱桥、水帘、洞天,一幅幅画面交织成一片秘境森林。


空间用更原始的力场,让人产生出涉猎探奇之欲望。曲径掩于深处,沉醉不知归路,回首之中,晶莹剔透便隐匿于葱翠之间。繁忙的现代生活也可解忧散愁于此时此刻。

兜转掩映之间,回望售楼处,光洁的玻璃面上,天光云影,灯火扶疏。
在此刻,远离城市的喧嚣,在此地,我们已然塑造一种新的居住方式。




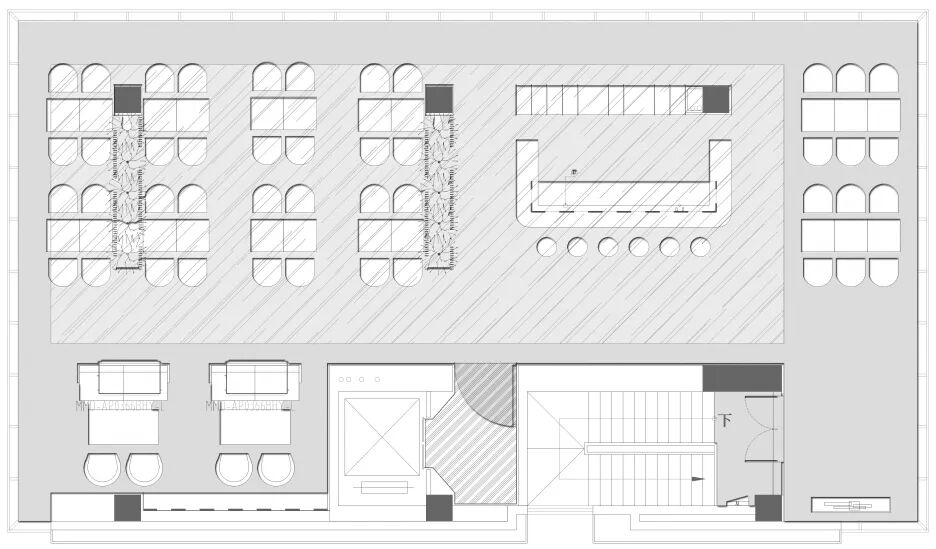
融创中原壹号院,“ 体验区设计策略:中轴书院结合下沉庭院实景体验 ”
体验区结合南入口、书院、下沉庭院设计,由地面接待门厅和地下会所组成,会所泳池、健身房等功能实景展示。

庭院空间小而精致,营造亲密空间,院内苗木选型精致。


会所下一层平面图
会所首层平面图
会所二层平面图
西安中国铁建西派时代,会所创新“山水盒子”的设计,取意华山,用金属描摹出山体层峦叠嶂之势,并用雾森系统打造出“云深不知处”的意境。
设计师取势华山,深谙山水绘画艺术,以山水为师,利用下沉庭院的空间,用近1000块航空金属板模拟页岩质感,营造出7座约3.6m~9m高低不等的山体。

“山水盒子”设计推演
这座山水盒子不仅“横看成岭侧成峰”,更有清泉飞瀑奔流直下、蜿蜒古松遍植其上的鲜活视觉表现。

“山水盒子” 实景图
小结:
下沉式会所带来整个社区的立体层次感是普通地面会所无法比拟的,无论是水景的构成,还是队列仪式感,甚至在交付后作为小型影院,或者是养生会所,那份安逸和静谧都会让未来的小区会所更呵护业主的日常生活。
本资料声明:
1.本文为建筑设计技术分析,仅供欣赏学习。
2.本资料为要约邀请,不视为要约,所有政府、政策信息均来源于官方披露信息,具体以实物、政府主管部门批准文件及买卖双方签订的商品房买卖合同约定为准。如有变化恕不另行通知。
3.因编辑需要,文字和图片无必然联系,仅供读者参考;
—— 作品展示、访谈、招聘 ——
搜建筑·矩阵平台
合作、宣传、投稿
请加小编微信:soujianzhu006
推荐一个
专业的地产+建筑平台
每天都有新内容
扫描二维码关注

微信公众号“搜建筑”(ID:sjz9999)
2021年·新产品方向
《 品牌地产 | 精品楼盘活动 》



