▲ 更多精品,点击关注“搜建筑”
山水间的保留与新生,南太湖山庄
gad作品
△ 鸟瞰图
因传苏轼在此种梅而得名的小梅山,为弁山余脉,海拔77米, 弁山自西向东一路逶迤由小梅山入太湖。梅山自古便是观赏太湖景色之佳地,登山顶“望湖楼”远眺湖光山色。山之东麓历史上为太湖著名渔港小梅口,今以月亮酒店闻名。
自上世纪80年代初以来,当地陆续开发建造了太湖山庄、交通宾馆、太湖疗养院、望湖疗养院、公安干校等建筑群落,逐渐显露出建筑风格、布局与外部观感层次不齐等一系列问题,“南太湖山庄”项目是对原址上片区域建筑的整合与提升,让这片承载湖州人乡愁记忆的土地以崭新面貌回归。

△ 场地区位
01/ 根植场地
南太湖山庄地块位于小梅山东坡,紧邻太湖岸线,地势西高东低,落差达45米。设计以最大限度保护山体的原则,以原有建筑基址为基础,减少地貌干扰与山体开挖,利用小梅山上既有“之”字形上山公共道路连接酒店各部分空间,组织各交通出入口。建成后的南太湖山庄总建筑面积约5.9万平米,共23幢建筑,各建筑组团彼此错落,依存于周围山林之中。



△ 区位总平面
02/ 随山就势
根据“大人流在山下、小人流在山上”的原则,将宴会厅、酒店大堂、贵宾楼依次分别设在9米、32米、54米标高处,这也决定了酒店大致的功能布局和走向。各类型客房则顺应地形,散落于周边视野景观较好的山地之中,总体布局呈现以酒店公区为中心,向两边延伸的态势。
△ 建筑布局以公区为中心延伸
逐级叠落的公区作为酒店最大体量的单体,呈“L”形面向太湖布置,最大限度水平延伸景观面,大堂被置于建筑的最高处,通过无边景观水池与太湖水面无缝衔接,主景面借月亮酒店为点缀,互为借景。自大堂按照景观条件依次而下分别为全日餐厅、泳池健身层、中餐厅层、会议层、后勤设施。客房区域错落安排于酒店公区两侧的山体之中,依据地形脉络形成相对独立又互相关联的群体关系,视野在每一层山地场域都得到了延伸。

△ 酒店大堂休闲区
03/ 融于山林
在小梅山原址内建筑高密度、碎片化的现状下,设计方案削减了原有建筑近1/3的容量,通过采取“水平向层叠”手法契合山体,塑造总体形态:建筑采取点式与条式相结合,且大多以单层为主,对于大体量建筑则通过强调水平向视线、增加屋顶绿化、弱化压迫感。
△ 建筑形式以条式与点式相结合

△ 采取点式与条式相结合塑造总体形态



△ 外立面颜色以湖石为基调
04/ 织补景观
对现有的自然与人工景观资源最大限度的保留是景观设计的主要策略:将用地范围内现存的胸径大、具有较高景观价值的树木,例如香樟、白玉兰、合欢、松树等完整保留,对于景观面不足的地方通过“织补式”营造手法进行恢复。
设计若干建筑物之间、内部大大小小的围合式、半围合式庭院,成为室内空间的延伸,引入自然光线和风与外部景观相得益彰。山地建筑的原有挡墙成为延续历史记忆的线索,新建挡墙在块面、色彩等方面均营造与之相协调的质感。



△ 内部庭园空间


△ 室外路径与植被形成阴翳的氛围


△ 公区沿着太湖景观面逐级跌落



△ 外立面颜色以湖石为基调
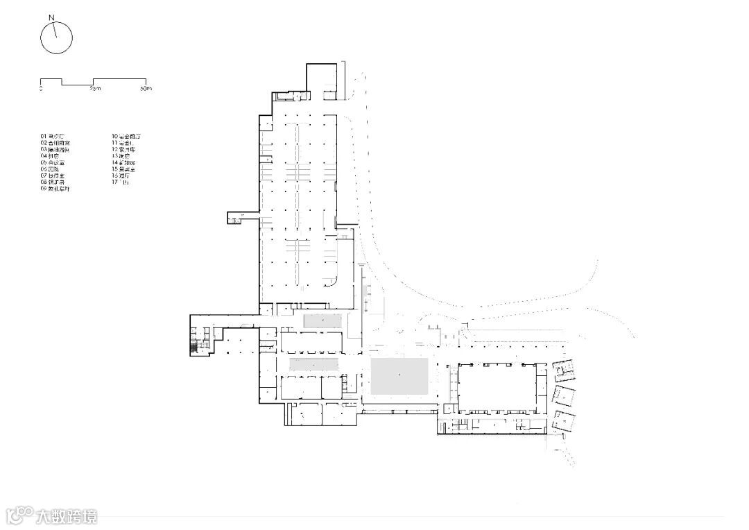
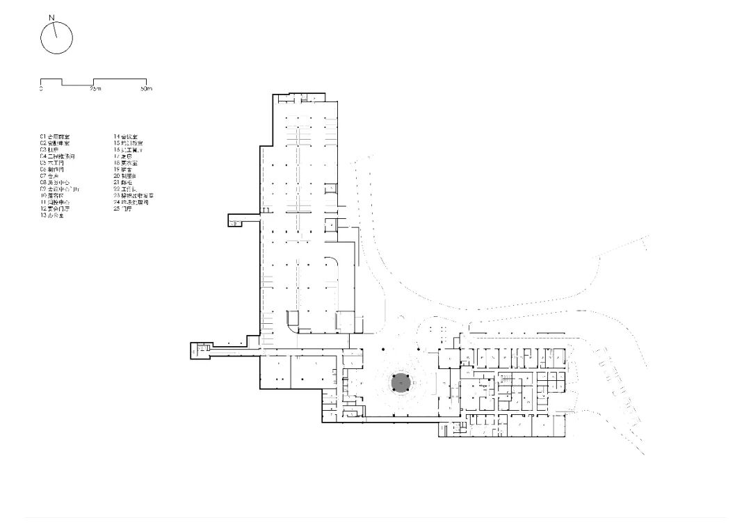
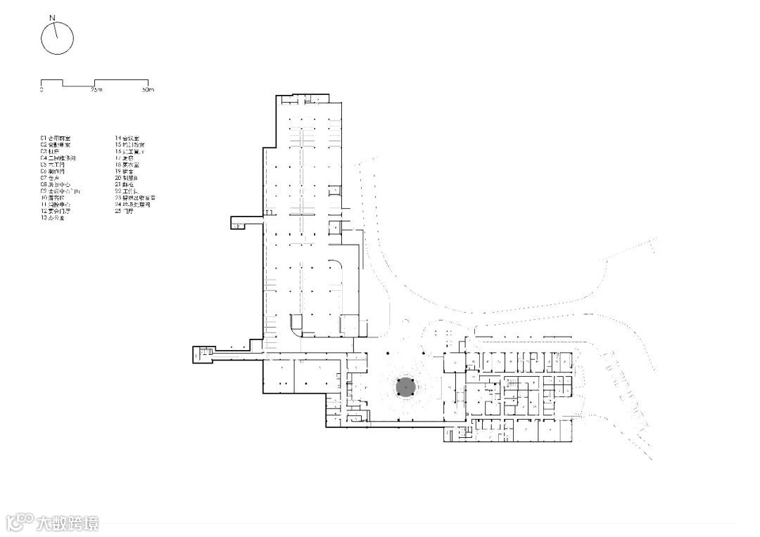
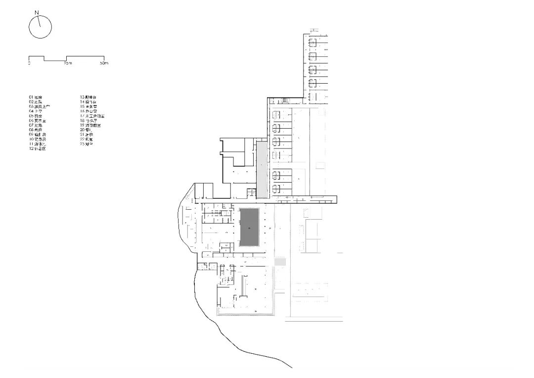
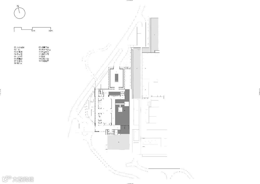
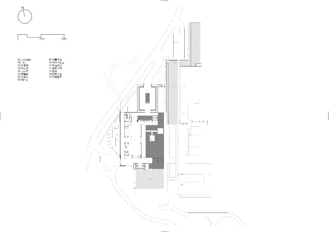
技术图纸

△ 地下二层平面图

△ 地下一层平面图

△ 一层平面图

△ 二层平面图

△ 三层平面图

△ 立面图

△ 剖面图
本资料声明:
1.本文为建筑设计技术分析,仅供欣赏学习。
2.本资料为要约邀请,不视为要约,所有政府、政策信息均来源于官方披露信息,具体以实物、政府主管部门批准文件及买卖双方签订的商品房买卖合同约定为准。如有变化恕不另行通知。
3.因编辑需要,文字和图片无必然联系,仅供读者参考;
—— 作品展示、直播、访谈、招聘 ——
搜建筑·矩阵平台
合作、宣传、投稿
联系微信:soujianzhu006
推荐一个
专业的地产+建筑平台
每天都有新内容
扫描二维码关注

微信公众号“搜建筑”(ID:sjz9999)


