▲ 更多精彩,点击关注“搜建筑”
幼儿时期应该是人生中最具想象力的时期,有没有一些让人眼前一亮的幼儿园,充分体现想象力和创造力!
如今的幼儿园设计不仅颜值越来越高,更是呈现出了独特的思考和新趋势,如总体规划前瞻化、颜值设计国际化、造型设计童心化、环境设计教育化、空间设计趣味化、室内设计人性化、室内室外无界化、色彩运用多元化、建筑施工技术化等等。
今天小编分享几个新颖别致的幼儿园优秀案例,希望能给想要做幼儿园设计的建筑师们一些启发。
为了减少操场对教学建筑造成的干扰,在以往众多学校设计中,操场经常被放置在远离建筑的角落,但是,放眼更大的维度,对于周边高密度城市空间环境来说,学校及操场恰恰是高楼林立的城市区域中难得的一片空间洼地。
因此,设计坚定地将运动场放置于整体地块中心,采取校园建筑围绕运动场布置的整体布局,把运动场作为学校学习空间构成中重要的一环。整体上运动场、多层建筑、高层建筑层层包裹,形成高低有致的空间态势,通过学校的合理布局改善周边城市空间环境。

△ 层层包裹的城市空间
资源共享策略
学校不仅仅具有其自身的教学功能,通过合理的共享功能布局和安全便捷的公共交通组织可实现学校与周边社区间的渗透,使社区成为学校的延伸、学校成为社区的资源。
本案充分考虑将部分校园资源向周边社区开放,整体布局上将生活运动中心、室外运动场地、接送等候空间设置于靠近东侧的次入口,创新中心结合北侧校园主入口布置。
在不影响学校核心教学区正常使用的前提下,方便外来人员出入与管理,最大化实现校园资源的社会共享。
为解决家长接送问题,在小学及幼儿园主入口退让出约500平方米的接送广场,家长可在接送广场临时集散。
广场内设置了可坐树池,方便接送家长老人休息,体现人性关怀,也为周边社区提供了一处纳凉交流的街角广场。
社会车辆可从北侧与东南侧进入地下社会停车库,车库内设置了家长等候区,方便家长有序接送学生。
通过港湾,家长等候区等设置,有序高效地组织接送,避免接送车辆影响城市交通。
建筑形体逻辑


从运动场、大台阶、架空平台到内庭院,再到屋顶阁楼活动平台,形成由低到高逐层抬升的多层级空间,为学生创造了丰富立体的室外学习交流活动场所,宛如“梦想舞台”。

△ 学习中心丰富的形体空间组合
△ 底层室外大台阶及架空层

△ 二层屋顶活动平台
主要教学区顶层采用了富有文化气息的坡顶建筑形式。坡屋顶在利用自身造型有效阻隔高架噪声、保证核心教学区安静的同时,也创造了优美的第五立面,使市民在高架及周边高层建筑上依然能感受到富有特色的校园形象。


△ 色彩醒目的校园第五立面
△ 富有文化气息的坡顶造型
功能空间设计

室内漂浮着各类岛状交往空间,与庭院形成相互渗透充满乐趣的学习环境。流动的平面布局结合灵活多样的家具布置,使教学与交往空间不再传统刻板,适合未来教育的发展趋势。

△ 开放阅览区

△ 教学区开放交流空间
室外阶梯式的多层级活动平台为学生创造了方便多样的室外交往场所。设计在核心教学区的屋顶为孩子打造了半室外坡顶阁楼及露天植物园。

孩子可以在此眺望、读书、玩耍,感受时间交替、洞察四季变化,留下难忘的童年回忆。无缝切换的室内外空间为学生创造一个头脑和身体都能够健康自由生长的场所。
设计摆脱高低学龄分隔的传统布局,将相近学龄的儿童相邻布局,实现混龄化教学,促进不同年级学生之间相互交流,共同成长。
放大走廊取代了传统功能单一的走廊,使得走廊复合交通、学习、交谈、储物和信息展示等多种功能。
教育理念同建筑设计的深度结合,为学校实现小班化、合班化、混龄化等不同教育新模式创造了无限的可能。

△ 社团教室
技艺高度融合
为了满足工业化设计的要求,校园地上建筑采用全钢结构体系,学习中心的教学楼外围总长度约300米无缝处理,所有外墙均采用开放式幕墙系统,地上地下所有室内功能空间全部采取精装修设计。
同时结合BIM设计、风环境分析、光环境模拟等一系列高标准、高要求的技术手段,提升设计品质,保证建造完成度。



项目地点丨浙江 杭州
班级规模丨54班小学+12班幼儿园
项目规模丨94150 ㎡
设计单位丨浙江大学建筑设计研究院
建筑设计丨范须壮、邝洋、朱恺、林肯、王豪、王溯、杨帆
结构设计丨沈金、钱磊、王俊、王成志、华旦、陈刚、占宏、余炜
机电设计丨陈激、郑国兴、任晓东、杨国忠、方火明、丁立、邵春廷、郭轶楠、黄正杰、邓毅、黄钦鹏、李向群、袁骁男、叶敏捷、牟宇
室内设计丨李静源、胡栩、贾茹、陈裕雄、郭思聪、田宁、王冠粹、罗宝珍、王丰、张慈、任志勇、王觅、丁怡、庞笑肖
幕墙设计丨白启安、杨东艳、陈栋、王继明、俞颢、章洁、曹东秋、黄丽、陶善钧、田乐、张默然
景观设计丨郭宏峰、乌姬娜、张倍倍、李文江、盛超赟、徐晖、王崛、刘双艳、高菁、李如诗
BIM设计丨张顺进、任伟、陈畅、韩雪、朱力、梁杰
建筑经济丨孙文通、周永杰
建筑摄影丨赵强、章鱼见筑
极简与融合
与村落环境相协调,融合周边环境,点亮村落活力。

◎用简白立面写意中式“白墙黛瓦”
本案位于义乌市大陈镇东塘片区的杜门村,杜门地处山区,松、竹、茶满眼皆是。村对面的鹅峰山,半山腰有瑞丰寺,乃唐朝所建,上世纪八十年代中期重新修缮,游客不断。杜门最著名的就是有座“杜门书院”,也作“傅氏宗祠”,建于清乾隆39年。
设计伊始,建筑师就明确了初衷与核心:创建具有清晰线条和可识别元素的建筑,力图将园所建筑与杜门村的现有环境相协调;通过丰富多样的活动空间为孩子们营造出欢乐运动的学习生活环境,赋予东塘幼儿园一个儿童友好且可持续的形象。
以朴素简洁的外立面建筑为背景,加上奔跑玩耍的孩子们组成一幅充满童趣的画面,融合周边环境,点亮村落活力。

◎园所建筑正面实景
方寸之间
这方寸之地,如何能把室内外活动功能完整完美的统筹安排?

◎地可建范围分析
幼儿园的场地大体为北偏东30°左右的正方形,长52m宽42m,基地用地面积共2205㎡。根据相距邻近建筑物6M的安全防火规范和不遮挡临近建筑物采光的基本原则,场地可建范围仅有1900 ㎡。

◎从二层平台往天空仰视角度
在这不足2000㎡的场地,建筑限高3层,除了要设置6个功能齐备的标准教学活动室和音体多功能厅、图书室、建构室、美术室之外,园所要打造“国学”特色教学教育理念,落实传统文化进校园,所以还要配置茶艺室、国学室。
此外,停车区、办公室、会议室等行政办公教室和晨检室、隔离室、教师寝室等辅助功能空间也一个都不能少。最最重要的是,还要有足够大的室外活动空间。

◎建筑立面虚实关系的处理
这方寸之地,如何能把室内外活动功能完整完美的统筹安排?设计策略总结起来为为四个字:“藏”、“露”、“虚”、“实”。

◎形体演变-打造层次丰富的活动空间
园区主入口“藏”于基地西侧,用高墙阻隔与行车道较短的距离;停车场“藏”在建筑内部一楼。
“露”的手法一则是将室外活动场地放置在阳光最充足的南侧;二则是设置架空空间,架空不仅丰富建筑立面,而且对于活动空间的开放有积极的影响。设计采用首层局部架空缩短进入主空间的路径长度,使得内部场地与户外景观相连,营造一个流动的半户外空间叙事,连接艺术与自然、融合驿动与宁静。

◎孩子和老师们在向阳一层活动空间活动

◎建筑体量由五个方块盒子组合变化

◎建筑立面处理分析
建筑风格以新中式文化为依托,用现代材料和现代手法演绎传承,与区域建筑风格大环境相融合。
建筑以五个简洁的方块盒子进行组合和形态变化,化解沉重与压抑感。因场地局限和活动场地向阳原则,建筑体量于场地西北侧集中式布局。

◎南侧活动空间近人立面区位窗洞
在建筑的体型和立面处理中,抬高女儿墙,使得建筑界面更加的整体;顶部女儿墙勾勒韵律天际线造型,呼应“白墙黑瓦”的新中式风格。局部明亮立面色彩,在方块凹接部分排布木格栅,巧妙地处理建筑外观的虚实关系。
近人立面打造趣味窗洞,增加面凸凹设计改善墙面的单一性,简单而丰富的立面于无形之中自有一种浓郁的韵律感,获得轻巧生动、坚实有力的外观形象。更多精品关注校园建筑
有边无界
营造流动的空间叙事,连接艺术与自然、融合驿动与宁静。

◎从入口门厅到室外活动场地流线分析
以架空大厅为原点,延伸出去可通达室内功能空间和室外庭院空间,自然围绕的庭院形成开放的集会场所。
架空活动大厅作为承贯内外的过渡地带,既是整个园所的主要门面,同时也是连接整个园所内部及户外活动庭院的中心枢纽。设计以“方为形,圆为正”为主题,以功能的形式将空间进行划分,在方形空间找到平衡。

◎园所活动室阳光满溢

◎园所垂直立体活动空间流线分析
孩子们似乎有着永远也撒不完的野,无止境追逐嬉戏的场景对他们充满着莫大的吸引和诱惑。而流线和空间之间始终存在着无法割裂的联系,有趣的流线设计能进一步激发了活动产生的可能。

◎孩子们在园所内肆意奔跑

◎孩子老师们在宽敞的架空层大厅玩游戏

◎一层架空与室外活动空间内外连通

◎二层活动平台举办园所节日活动
设计在垂直面上创造最大化活空间,一层室内架空大厅与户外场地隔而不断;同时,一层户外场地和二层活动平台的连通。活动空间进一步延伸,内外上下的立体流线自然地串出无数个环型奔跑流线,可无限穿梭循环的流线产生了,孩子们可以大显身手,尽情肆意奔跑。
返璞归真
用合适的设计、舒适的空间,注解孩子们成长的点点滴滴。
◎现代主流设计风格下注入本土情怀
项目名称丨义乌市大陈镇中心幼儿园东塘分园
项目地点丨浙江义乌
项目业主丨义乌市城市投资建设集团有限公司
设计单位丨上海思序建筑规划设计有限公司(建筑、景观、室内一体化设计)
主持设计丨王涛
设计团队丨戴庆辉、黄才、高崟、高畅、卢琴、龚雨华、司迪、陈静、屠夏青、王振、李京捷、张亮、陈捷、王利尹、张中瑛
合作单位丨上海都市建筑设计有限公司(建筑施工图)
用地面积丨2000㎡
建筑面积丨3000㎡
设计时间丨2017年
建成时间丨2020年
建筑摄影丨赵俊华•上海四茂影像
NAN设计的长嘉汇幼儿园位于重庆南岸区弹子石长嘉汇片区内。长江和嘉陵江交汇口得天独厚的地理位置为幼儿园提供了独特的景观资源。

设计师试图将每个教室与附属的基本设施塑造为独立的空间。通过这种方式,这些区域被安排在网格中,并自然地形成了三个庭院,每个庭院之间的边界,已经在很大程度上变得模糊。
场地位于裕华路东侧,北高南低,最大高差达到了10米。幼儿园拥有18个班级,建筑面积5400平方米。

同时,大面积的落地窗保证了孩子们活动的充足光照,将外部与建筑融为一体。"半开放式走廊 "将教室、天井和屋顶露台连接起来,为孩子们提供了大量的户外娱乐活动,让孩子们与自然互动,启发他们的智力。更多精品关注校园建筑

为回应场地高差并且减小建筑体量对街道带来的压抑感,沿街的教室单元沿地势跌落,形成台阶状的屋顶活动平台。
北侧高起的体量带给教室充足的光照和绝佳的视野。大面积的落地窗、连廊、以及内院使整个建筑呈现出通透的形象,在重庆阴霾的天气下脱颖而出,为社区带来了生机。

朝向江岸的凸窗,以优雅的形态打破了正交网格的无趣,把沿江景色引入教室。
为减少柱子对活动室空间完整性的破坏,支撑结构在此处变为弧墙,并使形体呈现出悬臂梁的受力特点,使结构, 形体与空间逻辑达到统一。
主持设计师:南旭、王轶超
设计团队:唐慧莲、杨慧玲、周鼎奇、王文彧,方晓、陈梦凡、黄麟
业主:重庆招商置地开发有限公司
施工图设计:重庆市设计院、中煤科工集团重庆设计研究院有限公司
摄影:刘松恺
项目年份:2018年设计-2021年投入使用
幼儿园入口 © CreatAR Images
冰厂田幼儿园位于前滩国际商务区滨江国际社区中,紧邻上海前滩华师大二附中。在保证室外活动场地和退界的要求下,幼儿园被设计成一个非常集约的三层建筑。更多精品关注校园建筑

幼儿园远景 © 陈颢

幼儿园入口 © 陈颢

幼儿园西侧 © 陈颢
小空间里的大楼梯
我们用一个类似大玩具尺度的公共楼梯把幼儿园的中庭空间建立起来。首层通过一个小型剧场把尺度放大,逐层收缩,到了三层最终通向屋顶庭院。


中庭楼梯生成

中庭楼梯剖透视

中庭楼梯一层

中庭楼梯一层

中庭楼梯二层© CreatAR Images

三层屋顶庭院© 陈颢


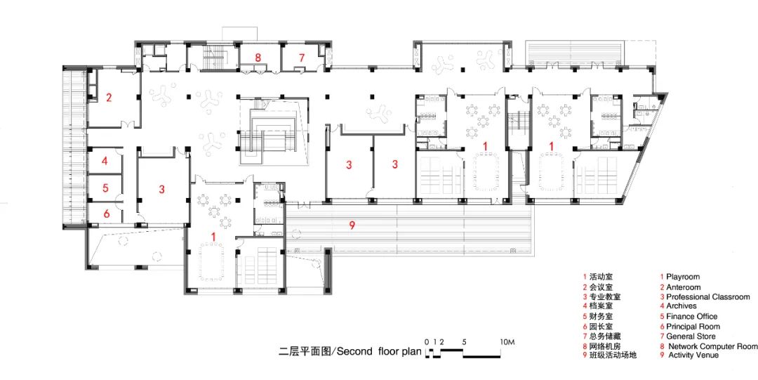
二、三层平面
天台上的城市风景
在一个体量已经极致紧凑的幼儿园中,我们把建筑的屋顶空间释放出来,让小朋友拥有一个可以活动的天台,去观察自己生活的城市。

屋顶天台

城市景框© CreatAR Images
内外互动的立面
建筑的立面上,我们设计了只有小朋友的身高才可以钻入的凹凸窗,有意的去区分成人老师和儿童的尺度差别,让小朋友在这里形成一个可以室内外互动的小领域。
立面墙身
室外活动区© CreatAR Images
天台上的城市风
教室

室内走廊

室内走廊

室内活动室© CreatAR Images
项目名称:上海前滩冰厂田幼儿园
主持建筑师:周蔚+张斌/致正建筑工作室
李硕+李佳/大正建筑事务所
项目建筑师:李乐(方案+扩初+施工图/室内设计)
袁怡(方案+扩初)
王佳琦(施工图+施工配合/室内设计+景观设计)
设计团队: 安炳详、樊明明、涂单单、刘志远、王梓瑜、陈依然
甲级设计院:上海浦东建筑设计研究院有限公司
建设地点:上海市浦东新区前滩地区55地块晴雪路、春眺路
建设单位:上海前滩国际商务区投资(集团)有限公司
设计时间:2015.10-2016.10
建筑面积:幼儿园5668㎡
主要功能:10班幼儿园
工程造价:0.7亿元人民币
摄影师:陈颢 CreatAR
项目位于玄武区核心区,玄武湖近在咫尺,紧邻两条城市干道,位置优势明显。
设计之初,设计思考如何在5400㎡的城市空间,创造一个能让孩子感受自然的温度自由探索城市的空间的童真部落。
◎概念分析图
幼儿园设计中采用U型平面布局,由7个的错落有致“容器”组合而成,每个容器作为童真部落的生活空间,不同主题空间和公共活动区域串联起来的“容器”将内外院空间限定出来。
◎鸟瞰图
十二个班级,构成了一个城市的小型微缩部落,我们希望在这个专属于儿童的空间部落当中,能够营造出一个可以由孩子们自己主宰,接触自然,无限探索的游乐空间,在无形的欢乐当中健康自由地成长。而这个专属的童真部落正是建筑师想象成为天真烂漫的孩童,从孩子的角度出发,考虑孩子爱玩的天性,送给城市的一份礼物。
◎功能流线分析图
梦想
DREAM
“小世界”
_
◎中庭剖透图
成人的世界充满高楼大厦,车水马龙,而一棵树,一个白色的树屋,一方浅水,这就是孩子们的小世界。建筑承载了功能,树屋承载的是梦想,迷你的形态使它富于想象,打开它也许会蹦出一只兔子。
围绕内院是室内的回廊空间,尽量多的玻璃面,将内院之景纳入其间。同时,在中心的建筑体量上,试图创造一个通畅的场所,模糊内外的界限,激发孩子的探索精神。可以想象在不远的将来,这里会充满孩子们欢声笑语,如同流动的血液,生生不息,这是一个起点,也是一个回忆。更多精品关注校园建筑
奔跑
RUNNING
“乐园”
_
◎活动空间串联
穿过中心的建筑,这里便是孩子们的专属乐园。利用场地与道路的高差,将折板的建筑屋顶形式运用到沿街市政绿化空间中,巧妙形成非传统形式的围墙。奔跑、攀爬、躲藏,儿童的乐园不是限定他们的行为,而是释放他们的天性。
◎屋顶活动场地
屋顶室外活动场地是乐园在空间上的延伸,天窗提供充足自然光的同时,让小尺度的“天空之城”激发孩子们的好奇心和想象力。
建筑在后场空间里,成为一个背景,强调实与虚的对比,透过玻璃面,视线可以到达内院的树屋,前场的廊架与广场,实现更多元的层次与空间的变化。更多精品关注校园建筑
停留
STAY
“退让”
_
幼儿园的开口朝向西侧,设计退让出一个方形的广场,作为接送小孩的等候区域,退让的广场与城市共享,不但减少密集的人流对城市街道的压迫,为建筑与街道之间提供缓冲,而且使整个建筑形成了富有变化的城市界面。通过水与植被做为幼儿园的隔断,建筑做为一个背景,搭建出一个连接城市的空间,孩子们的家长可以在这里等候与交流,透过廊架,隐约可见园中孩童欢快的身影。
城市
CITY
“品质”
_
两个城市界面,分别都为三个盒子,天际线与围墙线统一为折板的形式,变化中带有一些俏皮感。除此之外,建筑并未过分渲染幼儿园的建筑特性,色彩上采用大面的白色和少量的木色,营造一个质朴自然、现代简约的建筑氛围。
材料最终选用浅灰色岩态板,大幅轻质环保板材本身可以实现与门窗一致的模数。南向及内院界面加入了跳动的阳台,磨砂玻璃在阳光的作用下,增添朦胧的美感。更多精品关注校园建筑
◎城市面效果图
技术图纸
DRAWINGS
_
◎总平面图
◎一层平面图
◎二层平面图
◎三层平面图
◎立面图
项目名称丨南京星河World•南京星河幼儿园
项目位置丨南京市玄武区红山支路以北
项目类型丨幼儿园
业主单位丨星河地产华东区域公司
业主团队丨丁云麟,周辰,柏祥飞,刘佳琦,王文丰,高俊,唐永强,郭翼
建筑设计丨上海日清建筑设计有限公司
建筑团队丨熊星,林琼华,朱建林
景观设计丨上海日清景观设计有限公司
景观团队丨章翼 王静 侯建邦 黄雪龙 王东皓 李朋城 郑碧峰 袁佳宾 吴蓓莉
建筑施工图设计单位丨南京长江都市建筑设计股份有限公司
建筑幕墙设计单位丨浙江亚厦幕墙有限公司
室内方案设计单位丨集艾室内设计(上海)有限公司
景观软装设计丨上海午忱艺术设计有限公司
建筑面积丨4326.37M ²
竣工时间丨2019.06
专业摄影丨张虔希
图文整理/Eric
结语:
幼儿园是儿童的乐园,是儿童长身体、长知识的场所,幼儿园设计不仅仅是一个空间的存在,更会是被视为孩子们的“成长伙伴”存在。幼儿园建筑应创造适合儿童心理的优美环境,陶冶儿童情操,滋养儿童的心灵,使幼儿教育寓于娱乐之中,真正使用孩子们喜爱自己的房子,流连自己的乐园。因此,幼儿园设计的问题也更应该倍加重视,把握好幼儿园的设计趋势,才能做出更多有特色、有口皆碑的幼儿园项目。
关于幼儿园设计你有什么想说的
获取更多新内容、新知识
本资料声明:
1.本文为建筑设计技术分析,仅供欣赏学习。
2.本资料为要约邀请,不视为要约,所有政府、政策信息均来源于官方披露信息,具体以实物、政府主管部门批准文件及买卖双方签订的商品房买卖合同约定为准。如有变化恕不另行通知。
3.因编辑需要,文字和图片无必然联系,仅供读者参考;
—— 作品展示、直播、访谈、招聘 ——
搜建筑·矩阵平台
合作、宣传、投稿
联系微信:soujianzhu006
更多精品 登录 搜建筑网站
www.soujianzhu.cn

推荐一个
专业的地产+建筑平台
每天都有新内容
扫描二维码关注

微信公众号“搜建筑”(ID:sjz9999)






