▲ 更多精品,关注“搜建筑”

Edge是一座10层的办公楼,建在一个15米宽的地块上,是加拿大较大的太阳能墙之一。
它的560个光伏板提供了80%的建筑电力需求。这座建筑与城市的电网相连,在阳光明媚的日子里可以恢复多余的电力。
该设计结合了隔热三层玻璃和四层玻璃系统。开放的楼板被舒适的北方日光自然照亮。北侧的窗户不需要百叶窗,建筑在夏季几乎不需要人工照明。建筑的两端设有大型热分离阳台和太阳能屏,以控制阳光。
The Edge, a 10 storey office building, built on a single 15m wide lot, features one of Canada’s largest solar walls. Its 560 photovoltaic panels provide 80% of the building’s electrical requirements. The building is connected to the city’s power grid, returning excess power on sunny days. The design incorporates both insulated triple-glazed and quadruple-glazed systems. The open floor plates are naturally lit by comfortable north daylight. The north windows require no blinds and the building requires little artificial light during the summer months. The ends of the building feature large thermally-separated balconies and solar screens to control sunlight.

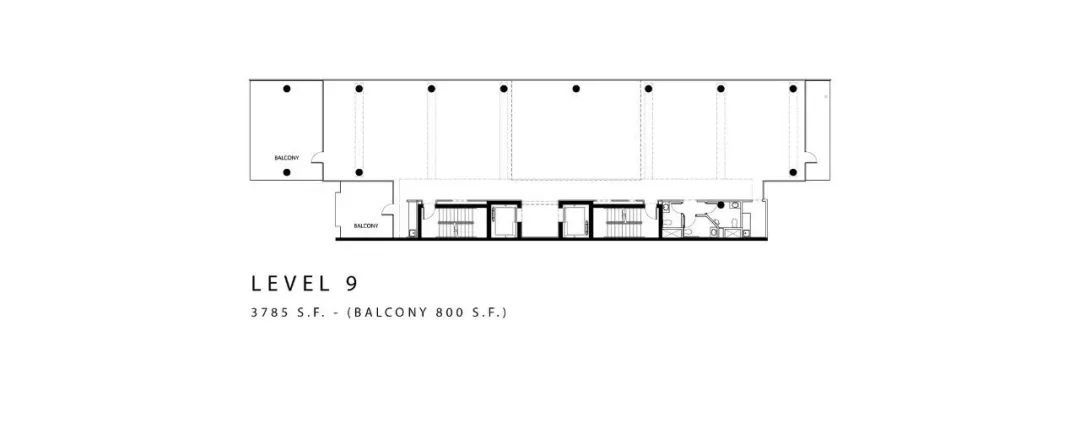
整个七层楼包含私人教育设施和顶层的私人办公空间。一楼与街道相呼应,在开放的大厅中有不断变化的弹出式用途。
18个地下停车场可以通过隔壁的公寓停车场进入,消除了地面上破坏性坡道的需要。
The development contains private educational facilities throughout seven floors and private office space on the top two levels. The ground floor engages the street with changing pop-up uses in the open lobby. Eighteen underground parking spaces are accessed through the condominium apartment parkade next door, eliminating the need for a disruptive ramp at ground level.

太阳能墙提供了可持续的好处,是类似填充条件的一个原型。在这里,毗邻南部的建筑是一个最近重新利用的仓库(也由Dub Architects设计),没有预期的再开发50年。
然而,太阳能墙的投资回收期只有5-8年,这使得该原型在类似的地点非常可行。太阳能墙每年将减少26吨进入大气的二氧化碳。
The solar wall provides sustainable benefits and is a prototype for similar infill conditions. Here, the adjacent building to the south is a recently repurposed warehouse (also by Dub Architects) with no anticipated redevelopment for 50 years. However, the solar wall has a payback period of only 5-8 years, making the prototype highly feasible in comparable locations. The solar wall will save 26 tonnes of CO2 from entering the atmosphere annually.


灵活的室内楼板容纳开放的规划或多达10个封闭的办公室沿北墙。极简主义的室内设计使建筑成本非常低。
热泵和照明设备沿核心区域的吊顶提供畅通暴露的混凝土吊顶,方便拆卸。空气管道沿横梁供应,地板电气插座由浇筑混凝土地板内的管道提供。










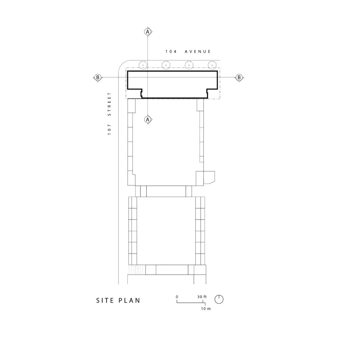
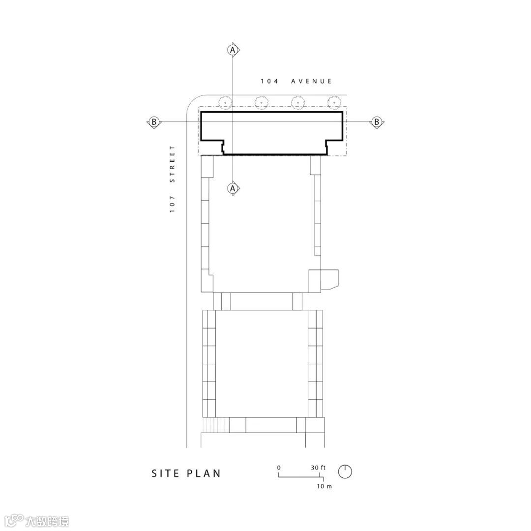
区位图

地面平面图

1层平面图

2层平面图

4-8层平面图

9层平面图

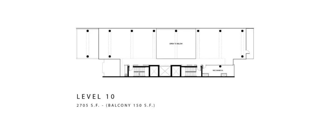
10层平面图

北立面图

西立面图

北立面图

东立面图

A-A剖面图

B-B剖面图

建筑师:Dub建筑事务所
地点:加拿大
面积:5250平方米
年份:2019
本资料声明:
1.本文为建筑设计技术分析,仅供欣赏学习。
2.本资料为要约邀请,不视为要约,所有政府、政策信息均来源于官方披露信息,具体以实物、政府主管部门批准文件及买卖双方签订的商品房买卖合同约定为准。如有变化恕不另行通知。
3.因编辑需要,文字和图片无必然联系,仅供读者参考;
—— 作品展示、直播、访谈、招聘 ——
搜建筑·矩阵平台
合作、宣传、投稿
联系微信:soujianzhu006
推荐一个
专业的地产+建筑平台
每天都有新内容
扫描二维码关注

微信公众号“搜建筑”(ID:sjz9999)


