▲ 更多精彩,关注“搜建筑”

建筑效果图
下面一起来看下它究竟有何魅力?
在产品户型不断追求舒适性升级的今天,大面宽户型的优势不用多说。项目建筑面积约100㎡-175㎡户型,比肩一线大平层豪宅主流的设计方式——大采光面、大尺度宽厅、南北通透、开阔观景视野、舒适享受……精粹多重空间优势,打造迭代升级的人居范本。
下面我们以项目建筑面积约140㎡户型重点看下:
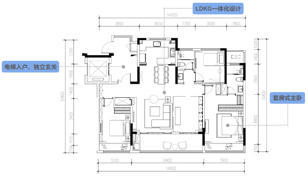
① 大面宽、短进深,更大化采光、景观面
约140㎡、3室2厅2卫户型,整体约14米超大面宽,短进深,不仅视野更宽广、采光更充足,更是处处彰显居住品质。
② 独立电梯入户+超大玄关,独具归家仪式感
独立电梯入户,可实现内外双玄关设计,超大玄关不仅提升住户归家感,也增强储物空间。双倍储物的组合玄关空间收纳功能强大,鞋柜可以轻松实现超过50双鞋子的收纳量。

约140㎡户型 示意图
③ LDKG一体化,家庭生活多元化、社交化
约140㎡的面积更是感受到了如同170㎡户型的奢阔:约6.9m超大宽厅+同宽大阳台,LDKG客餐厨阳台一体化,打造了约52m²的多元公共空间,家庭聚会、社交Patty通通满足,平日各空间互相独立又能相互交流,家庭氛围更融洽。
趣味性、社交化厨房空间也是一大亮点,开间约3.65米,面积将近9㎡,大空间大大增加了家庭成员之间的互动,让厨房变成情感交流的烹饪空间。
④ 全功能主卧套房,居住更舒适
在打造了约6.9m大面宽横厅的基础上,并没有牺牲卧室空间,给到了主卧足足约21㎡大尺度空间。套房式主卧配备了步入式衣帽间、全明主卫,还有宽景大飘窗,私密舒适度更高。
户型设计精妙的同时,在精装上的搭配也是诚意满满。不仅中央空调、地暖、新风等大件一应俱全,更是甄选博世、汉斯雅格、大金等一线品牌。
当我们谈论一座人居坐标时,其实谈论的是一种生活方式,一种当代塔尖追求的臻贵的生活方式。众多世界知名的度假酒店在都市中营造的宁静美学场域,给忙碌的人群一处疗愈身心的领地,成为当代高净值人士追随的理想。
项目示范区所见即所享,不仅仅秉承着隐奢的建筑美学主张,更承载了有真实内容的生活空间。汲取代表宁静居住的城市奢隐造诣,遵从度假酒店设计理念和空间表达,为当代高净值人群探寻一种全新的生活方式。
【 入 • 酒店式环岛无雨落客区 】
入口精致的酒店式环岛无雨落客设计,宛如身在酒店,尊崇感十足。社区大门选用带有“高山流水”意境的石材加金色铝板,仿古礼制,中轴对称。

实景图

实景图
简约而大气的建筑美学,大量的线条搭配,赋予了大空间的层次变化,层层叠水犹如山涧瀑布一样流入池中,急缓相涧,呈现出水落大地般的精彩,营造让人平和安静的美学氛围。

实景图
入口内部由景墙形成回廊空间,配合绿植小品构成场域。中央设置灵动的圆盘水钵,围合感强烈,泉水从圆盘四面涌出,似正进行着一场神秘的典礼,向不朽的生命致敬。

实景图

实景图
社区大堂立面设计以涵碧楼风格为蓝本,用深浅两色的石材与香槟金色搭配,打造大区独具一格的门户昭示面,同时为住客营造尊贵的酒店式落客体验。

实景图
【 思 • 对景庭院空间 】
再次移步,便是进入了另一个世界。干净的体块,简洁的墙面,通透的玻璃,构图出如诗如画的对景空间。

实景图
庭院中所传达出了禅意与侘寂,它更是倡导出了一种生活方式,即身体力行地经过漫长磨砺与来回探索,而获得一种洗练之美。
【 穿 • 转折庭院空间 】
接着向前,将穿梭于转折庭院空间,采用景墙、格栅等建筑化语言构成清晰边界,划分出多变的小空间, 并与下沉庭院构成视线联系。

实景图
白灰色仿石砖墙面,结合人文、艺术,细节之处更是将景观的意境之美表现的十分彻底。
实景图
庭院中的金属雕塑温和优雅,简约的艺术形体里包裹着错综复杂的结构线条,轻柔地与周围环境融为一体,引人思考,令人愉悦。
【 享 • 下沉式庭院空间 】
穿梭之后步入下沉式庭院空间。

实景图

项目打破传统会所单一的功能,以匠心独运的下沉式庭院会所开启空间美学、圈层社交的全方位延伸,下沉庭院空间更增加了整个社区的立体层次感。

实景图

在风格调性上依旧贯彻了涵碧楼酒店式的考究感,气氛静谧、雅致。坐于水畔,林下轻谈,水岸结合廊架形成半围合的空间。镜面水景的‘静’与前场跌水的‘动’形成了不同空间的体验转变,实现景观连续性的同时,呈现空间的动态变化。

实景图
功能上充分考虑了客群的圈层社交特点,设置雪茄吧、台地花园等独特的主题空间,满足其会客交友、饮酒品茶的使用需求。

实景图
【 塑 • 城市形象界面 】
示范区设计打破传统的围合型空间结构,在寸土寸金的老城中心,沿城市道路,住宅做了更大程度的退让,并依次展开了四重空间:活力多元的街角公园、精致且丰富的商业及配套界面、酒店式归家的入口广场以及与城市有机融合的林荫空间。重新塑造了老城的城市形象界面,同时也丰富了客户的体验。

实景图
建筑以出挑的、吸引眼球的语言凸显在人们的视野中,静而不闭,张而不扬,质而不俗。

实景图
可以看到,整个示范区空间概念,通过空间、材质、光影等不同的细节表现,追求“国际雅奢大宅”的质地和美感,让居住于此的客户可以感受到更精致的生活方式。
礼,世家名门居住哲学的第一道讲究;序,尊贵姿态中不可或缺的大家风范。在中国人的礼序传承中,归家入户的规制、礼仪彰显着一个家族的家风与名望。

规划生成 示意图
项目整个规划采用半围合的规划手法,呈现“通透、疏朗”的建筑排布形态:公建化的高层立面围合城市界面,彰显社区的格调及品质;低密静谧的洋房组团围绕礼仪中轴展开,迎合当代望族名仕的精神与生活价值观需求,以此营造一种低密的舒适居住空间体验。
在大区景观的规划策略上也是颇为深意。
项目所在位置为丝绸厂地块,大区景观规划以现代设计手法重塑场地内涵,提取丝绸的编织感,结合轴线布局,打造整体礼序感场景结构。

景观规划 示意图
通过“一轴三进院十五馆”的整体景观布局,仪式感十足,营造多种生活场景交织,构建安宁又惬意的生活体验。
进入社区,庭落礼序铺展而来:
【 一进院 • 礼遇樾庭 】

景观效果图
一进院落空间作为归家礼序庭院的第一界面,完成了从城市界面到居家界面的情境转换。这里布置叠水与绿化矮墙组合成的延展界面,结合两侧的休闲会客平台以及自然化的户外拓展模块共同搭建,营造出大气的归家仪式感。
【 二进院 • 漫樾客厅 】

景观效果图
二进院为精致的院落式会客空间,在阳光草坪、雨水花园、森活剧场等场景下,共享邻里交流,在人性化细节之间,享受自然的同时感受尊贵的礼仪。
【 三进院 • 望水迎樽 】
景观效果图
三进院落空间,礼序草坪与尊享亭廊灵动穿插其间,既保留一定私密性又相互联系,让景观成为协调与衬托生活情怀的载体。

景观效果图
三重院落通过收与放、显与藏、张力与内敛的运用,层层递进引人入胜,在私密又温馨的归家空间里,满足社交与观赏的共同需求。
【 十五馆 • 生活聚场 】
整个社区以交流为中心设计理念,充分联结人与自然,三重院落空间总体精心布置休闲会客、廊架台榭、中庭草坪、私享花园、活力环健康跑道、漫步公园、全民健身、童梦乐园、植物迷宫等十五馆生活聚场,打造邻里之间链接情谊的美好区域,欣赏园中曼妙风景,让身心重归自然。

景观效果图

景观效果图
细部设计亦贯彻“丝绸”元素,如,以探索自然为价值主张的儿童互动场所,导入IP点“丝绸”打造器械互动为主的主题飘带,串联交织在儿童活动场地中,满足儿童的玩乐功能诉求。
景观效果图
除了打动人心、流连忘返的“景观”外,外立面也是匠心十足。
日本著名建筑师安藤忠雄曾说过:“建筑一半依赖于思维,另一半则来自存在和精神。”如何通过一个赏心悦目、独特新颖的外立面,寄托出居者的精神和思想内涵?
① 大道至简的公建化立面
项目充分考虑到高净值人群的需求,且为了呈现与项目品质定位相匹配的产品形象,设计以严苛的高标准,打造公建化立面。
整体采用简洁线条勾勒出清晰的建筑轮廓,使用大面积的玻璃营造干净纯洁的建筑立面,淡化了建筑与自然的界限,创造出仿佛人在自然中,轻松悠闲的生活氛围。

建筑效果图
大道至简,越是简约,越蕴藏着复杂的工艺与用心。
② 水平+竖向线条,突出建筑层次感、立体感
立面设计用水平线条表达出建筑体量的轻盈感,为避免水平线条表现单一,加之独特的竖向线条,突出精细化和肌理感,形成挺拔而立体的层次感。

建筑效果图
③ 窄边框+大面积玻璃,采光、通风、视野效果俱佳
在立面风格、形体、选材之外,更加大立面的精致度:极简窄边框+大面积玻璃面令建筑整体质感更加通透,而且采光、通风、视野效果也更好。
④ 多元材质与低饱和色彩,强调立面质感
low-e玻璃、金属铝板、格栅、仿石砖等多元化材质,搭配低饱和度沉稳色调,塑造出宁静、神秘且温润的质感,在时光中历久弥新,着重突出了建筑本身的记忆性。

建筑效果图
⑤ 屋顶精细化设计
洋房产品增加官式坡顶的设计(类似古人的官帽),融入更多的中式符号,增添仪式感的同时确保屋面防水隔热性能更高。

建筑效果图
此外,更是积极调整坡顶、屋檐与屋身建筑的比例,将中式大屋顶与线条简洁对称的立面相融合,通过线条的排布、视觉的横向延伸、多层次轴线对称设计,使建筑庄重典雅,充满和谐美。
此外,项目的亮点还有好多,比如做出艺术馆境界的公区:地库、地库大堂、入户大堂、电梯厅等,在这里就不一一细说了。
地库效果图
总之,芜湖万科樾江望项目,在万科“好产品、好服务”的思想主导下,无论是从规划、立面、景观、会所、户型及社区公共空间等等,每一面都高度呈现了现代奢居生活的独特气质,营造了新的生活范本,重新定义了高端隐奢的生活体验。
结语:
好的项目绝不只会在竞争红海里拼价格,而是努力拼“气质”,拼“内涵”。毫无疑问,芜湖樾江望项目,以万科丰富的设计经验,全球化的视野,专业化的设计功底,为新改善人群量身定制国际典藏风范,雕琢出又一新标杆之作。
项目档案
项目名称:信达|万科 樾江望
项目地点:安徽省芜湖市
建筑面积:24.9万平方米
设计时间:2021年5月
建设状态:已动工
业主单位:芜湖信达房地产开发有限公司&芜湖万科房地产有限公司
规划/建筑设计单位:上海柏涛建筑设计有限公司
规划与建筑方案主创:邵鑫
示范区设计团队:陈凌、张磊、于凯文
大区设计团队:谈磊、乔湘桐、蔡巍玮、郭鹏

