▲ 更多精品,关注“搜建筑”

绿色住宅是对20世纪60年代废弃混凝土框架建筑的创新、可持续的回应,为伦敦东部注重环保和道德的小企业提供了超过7000平方米的负担得起的办公空间。可持续建筑吸引以可持续为重点的企业作为租户,这是Ethical Property的核心理念。
这座20世纪60年代的建筑已经废弃了一段时间,但是混凝土框架和剥离的砖外墙处于合适的条件下可以再次使用。从街道的建筑线后退,一条未被占用的土地一直延伸到前面,这就造成了剑桥希斯路(Cambridge Heath Road)沿线的街道缺乏存在感。


绿屋的设计是为了尽量减少建筑在建造和运营过程中对环境的影响。一系列工程木材扩展使混凝土结构重新焕发活力,并提高建筑结构的性能,使其适合作为现代办公空间使用。


绿色房子体现了真正可持续建筑的概念,在建造过程中节省了2200吨二氧化碳。保留现有框架而不是用混凝土重建可节省400吨二氧化碳。通过使用木材而不是混凝土,进一步节约了400吨二氧化碳,另外1400吨二氧化碳储存在木结构中。
此外,可持续性设计的交付量减少了80%,使用中的二氧化碳排放量比概念基准减少了一半,能源效率提高了50%。
The Green House exemplifies the concept of a truly sustainable building with 2,200 tons CO2 being saved during the build. Keeping the existing frame rather than rebuilding in concrete saved 400 tons CO2. A further 400 tons CO2 was saved through the use of timber rather than concrete, and a further the 1,400 tons CO2 is stored in the timber structure. Additionally, the deliveries to site were reduced by 80% and the sustainable design halves CO2 emissions in use from the notional benchmark and achieves a 50% improvement in energy efficiency.


这座建筑是现代乡土设计的典范。材料和色彩都是简单而诚实的,旨在将它们对环境的影响最小化。中央玻璃中庭和前玻璃立面在中庭顶部创造了堆栈效应通风口,该通风口根据内部温度的变化自动打开。
The building is an example of modern vernacular design. It’s form responds to its context and orientation The materials and colour palette are simple and honest, designed to minimise their impact on the environment. The central glazed atrium and the front glazed facade create stack effect vents at the top of the atria which automatically open in response to the internal temperature.


建筑由木材(一种可再生资源)建造而成,扩建部分和楼梯将建筑的碳足迹最小化。该结构是交叉层压木材(CLT)和胶合层压木材(胶合木)的混合。没有下横梁,可以灵活地细分办公室,以满足租户的需要。
混凝土框架和CLT扩展在结构上是相互独立的。在两个结构的连接处有一个运动关节,可以让它们独立运动。特色楼梯脊柱墙连接到混凝土框架,让它垂直移动,而不是水平移动。
Constructed from timber, a renewable resource, the extensions and stair minimise the building’s carbon footprint. The structure is a hybrid of cross laminated timber (CLT) and glued laminated timber (glulam). There are no downstand beams, allowing flexibility in subdividing the offices to suit tenant’s needs. The concrete frame and the CLT extension are structurally independent of one another. A movement joint where the two structures meet allows them to move independently. The feature stair spine wall is connected to the concrete frame allowing it to move vertically but not horizontally.


所有服务都是公开的。省去了石膏板和吊顶系统,最大限度地减少了材料的使用,同时使服务的更换变得快捷方便。外部包层是完全透气的,实木纤维绝缘的自着色石灰渲染。不需要粉刷立面,也不需要定期维护。
低用水量的卫生洁具最大限度地减少水的消耗,并通过低能耗的灯具配件减少能源的使用。屋顶安装的光伏发电为公共区域提供电力,屋顶上的野花草地为这个城市内部的场地带来了生物多样性。







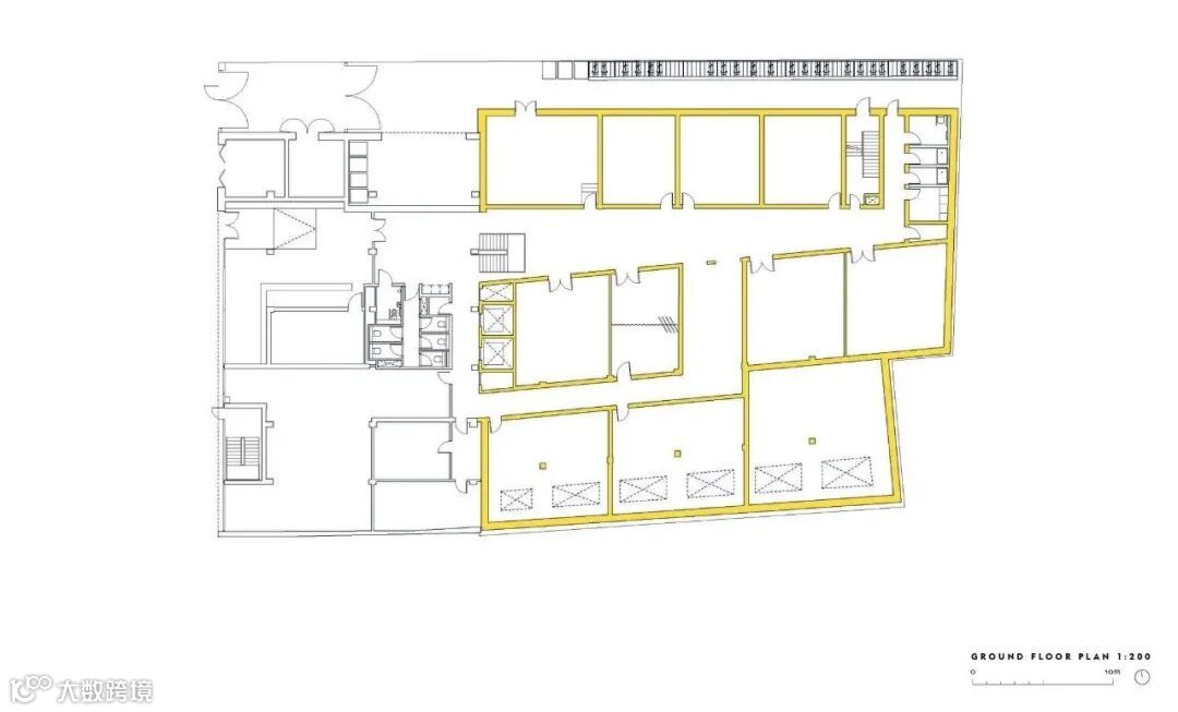
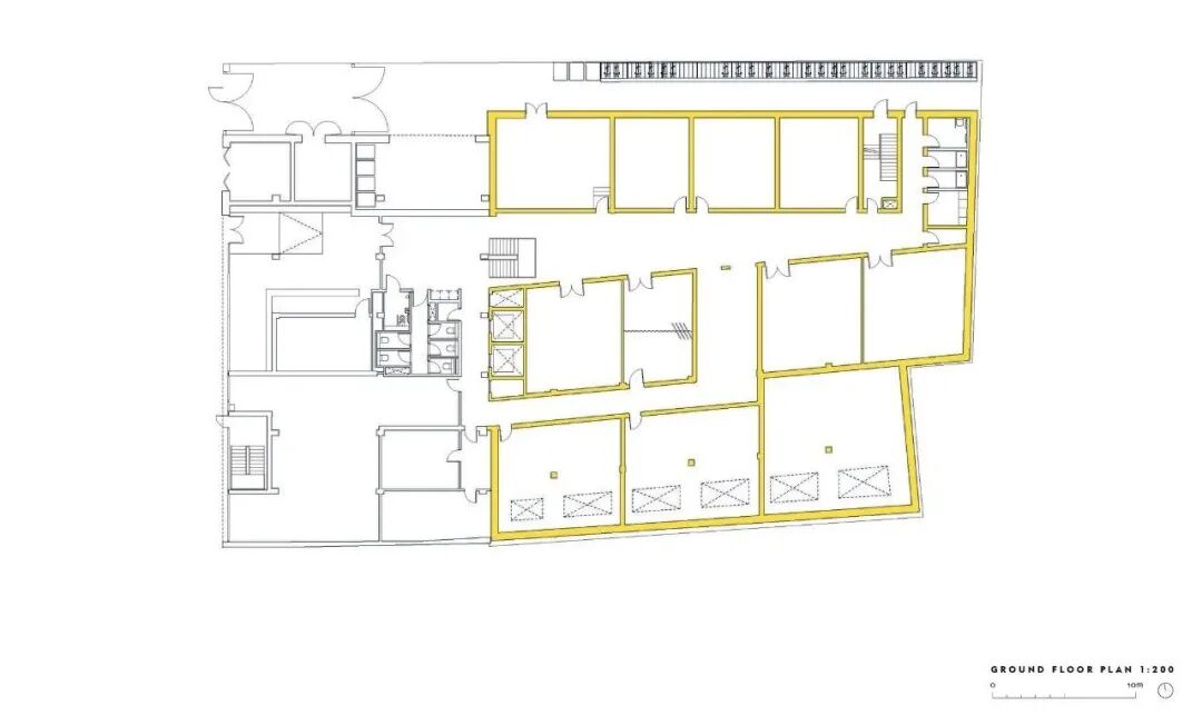
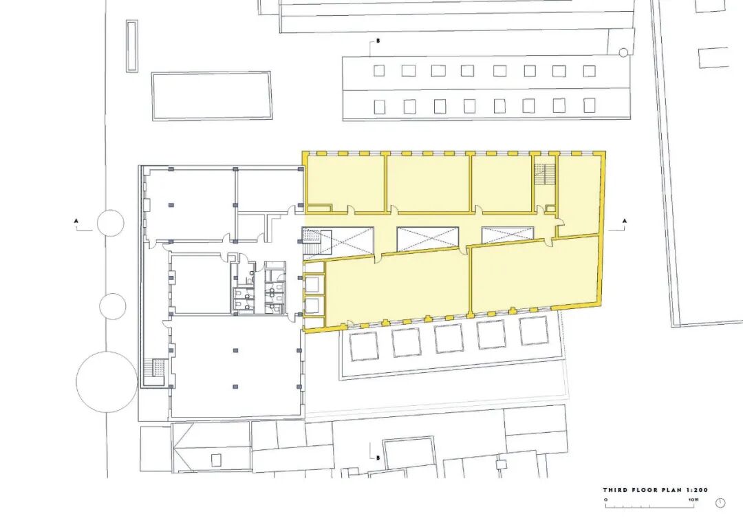
平面图



立面图

剖面图


轴测图

爆炸分析图


空气流动图

建筑师:Waugh Thistleton Architects
地点:英国
面积:7049 m²
年份:2018
本资料声明:
1.本文为建筑设计技术分析,仅供欣赏学习。
2.本资料为要约邀请,不视为要约,所有政府、政策信息均来源于官方披露信息,具体以实物、政府主管部门批准文件及买卖双方签订的商品房买卖合同约定为准。如有变化恕不另行通知。
3.因编辑需要,文字和图片无必然联系,仅供读者参考;
搜建筑·矩阵平台
—— 作品展示、直播、访谈、招聘 ——
合作、宣传、投稿
联系微信:soujianzhu006
推荐一个
专业的地产+建筑平台
每天都有新内容
扫描二维码关注

微信公众号“搜建筑”(ID:sjz9999)


