▲ 更多精品,关注“搜建筑”

35 Lower Long是一座86米高的优雅玻璃幕墙办公大楼,最近落成,将为开普敦新兴的金融和酒店区注入活力。
该建筑由Abland地产开发商开发,dhk建筑事务所设计,其特点是通过动态的玻璃平面,无缝地延伸到办公室和停车层,形成独特的雕塑体量。
建筑物的两个主要角落向屋顶线倒角,并向上耸立,形成引人注目的翼状效果--为开普敦的天际线增添了一个独特的、非正交的元素。


由于核心设计不切实际,增加楼层的局限性,需要更换过时的外墙,以及长期可行性的挑战,最初的改造和扩建现有的20世纪80年代建筑的方案被放弃。
由共同业主Ellerine Bros和Abland修改后的方案是提供一个更积极的中长期可行性,以及通过一个更高的、鼓舞人心的塔式建筑来提升开普敦的天际线。
然而,面临的挑战是如何在相对较小的楼板内,最大限度地提供优质的多租户商业空间,同时容纳电梯和楼梯等核心部件,以及一个地下停车场。
The initial brief to remodel and extend the existing 1980s building were discarded due to impractical core design, the limitations of adding floors, the need to replace an outdated façade and challenges with long-term viability. The revised brief, by the co-owners Ellerine Bros and Abland, was to offer a more positive medium- to long-term viability, as well as to enhance Cape Town’s skyline with a decidedly taller, inspirational tower building. However, the challenge was to maximize the quality multi-tenant commercial space while accommodating core components such as lifts and stairs along with structured basement parking - all within a relatively small floor plate.


为了最大限度地利用楼板,香港建筑大学建议在东南角和西南角的衔接处采用简单的单体正交体量。
虽然从根本上讲,这是一个坚实的建筑体量,但通过锥形或曲柄形的立面,创造了一个动态的、非正交的雕塑体量,并无缝地延伸到办公室和停车场层。
这是通过在正交停车基座的顶部对建筑的东南角和西南角进行倒角,并将其向屋顶拓宽来实现的。这种技术使建筑的立面衔接起来,并在翼形立面和延伸到顶层办公楼层时,使建筑四角的实体性减弱。
通过将翼形立面屏风延伸到屋顶水平以外的护栏斜面,创造了高耸的碎片的外观,而不是产生突兀的终止感。
To maximize the floor plates, dhk proposed a simple singular orthogonal massing bar the articulation of the southeastern and southwestern corners. While fundamentally a solid building mass, the appearance of a dynamic, non-orthogonal sculpted mass was created via tapering or cranked façade planes which extend seamlessly over the office and parking levels. This was achieved by chamfering both the southeast and southwest corners of the building at the top of the orthogonal parking base and widening them towards the roof. The technique articulates the façade and defragments the solidity of the corners of the building as the wings shape the elevations and extend past the top office floor. By extending the wing-shaped façade screens beyond the roof level with parapet sloping, the appearance of soaring shards is created opposed to an abrupt utilitarian termination.


在材料方面,选择玻璃幕墙是因为它的平齐和雕刻的反射形式能够掩盖停车层和固体的悬垂。
玻璃不仅促进了令人激动的光的发挥,而且允许在屏风和鲨鱼鳍般的元素中表达建筑体量。
在停车场层、天花板空隙、结构和内部办公桌高度的立柱上引入像素化,使建筑既隐藏了停车场层,又避免了高耸的水平带带来的单调感。
In terms of materiality, a glazed façade was selected due to its flush and sculpted reflective form which is able to conceal both the parking levels and solid spandrels. Not only does glass facilitate an exciting play of light but it allows for an expressive articulation of the building mass in the screen and shard-like elements. The introduction of pixilation on the portions fronting the parking levels, ceiling voids, structure and internal desk height upstands allows the building to conceal both the parking levels and avoid overbearing horizontal bands.








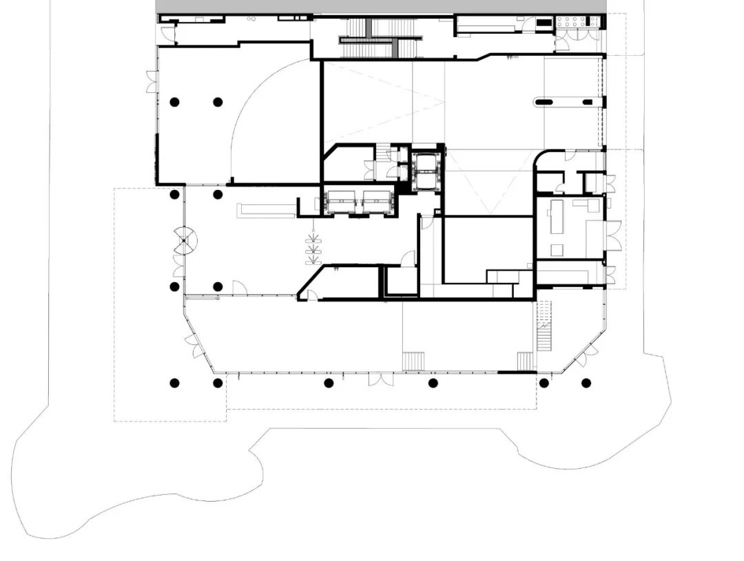
地面平面图

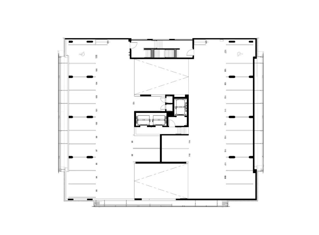
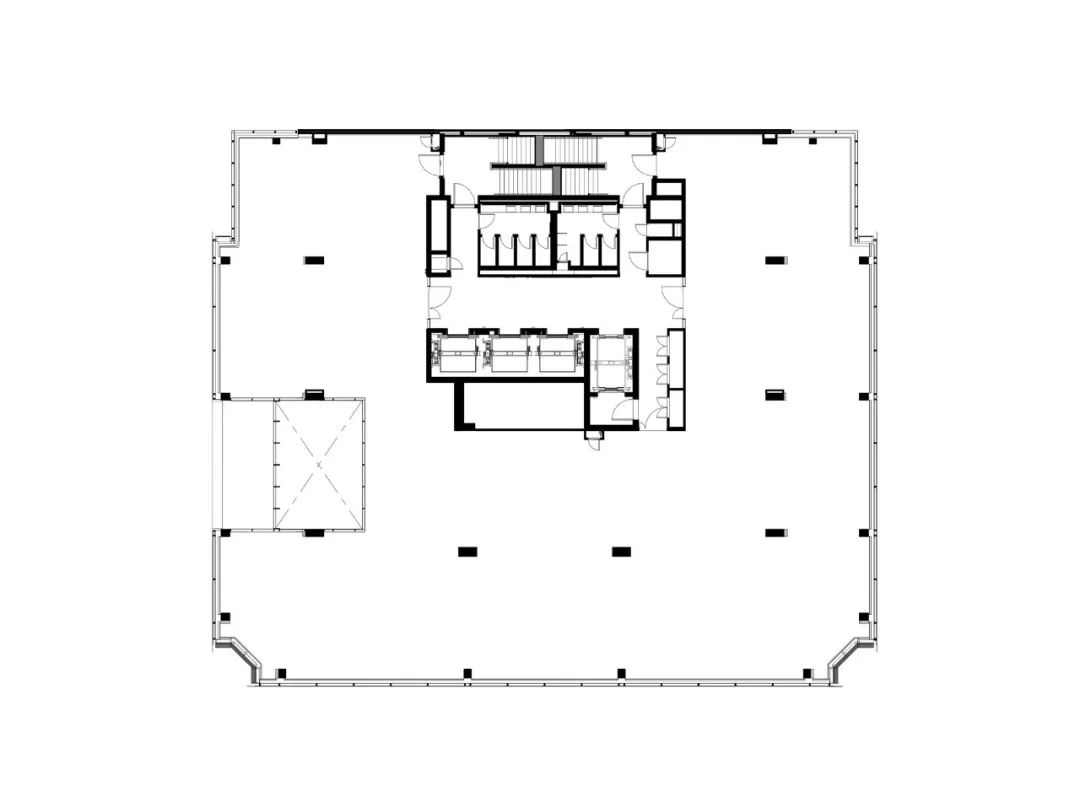
1-9层平面图

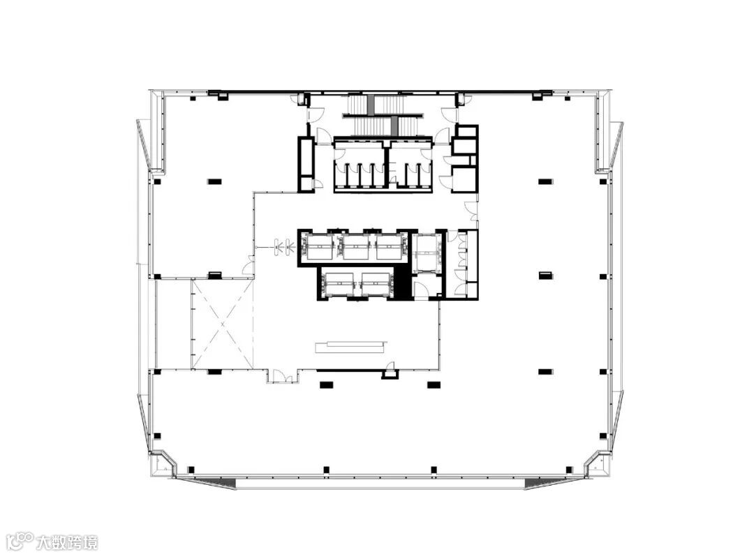
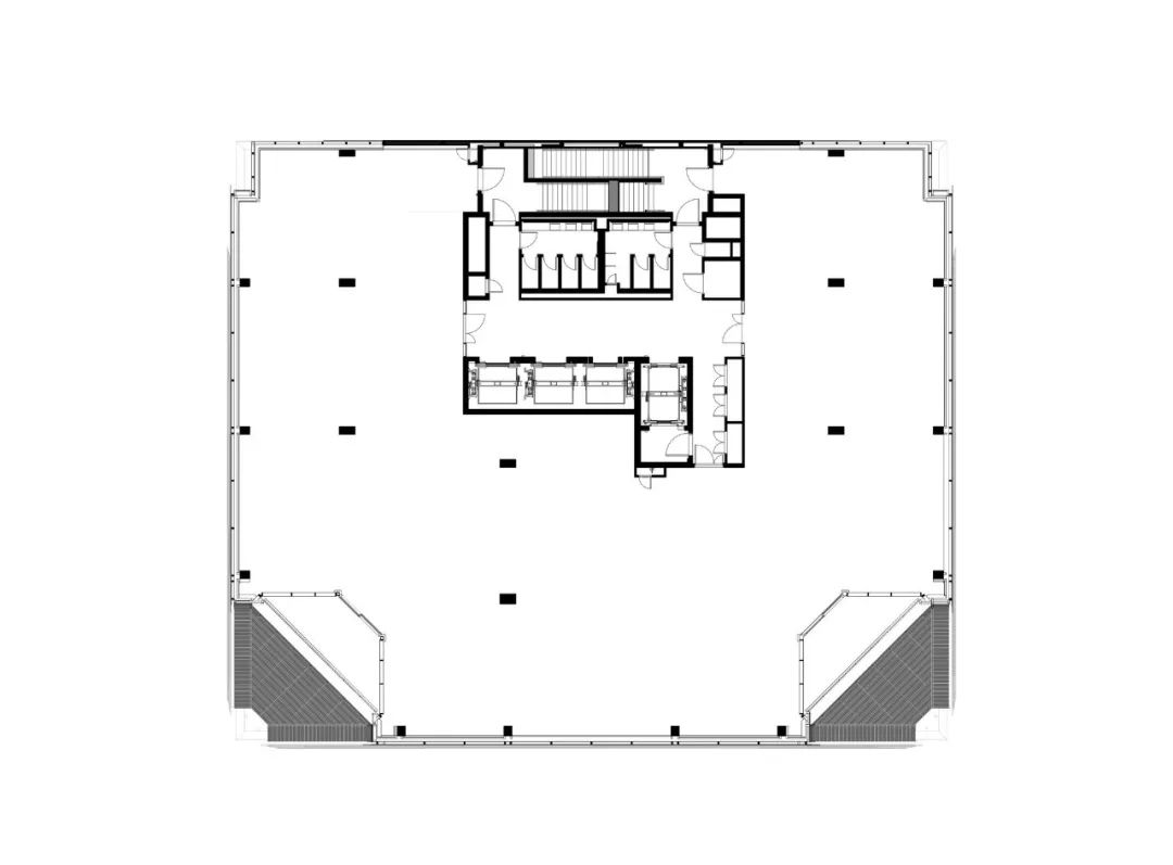
10层平面图

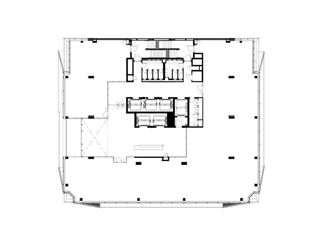
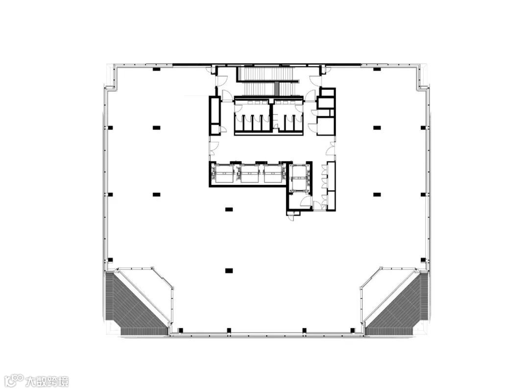
11层平面图

18层平面图

23层平面图

东立面图

西立面图

南立面图

A-A剖面图

B-B剖面图

设计单位:dhk 建筑事务所
地点:南非
建筑面积:14000 m²
建筑年份:2020
本资料声明:
1.本文为建筑设计技术分析,仅供欣赏学习。
2.本资料为要约邀请,不视为要约,所有政府、政策信息均来源于官方披露信息,具体以实物、政府主管部门批准文件及买卖双方签订的商品房买卖合同约定为准。如有变化恕不另行通知。
3.因编辑需要,文字和图片无必然联系,仅供读者参考;
—— 作品展示、直播、访谈、招聘 ——
搜建筑·矩阵平台
合作、宣传、投稿
联系微信:soujianzhu006
推荐一个
专业的地产+建筑平台
每天都有新内容
扫描二维码关注

微信公众号“搜建筑”(ID:sjz9999)


