▲ 更多精品,关注“搜建筑”

PAEIZ 6项目位于德黑兰3条街道的交叉口。在项目的北部有一小块绿地。出于这个原因,综合体的入口被定义在这个部分,以确保更容易进入,并能够从大厅享受所需的绿色景观。
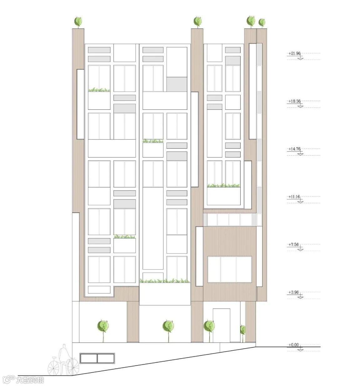
正面和反面水平的立面外壳的灵感来自NAHAZ O NAKHIR(伊朗历史建筑的一种砌砖方法),这样居住者可以在一天的每个小时看到不同的光和影。在这些形状中,使用植物可以使其变得不普通。


选择砖与石的组合,在相互和谐的同时,是为了尊重城市,并尽可能地与周围的建筑相呼应。通过设计不同尺寸像拼图一样的窗户,在不同于一般形式的同时,形成了一个完整的形状。
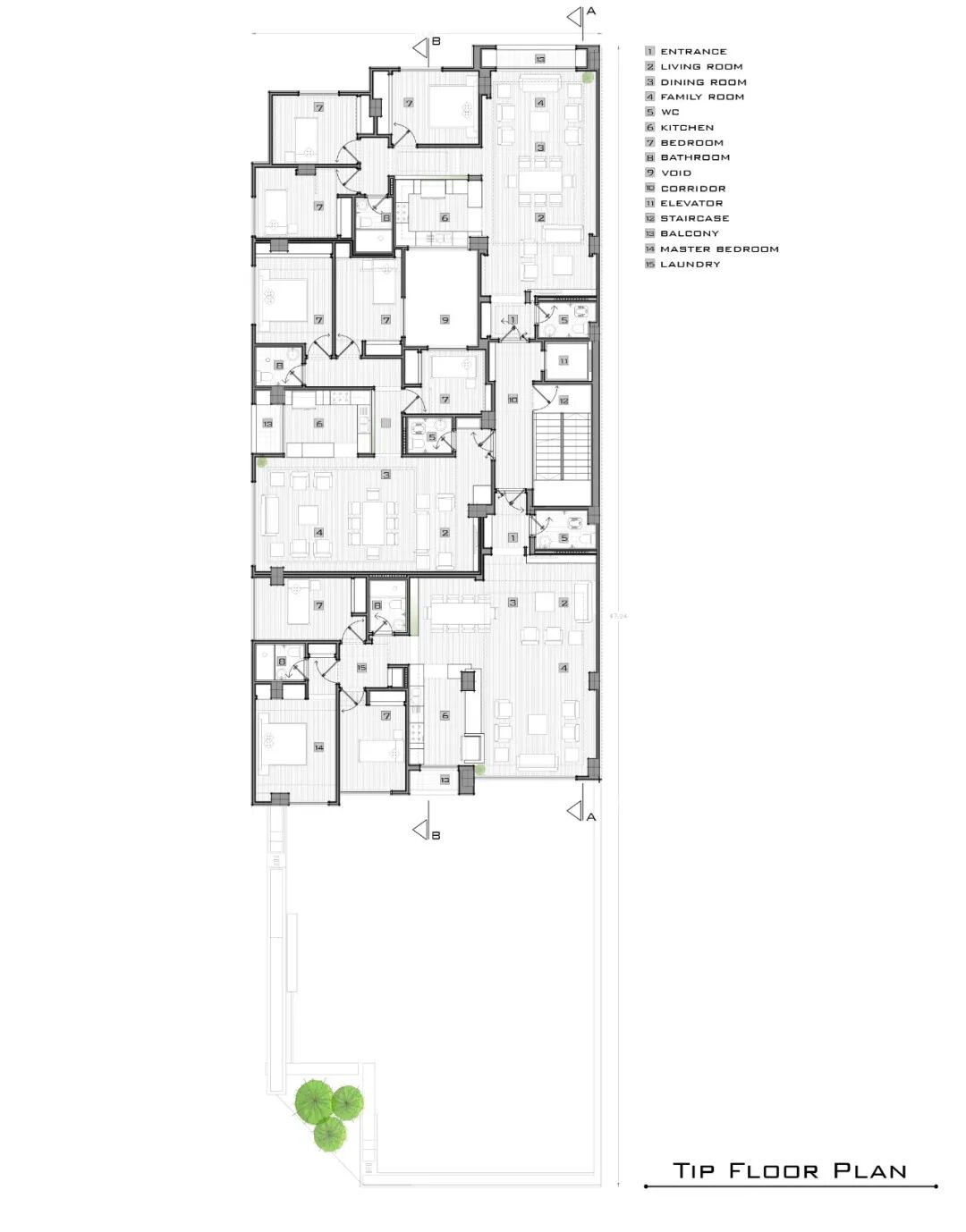
垂直通道位于东侧的中部,这样单元就可以使用尽可能多的自然光线,从而将划分和公共空间减少到最低限度。楼梯、电梯和走廊用它们的透明材料分隔单元,保持了空间的视觉联系,因此,它看起来更大。
Choosing the combination of brick and stone, while having harmony with each other, has been done in order to respect the city and in order to accompany the surrounding buildings as much as possible. By designing windows like puzzles with different and various dimensions, in addition to being different from the common forms, has formed an integrated shape. Vertical access is placed in the middle of the eastern side so that the units can use as much natural light as possible so that the division and common spaces are reduced to a minimum. Stairs, elevators and corridors which are dividing the units with their transparent material led to maintaining the visual connection of the spaces and as a result, it appears larger.


作为我们设计的主流,植物在立面、大堂、地下室、单元间的大堂和室内设计中都可以看到。由于有两个坡道,庭院没有足够的空间进行景观美化。为了解决这个难题,坡道的屋顶准备种植植物。
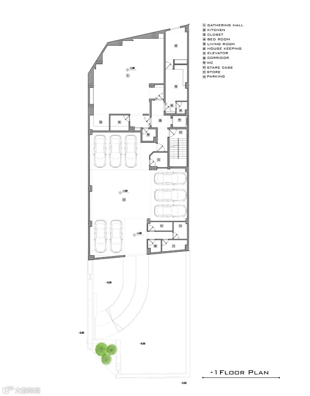
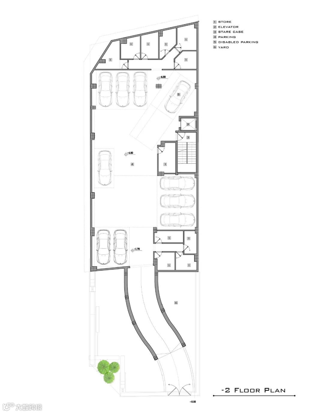
地下一层由两部分组成,南部为停车场,北部为大堂。大堂设有休息区和等候区,警卫哨所和保安设备用喷泉和植物装饰。-1和-2层由停车场和仓库、集合大厅和管理厅组成。
As our design mainstream, the use of plants in the facade, lobby, basements, the lobby between units and interior design can be seen. The yard did not have enough space for landscaping as a result of having two ramps. In order to solve this challenge, The roof of the ramp is prepared to grow plants. The ground floor consists of two parts, the southern part is parking and the northern part is lobby. The lobby, while having seating and waiting areas, includes a guard post and security equipment, which is decorated with Fountain and plants. -1 and -2 levels consist of parking and storage, a gathering hall and a caretaker.


住宅项目共5层,包括15个三居室住宅单元。屋顶有各种设施,如浴室、厨房、烧烤、按摩浴缸、日光浴区、座位和步行区。由于这么多单元可能同时使用,许多座位空间分布在分散的点上。
穿过花园的步行路径定义了一个合适的步行空间。由于想要看到北部(德黑兰北部的山脉)和南部(qeitarih公园)的景色,这两面的墙壁被缩短了,而俯瞰社区的西墙被更高的墙壁包围。
The residential project with 5 floors, totally includes 15 three-bedroom residential units. The roof has various facilities such as a bathroom, kitchen, barbeque, Jacuzzi, sunbathing area and seating and walking areas. Numerous seating spaces are located at scattered points due to the number of units and the possibility of simultaneous use. Walking paths through the gardens have defined a suitable space for walking. Due to the desired view to the north (mountains in the north of Tehran) and south (QEITARIEH Park), the walls of these two sides have been shortened with gaps, while the western wall overlooking the neighborhood is surrounded by higher walls.


















轴测图

区位图

平面图





立面图



剖面图


爆炸分析图



建筑师:Hamedart
地点:伊朗
面积:3700 m²
年份:2021
本资料声明:
1.本文为建筑设计技术分析,仅供欣赏学习。
2.本资料为要约邀请,不视为要约,所有政府、政策信息均来源于官方披露信息,具体以实物、政府主管部门批准文件及买卖双方签订的商品房买卖合同约定为准。如有变化恕不另行通知。
3.因编辑需要,文字和图片无必然联系,仅供读者参考;
搜建筑·矩阵平台
—— 作品展示、直播、访谈、招聘 ——
合作、宣传、投稿
联系微信:soujianzhu006
推荐一个
专业的地产+建筑平台
每天都有新内容
扫描二维码关注

微信公众号“搜建筑”(ID:sjz9999)
2022年·新产品方向
《 品牌地产 | 精品楼盘活动 》



