上海东外滩拥有120多年的历史底蕴,近几年来,随着上海金融中心,航运中心的快速建设,上海东外滩因其卓越的地理位置和“世界仅存的大型滨江工业带”的历史积淀,迅速成为“外滩第一站”。未来,东外滩将由“交通运输、渔船码头、工厂仓储”向“旅游文化、商业办公、海洋经济”的方向转型,成为杨浦区最具地理价值及上海中心城区最具升值潜力的地段之一。
© CreatAR Images
上海中企滨江智慧广场由HPP担任建筑及室内设计单位,其总建筑面积59287平方米,是集办公、文化休闲、商业配套为一体的办公综合体,旨在助力东外滩复兴,打造以人为本、品质卓越、面向未来的商业办公和公共文化空间。
© CreatAR Images
地理位置
项目位于上海东外滩核心商贸区沿江一线,毗邻东方渔人码头,面朝黄浦江沿岸最大的滨江文化港——民生码头。因场地优越的地理位置,上海中企滨江智慧广场构成了上海城市景观峡谷的端点和入口。沿着杨树浦港河,建筑衔接喧嚣密集的杨浦市区和广阔的黄浦江河岸,民生码头文化中心与场地隔江相望,构成了黄浦江畔城市景观峡谷的一端,与另一端的上海之冠——陆家嘴遥相呼应。
▲ 区位图 © HPP
© CreatAR Images
新旧结合
项目遇到最大的挑战来自场地中心一栋建于上世纪20年代的“德国楼“旧仓库。在保护工业文化遗产和尊重人体尺度的同时,HPP巧妙地将原本占满整个地块的长形建筑体,整合为更宽大的体量并退至地块的一端。
© CreatAR Images
▲ 设计生成 © HPP
设计通过激发历史建筑的潜在现代价值,将原建筑具有保留价值的立面移植到新的体量上,以立面的模数重新定义柱网和布局,而旧仓库作为一个线性建筑被重新打造成密集的零售设施空间。“悬浮”的办公大楼以近似比例位于旧工业厂房上,并延伸展开,结合改造后线性的旧仓库和场地,形成一个和谐的有机整体。
© CreatAR Images
旧工业时代遗留的的种子将在新的发展机遇下焕发新生,激励和引导周边地区未来的整体走向,同时,它也在不断重构和定义新门户形象,面对着黄浦江上往来的邮轮和周边道路上不息的车辆,接受着来自四面八方关注的目光。
© CreatAR Images
内外延续
由于一线地理位置,项目自然而然地被纳入东外滩天际线,即使场地存在100米的限高条件。主塔楼通过两次微量的旋转变形,形成两层沿街退台,减少对北面住宅区的日照遮挡。通过变形衍生出的三段式塔楼,凸显与众不同的建筑形象。
© CreatAR Images
白色绸缎般的垂直线形装饰条包裹着整个建筑,随着建筑高度和朝向不同,装饰条发生着尺度变化:塔楼由底部到顶部,由面向城市到面向黄浦江,立面越发敞开,形成诗意的流动。
© CreatAR Images
▲ 立面细节 © HPP
立面采用隐藏式幕墙通风器,在保证立面简洁、干净的效果上,实现了良好的室内通风。
▲ 隐藏式幕墙通风器 © HPP
室内设计延续建筑立面的线性语言,从自然流水中汲取灵感,汇集融合到大堂及标准层等公共空间中。立面分割与幕墙、地铺及天花的分割产生联系,使整体更为统一。空间色调以冷色为主,透过镜面装饰材料营造视觉的穿透与反射,增强人与建筑和周围环境的联系。
© CreatAR Images
功能分布
主体办公区域的结构和布置不仅可以容纳大型企业,作为独家用户进行完整使用,也可以被分割成小型灵活的单元,供中小型公司使用。灵活多变的布局和形式,轻松形成开放空间,单元格办公室,团队办公室,组合式办公室和VIP 办公室等工作区块,且大多数向陆家嘴的天际线、黄浦江畔的滨江公园以及杨树浦港河敞开,极大地提升了办公品质。
© CreatAR Images
商业用途设施位于“德国楼”的一、二层,主要为办公楼本身的用户直接提供服务。未来,商店、精品店、酒吧和服务零售店等小型和中等规模的功能设施沿场地设置,与办公楼的直接服务功能设施一齐,为该区域商业提供了基础设施,丰富用户工作环境。
© CreatAR Images
结语
上海中企滨江智慧广场作为HPP在上海滨江地带建设的一系列重点项目之一,平衡嵌入到健康绿色的自然景观之中,使得小尺度的公共空间与地标式的上层建筑共存。以其商业办公功能,和黄浦江沿岸的“绿肺”功能产生联动,助力上海杨浦区域的复兴和崛起。
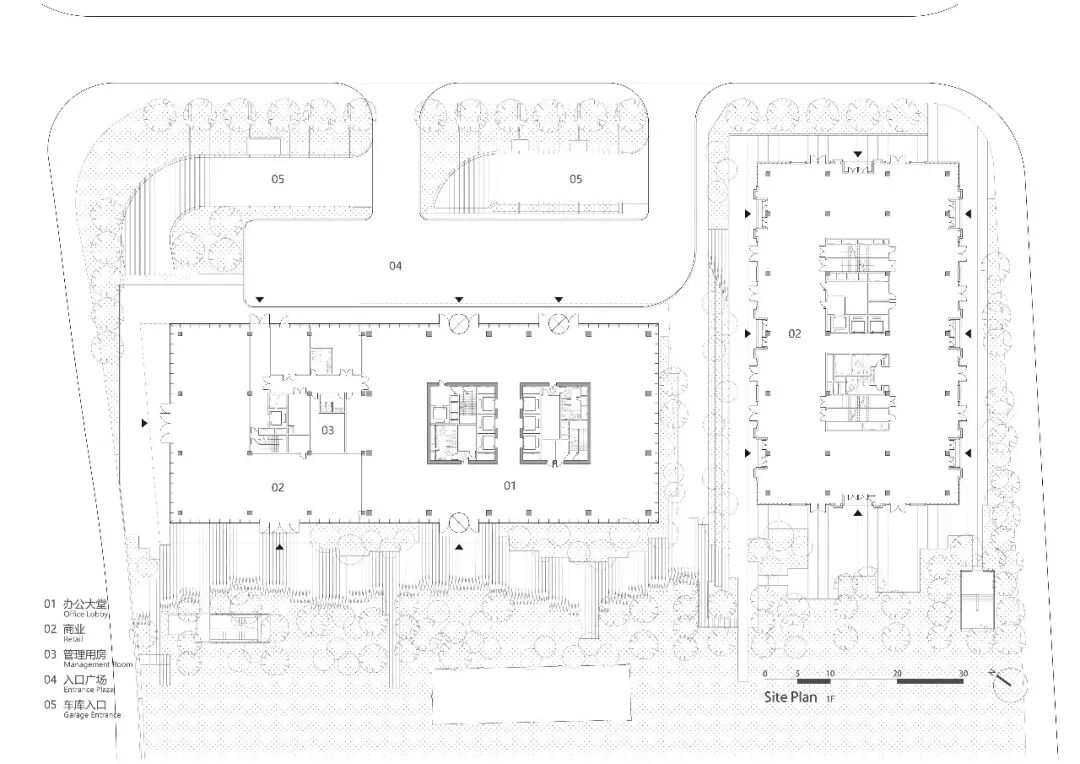
▲ 首层平面图 © HPP
▲ 剖面图 © HPP
▲ 立面图 © HPP
项目信息
项目名称:上海中企滨江智慧广场
建设单位:中华企业股份有限公司
项目管理:中华企业股份有限公司+华润置地有限公司
地点:上海
设计:HPP
服务范围:建筑设计+室内设计
合伙人:Jens Kump、余炜
联合合伙人:甘远哲
建筑团队(投标阶段):Myriam Hamdi 、Matthew Rosser、Baldur Stemler、翟境阳、MinJeong Kang、Niek Slijkerman
建筑团队(实施阶段):何元钊、周小坡、林建强、刘墨洋、程天多、吴守珩、沈佳俊、鲍伟臻、John Denial Winstead V、Vogel Jakob Florian、孙子昂
室内团队:徐珩、王璐、刘丞、黄山
合作单位:同济大学建筑设计研究院(集团)有限公司
幕墙顾问:上海乐为幕墙设计有限公司
灯光顾问:黎欧思照明(上海)有限公司、优米照明设计(上海)有限公司
总建筑面积:59287 m²
室内设计面积:3921 m²
建成时间:2021
本资料声明:
1.本文为建筑设计技术分析,仅供欣赏学习。
2.本资料为要约邀请,不视为要约,所有政府、政策信息均来源于官方披露信息,具体以实物、政府主管部门批准文件及买卖双方签订的商品房买卖合同约定为准。如有变化恕不另行通知。
3.因编辑需要,文字和图片无必然联系,仅供读者参考;
搜建筑·矩阵平台
—— 作品展示、直播、访谈、招聘 ——
合作、宣传、投稿
联系微信:soujianzhu006
推荐一个
专业的地产+建筑平台
每天都有新内容
扫描二维码关注

微信公众号“搜建筑”(ID:sjz9999)


