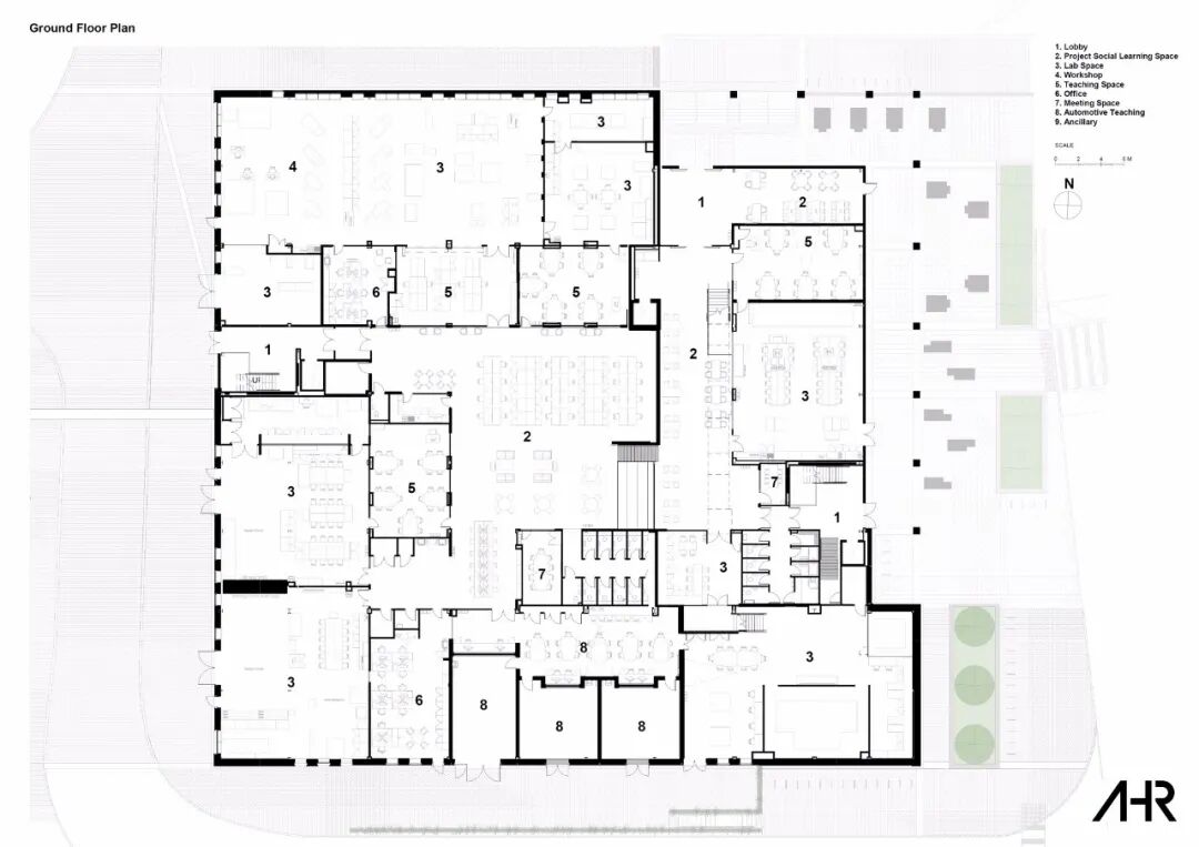
Designed to support the next generation of student engineers, the building aims to break down boundaries between engineering disciplines, enable greater collaboration, and make Engineering more inclusive by attracting students from a wider cross-section of society. Set over three floors and 8,500m2, the building features teaching studios, simulation suites, laboratories, and specialist workshops accommodating a wide range of subjects.
The brief recognised the value of ‘Social Learning’ spaces outside of traditional teaching to encourage collaboration. A significant design constraint was the spatial and servicing requirements of over 20 different labs and workshops – AHR’s response was to stack the accommodation based on practical requirements: heavy workshops and ‘maker’ space on the ground floor; specialist laboratories on the first floor; and lighter labs and offices on the top floor.
Services follow a ‘ring main’ around the atrium edge feeding off to perimeter rooms, all intended to provide maximum building lifespan. The project was delivered on a live site and to an ambitious timescale, opening to students exactly three years after design work commenced, with the final eight months during the peak of the first wave of Covid-19. While occupancy was limited during the first year, the spaciousness and natural ventilation strategy has enabled staff and students to make use of the building throughout the pandemic.
The University has targeted carbon neutral by 2030. The brief included BREEAM Excellent, with a focus on operational energy and a DEC B operational energy rating. The building is designed for long-term adaptability with an efficient structural grid. Corten steel cladding requires no maintenance and windows were selected that would exceed 60-year lifespan. The 1000m2 atrium roof is glu-lam and CLT which has offset 125t of carbon. This highly serviced building performs extremely well against the RIBA 2025 climate targets and through robust design strategies will provide very long life with minimum barriers to adaptation and change.
获取更多新内容、新知识
本资料声明:
1.本文为建筑设计技术分析,仅供欣赏学习。
2.本资料为要约邀请,不视为要约,所有政府、政策信息均来源于官方披露信息,具体以实物、政府主管部门批准文件及买卖双方签订的商品房买卖合同约定为准。如有变化恕不另行通知。
3.因编辑需要,文字和图片无必然联系,仅供读者参考;
搜建筑·矩阵平台
—— 作品展示、招聘、特色建材 ——
合作、宣传、投稿
联系微信:soujianzhu006
推荐一个
专业的地产+建筑平台
每天都有新内容
扫描二维码关注

微信公众号“搜建筑”(ID:sjz9999)


