中海·杏林鹭湾处于厦门市,集美新城核心片区,为岛外片区中发展最为成熟的片区之一,进岛车程仅需10-15分钟。周边在建12年优质教育资源,距中交白鹭塔商业综合体步行约600米,距离地铁1号线诚毅广场站步行约1.5km,项目周边配套成熟且优质。10分钟车程范围内覆盖集美万达,IOI综合体等商圈。
临外国语学校集美校区,教育配套优质且临近;临近地铁站,紧邻优质学区;优质学区、成熟配套的新城核心区项目,适宜打造高端的精品优质社区。
区内三排整齐的总图规划布局。高低错落,形成丰富的城市天际线;超大楼间距,点阵式有机排列布局;楼间距超70米,户户无遮挡;无垠超广角视野,大美之境一览无遗;250米超大纵深景观花园,超大面积的公共绿化空间,户外视野更为开阔,最大尺度的将空间还给生活;超大花园大区呈现,所见即所得。
立面采用流线型现代风格,闽南元素融合现代时尚的立面设计;玻璃为虚,墙体为实,充分营造虚实的建筑美学意境;从上至下采用不同型材分隔为极具层次的三段,彰显尊贵与精致;转角圆滑弧形造型,顶部的曲线设计,精工与时尚的完美结合,彰显了速度与柔美;
在入户大堂设计中,采用石材弧形装饰大堂,用精工打造出温馨舒适的归家感,让回家变成一场尊崇的礼遇。
体验式顶奢生活配套的示范区会所,动感十足,展现艺术气息,搭配太古世纪石材,彰显历史的沉淀。
本资料声明:
1.本文为建筑设计技术分析,仅供欣赏学习。
2.本资料为要约邀请,不视为要约,所有政府、政策信息均来源于官方披露信息,具体以实物、政府主管部门批准文件及买卖双方签订的商品房买卖合同约定为准。如有变化恕不另行通知。
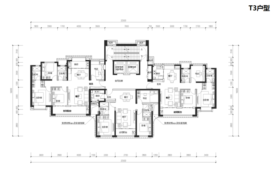
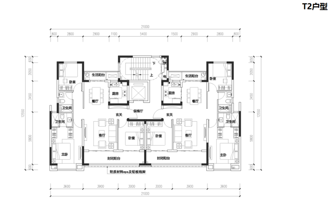
3.因编辑需要,文字和图片无必然联系,仅供读者参考;
搜建筑·矩阵平台
—— 作品展示、招聘发布、访谈、建材 ——
合作、宣传、投稿
联系微信:soujianzhu006

推荐一个
专业的地产+建筑平台
每天都有新内容
扫描二维码关注

微信公众号“搜建筑”(ID:sjz9999)
阅读原文,“LWK + PARTNERS"更多精品